New Homes » Kanto » Kanagawa Prefecture » Kawasaki Miyamae-ku
 
| | Kawasaki City, Kanagawa Prefecture Miyamae-ku, 神奈川県川崎市宮前区 |
| Denentoshi Tokyu "Mizonokuchi" bus 11 Buntaira walk 3 minutes 東急田園都市線「溝の口」バス11分平歩3分 |
| It is close to the city, Facing south, System kitchen, Bathroom Dryer, Siemens south road, LDK15 tatami mats or more, Or more before road 6m, Face-to-face kitchen, Security enhancement, Bathroom 1 tsubo or more, South balcony, With TV 市街地が近い、南向き、システムキッチン、浴室乾燥機、南側道路面す、LDK15畳以上、前道6m以上、対面式キッチン、セキュリティ充実、浴室1坪以上、南面バルコニー、TV付 |
| It is close to the city, Facing south, System kitchen, Bathroom Dryer, Siemens south road, LDK15 tatami mats or more, Or more before road 6m, Face-to-face kitchen, Security enhancement, Bathroom 1 tsubo or more, South balcony, TV with bathroom, TV monitor interphone, Leafy residential area, Urban neighborhood, All living room flooring, Dish washing dryer, Water filter, Three-story or more 市街地が近い、南向き、システムキッチン、浴室乾燥機、南側道路面す、LDK15畳以上、前道6m以上、対面式キッチン、セキュリティ充実、浴室1坪以上、南面バルコニー、TV付浴室、TVモニタ付インターホン、緑豊かな住宅地、都市近郊、全居室フローリング、食器洗乾燥機、浄水器、3階建以上 |
Features pickup 特徴ピックアップ | | It is close to the city / Facing south / System kitchen / Bathroom Dryer / Siemens south road / LDK15 tatami mats or more / Or more before road 6m / Face-to-face kitchen / Security enhancement / Bathroom 1 tsubo or more / South balcony / TV with bathroom / TV monitor interphone / Leafy residential area / Urban neighborhood / All living room flooring / Dish washing dryer / Water filter / Three-story or more / City gas 市街地が近い /南向き /システムキッチン /浴室乾燥機 /南側道路面す /LDK15畳以上 /前道6m以上 /対面式キッチン /セキュリティ充実 /浴室1坪以上 /南面バルコニー /TV付浴室 /TVモニタ付インターホン /緑豊かな住宅地 /都市近郊 /全居室フローリング /食器洗乾燥機 /浄水器 /3階建以上 /都市ガス | Price 価格 | | 31,800,000 yen ・ 33,800,000 yen 3180万円・3380万円 | Floor plan 間取り | | 4LDK 4LDK | Units sold 販売戸数 | | 2 units 2戸 | Total units 総戸数 | | 2 units 2戸 | Land area 土地面積 | | 58.2 sq m ・ 74.89 sq m 58.2m2・74.89m2 | Building area 建物面積 | | 106.82 sq m ・ 109.65 sq m (measured) 106.82m2・109.65m2(実測) | Driveway burden-road 私道負担・道路 | | Road width: 6m 道路幅:6m | Completion date 完成時期(築年月) | | Three months after the contract 契約後3ヶ月 | Address 住所 | | Kawasaki City, Kanagawa Prefecture Miyamae-ku, flat 4 神奈川県川崎市宮前区平4 | Traffic 交通 | | Denentoshi Tokyu "Mizonokuchi" bus 11 Buntaira walk 3 minutes 東急田園都市線「溝の口」バス11分平歩3分
| Related links 関連リンク | | [Related Sites of this company] 【この会社の関連サイト】 | Contact お問い合せ先 | | TEL: 0800-602-6179 [Toll free] mobile phone ・ Also available from PHS Caller ID is not notified Please contact the "saw SUUMO (Sumo)" If it does not lead, If the real estate company TEL:0800-602-6179【通話料無料】携帯電話・PHSからもご利用いただけます 発信者番号は通知されません 「SUUMO(スーモ)を見た」と問い合わせください つながらない方、不動産会社の方は
| Building coverage, floor area ratio 建ぺい率・容積率 | | Kenpei rate: 60%, Volume ratio: 200% 建ペい率:60%、容積率:200% | Time residents 入居時期 | | 4 months after the contract 契約後4ヶ月 | Land of the right form 土地の権利形態 | | Ownership 所有権 | Use district 用途地域 | | One middle and high 1種中高 | Land category 地目 | | Residential land 宅地 | Overview and notices その他概要・特記事項 | | Building confirmation number: first H25SBC- Make 01177Y No., The H25SBC- sure 01178Y No. 建築確認番号:第H25SBC-確01177Y号、第H25SBC-確01178Y号 | Company profile 会社概要 | | <Mediation> Governor of Kanagawa Prefecture (1) No. 028042 (Corporation) All Japan Real Estate Association (Corporation) metropolitan area real estate Fair Trade Council member Idec Inc. Yubinbango224-0001 Yokohama City, Kanagawa Prefecture Tsuzuki-ku Nakagawa 1-21-20 <仲介>神奈川県知事(1)第028042号(公社)全日本不動産協会会員 (公社)首都圏不動産公正取引協議会加盟アイデック(株)〒224-0001 神奈川県横浜市都筑区中川1-21-20 |
Rendering (appearance)完成予想図(外観)  Rendering
完成予想図
Same specifications photo (kitchen)同仕様写真(キッチン)  System Kitchen (index specification)
システムキッチン(デックス仕様)
Same specifications photo (bathroom)同仕様写真(浴室)  System bus (index specification)
システムバス(デックス仕様)
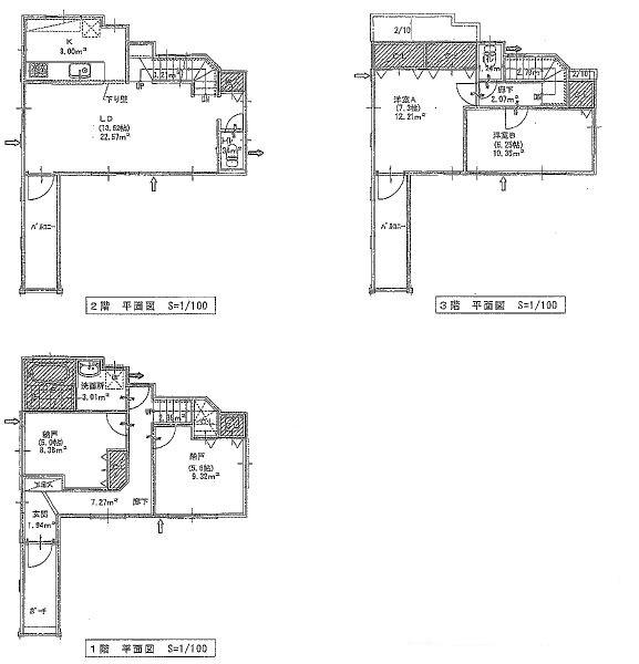
Floor plan間取り図  (A Building), Price 31,800,000 yen, 4LDK, Land area 74.89 sq m , Building area 109.65 sq m
(A号棟)、価格3180万円、4LDK、土地面積74.89m2、建物面積109.65m2
Local photos, including front road前面道路含む現地写真  Local (August 2013) Shooting
現地(2013年8月)撮影
Supermarketスーパー  Sotetsu Rosen Co., Ltd. Tyra store up to 240m daily shopping is here (cedar pharmacy There is also a) A 3-minute walk is the closeness!
相鉄ローゼンたいら店まで240m 日常のお買い物はこちらで(スギ薬局もあります) 徒歩3分の近さです!
Same specifications photos (Other introspection)同仕様写真(その他内観)  Entrance (index specification)
玄関(デックス仕様)
Floor plan間取り図  (B Building), Price 33,800,000 yen, 4LDK, Land area 58.2 sq m , Building area 106.82 sq m
(B号棟)、価格3380万円、4LDK、土地面積58.2m2、建物面積106.82m2
Supermarketスーパー  Maruetsu flat There is also a 560m Maruetsu than two-chome!
マルエツ平二丁目店まで560m マルエツもあります!
Drug storeドラッグストア  666m to San drag Hiramise
サンドラッグ平店まで666m
Junior high school中学校  765m to Kawasaki Tatsutaira junior high school
川崎市立平中学校まで765m
Primary school小学校  650m to the Kawasaki Municipal Mukogaoka Elementary School
川崎市立向丘小学校まで650m
Kindergarten ・ Nursery幼稚園・保育園  Mukogaoka until the infant nursery 697m
向丘乳児保育園まで697m
Location
|