New Homes » Kanto » Kanagawa Prefecture » Kawasaki Miyamae-ku
 
| | Kawasaki City, Kanagawa Prefecture Miyamae-ku, 神奈川県川崎市宮前区 |
| Denentoshi Tokyu "Miyazakidai" walk 10 minutes 東急田園都市線「宮崎台」歩10分 |
| Yang per well per south waterway! ! A quiet residential area! Two car space! ! 南側水路に付き陽当り良好!!閑静な住宅街!カースペース2台!! |
| Pre-ground survey, LDK18 tatami mats or more, It is close to the city, System kitchen, Bathroom Dryer, Yang per good, All room storage, A quiet residential area, Or more before road 6mese-style room, Washbasin with shower, Face-to-face kitchen, Toilet 2 places, Bathroom 1 tsubo or more, 2-story, Double-glazing, Warm water washing toilet seat, Underfloor Storage, The window in the bathroom, TV monitor interphone, Leafy residential area, Ventilation good, Southwestward, Dish washing dryer, Water filter, City gas, Floor heating 地盤調査済、LDK18畳以上、市街地が近い、システムキッチン、浴室乾燥機、陽当り良好、全居室収納、閑静な住宅地、前道6m以上、和室、シャワー付洗面台、対面式キッチン、トイレ2ヶ所、浴室1坪以上、2階建、複層ガラス、温水洗浄便座、床下収納、浴室に窓、TVモニタ付インターホン、緑豊かな住宅地、通風良好、南西向き、食器洗乾燥機、浄水器、都市ガス、床暖房 |
Features pickup 特徴ピックアップ | | Pre-ground survey / LDK18 tatami mats or more / It is close to the city / System kitchen / Bathroom Dryer / Yang per good / All room storage / A quiet residential area / Or more before road 6m / Japanese-style room / Washbasin with shower / Face-to-face kitchen / Toilet 2 places / Bathroom 1 tsubo or more / 2-story / Double-glazing / Warm water washing toilet seat / Underfloor Storage / The window in the bathroom / TV monitor interphone / Leafy residential area / Ventilation good / Southwestward / Dish washing dryer / Water filter / City gas / Floor heating 地盤調査済 /LDK18畳以上 /市街地が近い /システムキッチン /浴室乾燥機 /陽当り良好 /全居室収納 /閑静な住宅地 /前道6m以上 /和室 /シャワー付洗面台 /対面式キッチン /トイレ2ヶ所 /浴室1坪以上 /2階建 /複層ガラス /温水洗浄便座 /床下収納 /浴室に窓 /TVモニタ付インターホン /緑豊かな住宅地 /通風良好 /南西向き /食器洗乾燥機 /浄水器 /都市ガス /床暖房 | Price 価格 | | 54,800,000 yen 5480万円 | Floor plan 間取り | | 4LDK 4LDK | Units sold 販売戸数 | | 1 units 1戸 | Land area 土地面積 | | 141.24 sq m 141.24m2 | Building area 建物面積 | | 104.74 sq m 104.74m2 | Driveway burden-road 私道負担・道路 | | Nothing 無 | Completion date 完成時期(築年月) | | October 2013 2013年10月 | Address 住所 | | Kawasaki-shi, Kanagawa-ku, Miyamae Miyazaki 3 神奈川県川崎市宮前区宮崎3 | Traffic 交通 | | Denentoshi Tokyu "Miyazakidai" walk 10 minutes 東急田園都市線「宮崎台」歩10分
| Related links 関連リンク | | [Related Sites of this company] 【この会社の関連サイト】 | Person in charge 担当者より | | Rep Arafune Masato Age: 20 Daigyokai experience: up to 7 years our customers meet the satisfactory property, Let me do my best relations with the intention to look for his own dwelling! Founded 45 years ・ Introducing the property of the community unique! 担当者荒船 雅人年齢:20代業界経験:7年お客様が満足出来る物件と出会えるまで、自分の住まいを探すつもりで精一杯お付き合いさせて頂きます!創業45年・地域密着ならではの物件をご紹介します! | Contact お問い合せ先 | | TEL: 0800-603-1202 [Toll free] mobile phone ・ Also available from PHS Caller ID is not notified Please contact the "saw SUUMO (Sumo)" If it does not lead, If the real estate company TEL:0800-603-1202【通話料無料】携帯電話・PHSからもご利用いただけます 発信者番号は通知されません 「SUUMO(スーモ)を見た」と問い合わせください つながらない方、不動産会社の方は
| Building coverage, floor area ratio 建ぺい率・容積率 | | Fifty percent ・ 80% 50%・80% | Time residents 入居時期 | | Consultation 相談 | Land of the right form 土地の権利形態 | | Ownership 所有権 | Structure and method of construction 構造・工法 | | Wooden 2-story 木造2階建 | Overview and notices その他概要・特記事項 | | Contact: Arafune Masato, Facilities: Public Water Supply, This sewage, City gas, Building confirmation number: 00732, Parking: car space 担当者:荒船 雅人、設備:公営水道、本下水、都市ガス、建築確認番号:00732、駐車場:カースペース | Company profile 会社概要 | | <Mediation> Governor of Kanagawa Prefecture (12) No. 004606 first Sangyo Co., Ltd. Nakahara office Yubinbango211-0041 Kawasaki City, Kanagawa Prefecture Nakahara-ku, Shimokotanaka 2-7-1 axis Kashima 1F <仲介>神奈川県知事(12)第004606号第一産業(株)中原営業所〒211-0041 神奈川県川崎市中原区下小田中2-7-1アクシスカシマ1F |
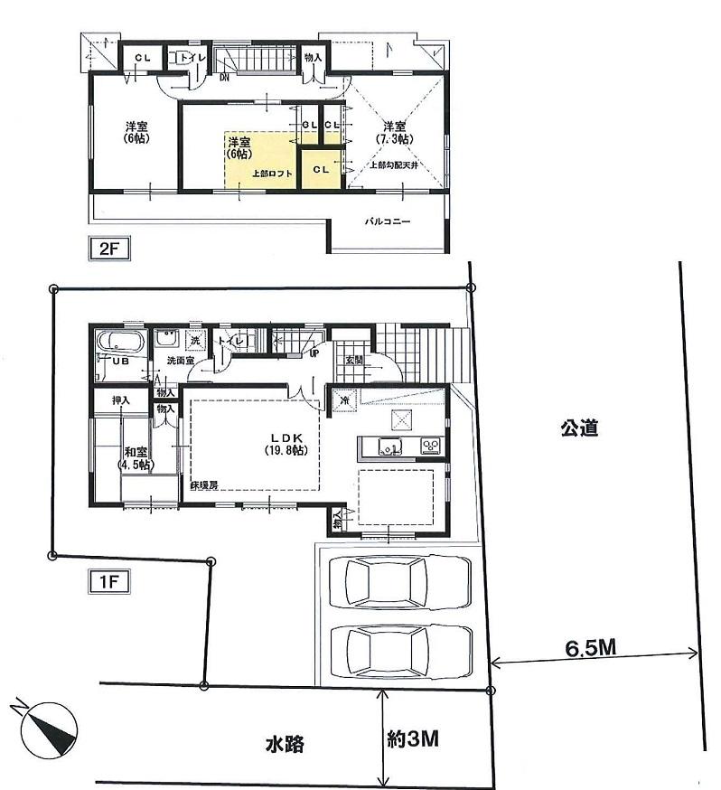
Floor plan間取り図  54,800,000 yen, 4LDK, Land area 141.24 sq m , Building area 104.74 sq m
5480万円、4LDK、土地面積141.24m2、建物面積104.74m2
Local appearance photo現地外観写真  Local (11 May 2013) Shooting
現地(2013年11月)撮影
Livingリビング  Indoor (11 May 2013) Shooting
室内(2013年11月)撮影
Bathroom浴室  Indoor (11 May 2013) Shooting
室内(2013年11月)撮影
Kitchenキッチン  Indoor (11 May 2013) Shooting
室内(2013年11月)撮影
Wash basin, toilet洗面台・洗面所  Indoor (11 May 2013) Shooting
室内(2013年11月)撮影
Primary school小学校  Miyazakidai until elementary school 70m
宮崎台小学校まで70m
Junior high school中学校  910m to Miyazaki junior high school
宮崎中学校まで910m
Location
|