New Homes » Kanto » Kanagawa Prefecture » Kawasaki Miyamae-ku
 
| | Kawasaki City, Kanagawa Prefecture Miyamae-ku, 神奈川県川崎市宮前区 |
| Denentoshi Tokyu "Miyamaedaira" walk 8 minutes 東急田園都市線「宮前平」歩8分 |
| ■ Housing shining even your family smile in full sunlight ■ Throw in the compartment and spacious of the happy Miyamaedaira Station 8 min. Walk Papa life ■ House of parking facing the happy front 6m road also not good "Tehe'" Mama dream ■溢れる陽光でご家族の笑顔も輝く住宅■パパに嬉しい宮前平駅徒歩8分のゆったりとした区画でスローライフ■駐車が苦手「てへっ」なママにも嬉しい前面6m道路に面した夢のお家 |
| ● quiet peaceful new life come true in a residential area ● busy morning and late returning home at the time also glad Station 8-minute walk ● sun of comfortable floor heating from warmth full of living space ● feet of warm feel the grace ● First "document request (Free) ! [Free dial] 0800 over 602-5816 ●閑静な住宅地で叶える穏やかな新生活●忙しい朝や遅い帰宅時も嬉しい駅徒歩8分●太陽の恵みを感じる温もりあふれるリビング空間●足元からポカポカの快適床暖房●まずは「資料請求(無料)」からお気軽にお問い合わせください!【フリーダイヤル】0800ー602-5816 |
Features pickup 特徴ピックアップ | | Measures to conserve energy / Corresponding to the flat-35S / Pre-ground survey / 2 along the line more accessible / LDK18 tatami mats or more / Super close / System kitchen / Bathroom Dryer / Yang per good / All room storage / A quiet residential area / Around traffic fewer / Or more before road 6m / Japanese-style room / Washbasin with shower / Face-to-face kitchen / Toilet 2 places / Bathroom 1 tsubo or more / 2-story / South balcony / Double-glazing / Warm water washing toilet seat / loft / Underfloor Storage / The window in the bathroom / TV monitor interphone / Ventilation good / Dish washing dryer / Water filter / City gas / All rooms are two-sided lighting / A large gap between the neighboring house / roof balcony / Floor heating 省エネルギー対策 /フラット35Sに対応 /地盤調査済 /2沿線以上利用可 /LDK18畳以上 /スーパーが近い /システムキッチン /浴室乾燥機 /陽当り良好 /全居室収納 /閑静な住宅地 /周辺交通量少なめ /前道6m以上 /和室 /シャワー付洗面台 /対面式キッチン /トイレ2ヶ所 /浴室1坪以上 /2階建 /南面バルコニー /複層ガラス /温水洗浄便座 /ロフト /床下収納 /浴室に窓 /TVモニタ付インターホン /通風良好 /食器洗乾燥機 /浄水器 /都市ガス /全室2面採光 /隣家との間隔が大きい /ルーフバルコニー /床暖房 | Event information イベント情報 | | Local guide Board (please make a reservation beforehand) schedule / During the public time / 9:00 ~ 20:00 also available on weekdays guidance. Without hesitation Please make your reservation [Free dial] 0800-602-5816 現地案内会(事前に必ず予約してください)日程/公開中時間/9:00 ~ 20:00平日のご案内も承ります。お気兼ねなくご予約下さい【フリーダイヤル】0800-602-5816 | Price 価格 | | 53,958,000 yen ・ 54,958,000 yen 5395万8000円・5495万8000円 | Floor plan 間取り | | 4LDK 4LDK | Units sold 販売戸数 | | 2 units 2戸 | Total units 総戸数 | | 4 units 4戸 | Land area 土地面積 | | 128.75 sq m ・ 148.2 sq m (measured) 128.75m2・148.2m2(実測) | Building area 建物面積 | | 95.06 sq m ・ 95.63 sq m (measured) 95.06m2・95.63m2(実測) | Driveway burden-road 私道負担・道路 | | North 6.3m road surface 北側6.3m公道面 | Completion date 完成時期(築年月) | | February 2014 schedule 2014年2月予定 | Address 住所 | | Kawasaki City, Kanagawa Prefecture Miyamae-ku, Maginu 1904-4 神奈川県川崎市宮前区馬絹1904-4 | Traffic 交通 | | Denentoshi Tokyu "Miyamaedaira" walk 8 minutes Denentoshi Tokyu "Saginuma" walk 16 minutes Denentoshi Tokyu "Miyazakidai" walk 14 minutes 東急田園都市線「宮前平」歩8分 東急田園都市線「鷺沼」歩16分 東急田園都市線「宮崎台」歩14分
| Related links 関連リンク | | [Related Sites of this company] 【この会社の関連サイト】 | Person in charge 担当者より | | The person in charge when KoTaro Age: 30 Daigyokai experience: I have been 15 years of fun guidance, Especially, Residential home of Denentoshi, Takatsu-ku, Miyamae-ku, single-family is, We will guide you in the scales from the eyes. Please leave tourist destination guidance of the Kyoto! 担当者井津 高太朗年齢:30代業界経験:15年楽しいご案内をさせていただいております、特に、田園都市線の一戸建て、高津区、宮前区の一戸建ては、目からうろこのご案内をいたします。京都の観光地案内もお任せください! | Contact お問い合せ先 | | TEL: 0800-602-5816 [Toll free] mobile phone ・ Also available from PHS Caller ID is not notified Please contact the "saw SUUMO (Sumo)" If it does not lead, If the real estate company TEL:0800-602-5816【通話料無料】携帯電話・PHSからもご利用いただけます 発信者番号は通知されません 「SUUMO(スーモ)を見た」と問い合わせください つながらない方、不動産会社の方は
| Building coverage, floor area ratio 建ぺい率・容積率 | | Kenpei rate: 50%, Volume ratio: 80% 建ペい率:50%、容積率:80% | Time residents 入居時期 | | Consultation 相談 | Land of the right form 土地の権利形態 | | Ownership 所有権 | Structure and method of construction 構造・工法 | | Wooden 2-story (framing method) 木造2階建(軸組工法) | Use district 用途地域 | | One low-rise 1種低層 | Land category 地目 | | Residential land 宅地 | Other limitations その他制限事項 | | Regulations have by the Landscape Act, Residential land development construction regulation area, Height district, Height ceiling Yes, Site area minimum Yes, Shade limit Yes, Some agreement passage, On-site step Yes, Contact road and the step Yes, Setback Yes 景観法による規制有、宅地造成工事規制区域、高度地区、高さ最高限度有、敷地面積最低限度有、日影制限有、一部協定通路、敷地内段差有、接道と段差有、壁面後退有 | Overview and notices その他概要・特記事項 | | Contact: Germany KoTaro, Building confirmation number: No. 13KAK Ken確 02613 担当者:井津 高太朗、建築確認番号:第13KAK建確02613号 | Company profile 会社概要 | | <Mediation> Minister of Land, Infrastructure and Transport (1) No. 008243 (Ltd.) USTRUST (Us Trust) Kawasaki Miyamaedaira shop Yubinbango216-0007 Kawasaki City, Kanagawa Prefecture Miyamae-ku, Kodai 2-4-5 MC Plaza 202 <仲介>国土交通大臣(1)第008243号(株)USTRUST(アストラスト)川崎宮前平店〒216-0007 神奈川県川崎市宮前区小台2-4-5 MCプラザ202 |
Same specifications photos (living)同仕様写真(リビング)  Same specifications LDK also increases likely relaxation time of family reunion
同仕様 家族団らんの時間も増えそうなくつろぎのLDK
Non-living roomリビング以外の居室  Same specifications Bedroom with loft
同仕様 ロフト付ベッドルーム
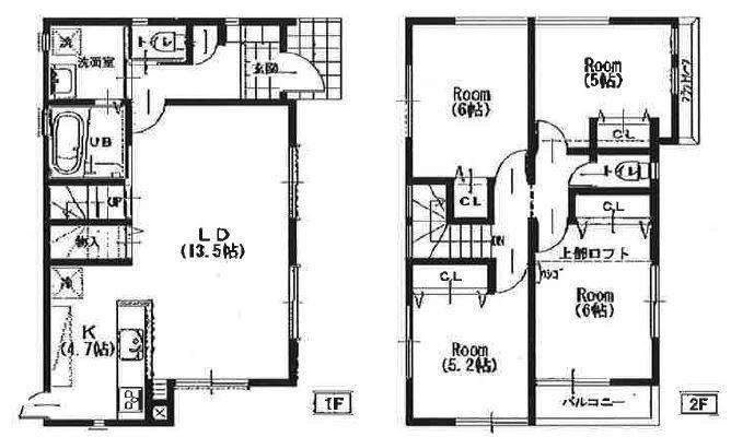
Floor plan間取り図  (Building 2), Price 53,958,000 yen, 4LDK, Land area 128.75 sq m , Building area 95.63 sq m
(2号棟)、価格5395万8000円、4LDK、土地面積128.75m2、建物面積95.63m2
 (3 Building), Price 54,958,000 yen, 4LDK, Land area 148.2 sq m , Building area 95.06 sq m
(3号棟)、価格5495万8000円、4LDK、土地面積148.2m2、建物面積95.06m2
Same specifications photo (kitchen)同仕様写真(キッチン)  Same specifications With gentle dish washing and drying machine is also in the hands of the mom to the environment
同仕様 環境にもママの手にも優しい食器洗浄乾燥機付
Same specifications photo (bathroom)同仕様写真(浴室)  Same specifications Relaxing bath time in the bathroom provided with a wide more than 1 tsubo
同仕様 1坪以上広さを設けた浴室でゆったりバスタイム
Local photos, including front road前面道路含む現地写真  Front 6.3m road, Do not worry even the parking is not good mom
前面6.3m道路、駐車が苦手なママにも心配ご無用
Local appearance photo現地外観写真  State before hitting the foundation of Building 2, It is a state before the house would stand
2号棟の基礎を打つ前の様子、お家が立ってしまうまえの状態です
Wash basin, toilet洗面台・洗面所  Same specifications Fine basin space Produce a time of clear
同仕様 上質な洗面空間がゆとりの時間を演出
Receipt収納  Same specifications Comfortable could live likely with plenty of storage space
同仕様 たっぷりの収納スペースで快適に暮らせそう
Toiletトイレ  Same specifications
同仕様
Cooling and heating ・ Air conditioning冷暖房・空調設備  With floor heating to provide a safe and comfortable warmth
安全で心地よい暖かさを提供する床暖房付
Supermarketスーパー  476m until Inageya Kawasaki Miyamaedaira Ekimae
いなげや川崎宮前平駅前店まで476m
Same specifications photos (Other introspection)同仕様写真(その他内観)  Same specifications Bedroom with loft
同仕様 ロフト付ベッドルーム
Local appearance photo現地外観写真  3 ・ How we have finished out the foundation of 4 Building, Please look at this robust foundation!
3・4号棟の基礎が打ち終わった様子、この頑強な基礎を見てください!
Receipt収納  Same specifications Living space also clean spacious in the storage space of large capacity
同仕様 大容量の収納スペースで住空間もスッキリ広々
Other Equipmentその他設備  Support the busy mom in the dishwasher dryer
食器洗浄乾燥機付で忙しいママをサポート
Same specifications photos (Other introspection)同仕様写真(その他内観)  Same specifications Every day of your laundry happy comfortable in the south balcony
同仕様 南バルコニーで毎日のお洗濯もラクラク快適
Security equipment防犯設備  Your voice mail to worry a TV monitor intercom child
お子様のお留守番にも安心なTVモニタ付インターホン
 Other Equipment
その他設備
Rendering (appearance)完成予想図(外観)  "Miyamaedaira" is an 8-minute of newly built two-story walk from the station
「宮前平」駅より徒歩8分の新築2階建てです
Location
|