|
|
Kawasaki City, Kanagawa Prefecture Nakahara-ku,
神奈川県川崎市中原区
|
|
JR Nambu Line "Hirama" walk 10 minutes
JR南武線「平間」歩10分
|
|
[Group Companies recommended properties] kitchen, bathroom, Bathroom, etc. water around is laid in the vicinity, It is very bright there is a blow to the housework flow line is good living ☆
【グループ会社おすすめ物件】キッチン、洗面室、浴室等水回りが近くにレイアウトされ、家事動線良好ですリビングには吹抜けがあり大変明るいです☆
|
|
3 line 3 Station Available! It is convenient to commute ☆ Supermarket, post office, Schools near, Living environment is good! !
3路線3駅利用可!通勤通学に便利です☆スーパー、郵便局、学校等近く、生活環境良好です!!
|
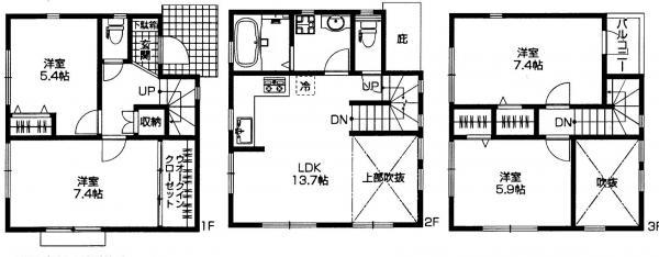
Features pickup 特徴ピックアップ | | 2 along the line more accessible / Super close / System kitchen / Yang per good / All room storage / Around traffic fewer / Toilet 2 places / The window in the bathroom / Atrium / Ventilation good / All living room flooring / Walk-in closet / Three-story or more / Living stairs / City gas / All rooms are two-sided lighting 2沿線以上利用可 /スーパーが近い /システムキッチン /陽当り良好 /全居室収納 /周辺交通量少なめ /トイレ2ヶ所 /浴室に窓 /吹抜け /通風良好 /全居室フローリング /ウォークインクロゼット /3階建以上 /リビング階段 /都市ガス /全室2面採光 |
Price 価格 | | 31,800,000 yen 3180万円 |
Floor plan 間取り | | 4LDK 4LDK |
Units sold 販売戸数 | | 1 units 1戸 |
Total units 総戸数 | | 1 units 1戸 |
Land area 土地面積 | | 74.08 sq m (registration) 74.08m2(登記) |
Building area 建物面積 | | 95.91 sq m (measured) 95.91m2(実測) |
Driveway burden-road 私道負担・道路 | | Nothing, North 4m width 無、北4m幅 |
Completion date 完成時期(築年月) | | December 2013 2013年12月 |
Address 住所 | | Kawasaki City, Kanagawa Prefecture Nakahara-ku, Kariyado 神奈川県川崎市中原区苅宿 |
Traffic 交通 | | JR Nambu Line "Hirama" walk 10 minutes Tokyu Toyoko Line "Motosumiyoshi" walk 18 minutes JR Yokosuka Line "Kawasaki" walk 22 minutes JR南武線「平間」歩10分 東急東横線「元住吉」歩18分 JR横須賀線「新川崎」歩22分 |
Person in charge 担当者より | | Rep Sugawara Erika is Sugawara of website management charge. Property Ya not be fully published in SUUMO, Come Thank also many non-public information, such as plans to sell now, I also please check website (^^) v 担当者菅原 絵里香ホームページ運営担当の菅原です。SUUMOに掲載しきれていない物件や、これから販売予定などの未公開情報も多数ございます是非、ホームページもチェックしてみてくださいね(^^)v |
Contact お問い合せ先 | | TEL: 0800-603-1421 [Toll free] mobile phone ・ Also available from PHS Caller ID is not notified Please contact the "saw SUUMO (Sumo)" If it does not lead, If the real estate company TEL:0800-603-1421【通話料無料】携帯電話・PHSからもご利用いただけます 発信者番号は通知されません 「SUUMO(スーモ)を見た」と問い合わせください つながらない方、不動産会社の方は
|
Expenses 諸費用 | | Rent: 50,000 yen / Month 地代:5万円/月 |
Building coverage, floor area ratio 建ぺい率・容積率 | | 60% ・ 200% 60%・200% |
Time residents 入居時期 | | Consultation 相談 |
Land of the right form 土地の権利形態 | | Some lease (old), Leasehold period new 20 years, Leasehold percentage 16% 一部賃借権(旧)、借地期間新規20年、借地権割合16% |
Structure and method of construction 構造・工法 | | Wooden three-story 木造3階建 |
Use district 用途地域 | | One dwelling 1種住居 |
Other limitations その他制限事項 | | Height district, Quasi-fire zones 高度地区、準防火地域 |
Overview and notices その他概要・特記事項 | | Contact: Sugawara Erika, Facilities: Public Water Supply, This sewage, City gas, Building confirmation number: 13UDI3S Ken No. 00788, Parking: No 担当者:菅原 絵里香、設備:公営水道、本下水、都市ガス、建築確認番号:13UDI3S建00788号、駐車場:無 |
Company profile 会社概要 | | <Mediation> Governor of Tokyo (5) No. 071012 (Corporation) All Japan Real Estate Association (Corporation) metropolitan area real estate Fair Trade Council member (Ltd.) living living 販本 shop Yubinbango167-0022 Suginami-ku, Tokyo Shimo Igusa 3-39-17 <仲介>東京都知事(5)第071012号(公社)全日本不動産協会会員 (公社)首都圏不動産公正取引協議会加盟(株)リビング住販本店〒167-0022 東京都杉並区下井草3-39-17 |