New Homes » Kanto » Kanagawa Prefecture » Kawasaki Kou District
 
| | Kawasaki-shi, Kanagawa-ku, seafood 神奈川県川崎市幸区 |
| JR Keihin Tohoku Line "Kawasaki" bus 13 minutes Ogura downtown walk 3 minutes JR京浜東北線「川崎」バス13分小倉下町歩3分 |
| "Yako" a 20-minute walk, "Kawasaki" station bus 13 minutes. It is aligned many commercial premises in the vicinity Kawasaki Station, It is convenient for shopping. LDK22 Pledge is three-sided lighting, Zenshitsuminami facing bright Mato. Earthquake resistant ・ Vibration Control housing. 「矢向」徒歩20分、「川崎」駅バス13分。川崎駅周辺には多数商業施設が揃っており、買い物にも便利です。LDK22帖は3面採光、全室南向きの明るい間取。耐震・制震住宅。 |
Features pickup 特徴ピックアップ | | Corresponding to the flat-35S / 2 along the line more accessible / LDK20 tatami mats or more / System kitchen / Yang per good / Or more before road 6m / Shaping land / Washbasin with shower / Face-to-face kitchen / Toilet 2 places / Double-glazing / Zenshitsuminami direction / Warm water washing toilet seat / Underfloor Storage / The window in the bathroom / TV monitor interphone / Ventilation good / Dish washing dryer / Walk-in closet / Water filter / Three-story or more / Living stairs / City gas / All rooms are two-sided lighting / Flat terrain フラット35Sに対応 /2沿線以上利用可 /LDK20畳以上 /システムキッチン /陽当り良好 /前道6m以上 /整形地 /シャワー付洗面台 /対面式キッチン /トイレ2ヶ所 /複層ガラス /全室南向き /温水洗浄便座 /床下収納 /浴室に窓 /TVモニタ付インターホン /通風良好 /食器洗乾燥機 /ウォークインクロゼット /浄水器 /3階建以上 /リビング階段 /都市ガス /全室2面採光 /平坦地 | Price 価格 | | 43,800,000 yen 4380万円 | Floor plan 間取り | | 2LDK + S (storeroom) 2LDK+S(納戸) | Units sold 販売戸数 | | 1 units 1戸 | Land area 土地面積 | | 74.6 sq m (measured) 74.6m2(実測) | Building area 建物面積 | | 103.5 sq m (measured), Among the first floor garage 14.9 sq m 103.5m2(実測)、うち1階車庫14.9m2 | Driveway burden-road 私道負担・道路 | | Nothing, North 6m width 無、北6m幅 | Completion date 完成時期(築年月) | | January 2014 2014年1月 | Address 住所 | | Kawasaki-shi, Kanagawa-ku, Kou Ogura 神奈川県川崎市幸区小倉 | Traffic 交通 | | JR Keihin Tohoku Line "Kawasaki" bus 13 minutes Ogura downtown walk 3 minutes JR Nambu Line "Yako" walk 20 minutes JR京浜東北線「川崎」バス13分小倉下町歩3分 JR南武線「矢向」歩20分
| Related links 関連リンク | | [Related Sites of this company] 【この会社の関連サイト】 | Person in charge 担当者より | | Person in charge of real-estate and building Furuta Hirotoshi Age: 30 Daigyokai experience: In the eight years, Ltd. Anshin My Home, To dispel concerns about real estate purchase even a little, We offer peace of mind as a professional real estate sales. "Appropriate purchase price," "mortgage rates comparison," "disaster", etc., Please feel free to contact us. 担当者宅建古田 博敏年齢:30代業界経験:8年株式会社あんしんマイホームでは、不動産購入に対する不安を少しでも払拭し、不動産販売のプロとして安心をご提供いたします。「適正な購入価格」「住宅ローン金利比較」「災害」等、お気軽にご相談下さい。 | Contact お問い合せ先 | | TEL: 0800-602-5886 [Toll free] mobile phone ・ Also available from PHS Caller ID is not notified Please contact the "saw SUUMO (Sumo)" If it does not lead, If the real estate company TEL:0800-602-5886【通話料無料】携帯電話・PHSからもご利用いただけます 発信者番号は通知されません 「SUUMO(スーモ)を見た」と問い合わせください つながらない方、不動産会社の方は
| Building coverage, floor area ratio 建ぺい率・容積率 | | 60% ・ 200% 60%・200% | Time residents 入居時期 | | February 2014 schedule 2014年2月予定 | Land of the right form 土地の権利形態 | | Ownership 所有権 | Structure and method of construction 構造・工法 | | Wooden three-story 木造3階建 | Use district 用途地域 | | One middle and high 1種中高 | Other limitations その他制限事項 | | Regulations have by the Landscape Act, Height district, Quasi-fire zones, Height ceiling Yes, Shade limit Yes, Matrix S is the closet 景観法による規制有、高度地区、準防火地域、高さ最高限度有、日影制限有、間取Sは納戸 | Overview and notices その他概要・特記事項 | | Contact: Furuta Hirotoshi, Facilities: Public Water Supply, This sewage, City gas, Building confirmation number: Ken No. 01339, Parking: Garage 担当者:古田 博敏、設備:公営水道、本下水、都市ガス、建築確認番号:建01339号、駐車場:車庫 | Company profile 会社概要 | | <Mediation> Governor of Kanagawa Prefecture (1) the first 027,909 No. FP housing counseling network Co., Ltd. Anshin My Home Yubinbango213-0011 Kawasaki City, Kanagawa Prefecture Takatsu-ku, Hisamoto 3-13-10 <仲介>神奈川県知事(1)第027909号FP住宅相談ネットワーク(株)あんしんマイホーム〒213-0011 神奈川県川崎市高津区久本3-13-10 |
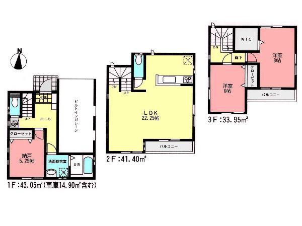
Floor plan間取り図  43,800,000 yen, 2LDK+S, Land area 74.6 sq m , Building area 103.5 sq m floor plan
4380万円、2LDK+S、土地面積74.6m2、建物面積103.5m2 間取図
Compartment figure区画図  43,800,000 yen, 2LDK+S, Land area 74.6 sq m , Building area 103.5 sq m compartment view
4380万円、2LDK+S、土地面積74.6m2、建物面積103.5m2 区画図
Location
|