|
|
Kawasaki-shi, Kanagawa-ku, seafood
神奈川県川崎市幸区
|
|
JR Nambu Line "Yako" walk 18 minutes
JR南武線「矢向」歩18分
|
|
Year Available, 2 along the line more accessible, Super close, System kitchen, Bathroom Dryer, A quiet residential area, LDK15 tatami mats or more, Or more before road 6mese-style room, Shaping land, Toilet 2 places, 2-story, City gas,
年内入居可、2沿線以上利用可、スーパーが近い、システムキッチン、浴室乾燥機、閑静な住宅地、LDK15畳以上、前道6m以上、和室、整形地、トイレ2ヶ所、2階建、都市ガス、
|
|
Cross Garden about 180m About 10m under the floor storage Ogura Abelia park, Two-story 4LDK dwelling units with attic storage
クロスガーデン約180m 小倉アベリア公園約10m床下収納、屋根裏収納付二階建て4LDK住戸
|
Features pickup 特徴ピックアップ | | Immediate Available / 2 along the line more accessible / Super close / System kitchen / Bathroom Dryer / All room storage / A quiet residential area / LDK15 tatami mats or more / Or more before road 6m / Japanese-style room / Starting station / Shaping land / Toilet 2 places / 2-story / 2 or more sides balcony / Underfloor Storage / The window in the bathroom / Ventilation good / City gas / All rooms are two-sided lighting / Flat terrain / Attic storage / Development subdivision in 即入居可 /2沿線以上利用可 /スーパーが近い /システムキッチン /浴室乾燥機 /全居室収納 /閑静な住宅地 /LDK15畳以上 /前道6m以上 /和室 /始発駅 /整形地 /トイレ2ヶ所 /2階建 /2面以上バルコニー /床下収納 /浴室に窓 /通風良好 /都市ガス /全室2面採光 /平坦地 /屋根裏収納 /開発分譲地内 |
Price 価格 | | 41 million yen 4100万円 |
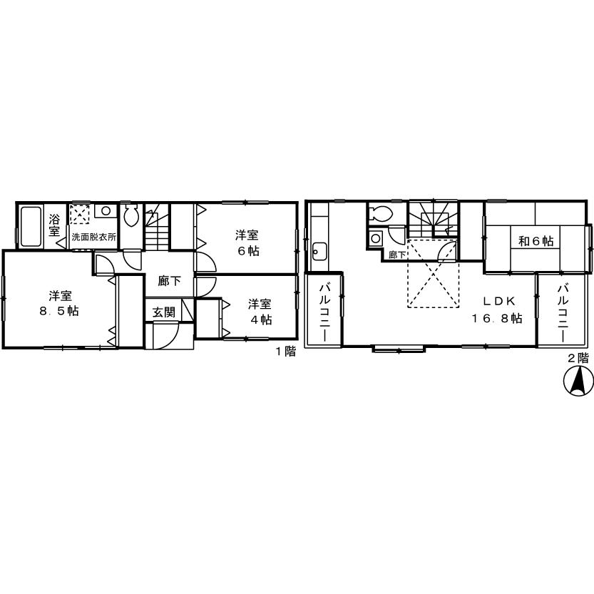
Floor plan 間取り | | 4LDK 4LDK |
Units sold 販売戸数 | | 1 units 1戸 |
Land area 土地面積 | | 100.5 sq m (30.40 tsubo) (Registration) 100.5m2(30.40坪)(登記) |
Building area 建物面積 | | 106.58 sq m (32.24 tsubo) (Registration) 106.58m2(32.24坪)(登記) |
Driveway burden-road 私道負担・道路 | | Share equity 475.8 sq m × (1 / 19), East 6m width (contact the road width 6.4m) 共有持分475.8m2×(1/19)、東6m幅(接道幅6.4m) |
Completion date 完成時期(築年月) | | April 2013 2013年4月 |
Address 住所 | | Ogura Kawasaki City, Kanagawa Prefecture Kou District 4-29 神奈川県川崎市幸区小倉4-29 |
Traffic 交通 | | JR Nambu Line "Yako" walk 18 minutes JR Yokosuka Line "Kawasaki" walk 27 minutes JR Tokaido Line "Kawasaki" bus 17 minutes Sueyoshi Bridge walk 5 minutes JR南武線「矢向」歩18分 JR横須賀線「新川崎」歩27分JR東海道本線「川崎」バス17分末吉橋歩5分
|
Related links 関連リンク | | [Related Sites of this company] 【この会社の関連サイト】 |
Person in charge 担当者より | | Person in charge of real-estate and building Shimomura Takuya Age: 30 Daigyokai experience: your sale of 13-year real estate, Purchase, Contact Jugae, Please feel free to contact us about anything related to inheritance, etc. house. I myself also has experience as a purchase and the recent apartment sale because we believe that it is your proposal in closer to the customer standpoint. 担当者宅建下村 卓也年齢:30代業界経験:13年不動産のご売却、ご購入、お住替え、相続等住まいに関することなら何でもお気軽にご相談下さい。私自身も最近マンション売却と購入を経験しておりますのでお客様により近い立場でのご提案ができると考えております。 |
Contact お問い合せ先 | | TEL: 0800-603-8160 [Toll free] mobile phone ・ Also available from PHS Caller ID is not notified Please contact the "saw SUUMO (Sumo)" If it does not lead, If the real estate company TEL:0800-603-8160【通話料無料】携帯電話・PHSからもご利用いただけます 発信者番号は通知されません 「SUUMO(スーモ)を見た」と問い合わせください つながらない方、不動産会社の方は
|
Building coverage, floor area ratio 建ぺい率・容積率 | | 60% ・ 200% 60%・200% |
Time residents 入居時期 | | Immediate available 即入居可 |
Land of the right form 土地の権利形態 | | Ownership 所有権 |
Structure and method of construction 構造・工法 | | Wooden 2-story 木造2階建 |
Use district 用途地域 | | One middle and high 1種中高 |
Other limitations その他制限事項 | | Regulations have by the Landscape Act, Regulations have by the River Law, Height district, Quasi-fire zones 景観法による規制有、河川法による規制有、高度地区、準防火地域 |
Overview and notices その他概要・特記事項 | | Contact: Shimomura Takuya, Facilities: Public Water Supply, This sewage, City gas, Parking: car space 担当者:下村 卓也、設備:公営水道、本下水、都市ガス、駐車場:カースペース |
Company profile 会社概要 | | <Mediation> Minister of Land, Infrastructure and Transport (2) the first 007,535 No. Nice Co., Ltd. Nice residence of Information Center Smile Cafe Kawasaki Yubinbango212-0012 Kawasaki-shi, Kanagawa-ku, Saiwai Nakasaiwai cho 4-51-1 NIC Urban spirits Kawasaki first floor <仲介>国土交通大臣(2)第007535号ナイス(株)ナイス住まいの情報館住まいるCafe川崎〒212-0012 神奈川県川崎市幸区中幸町4-51-1 NICアーバンスピリッツ川崎1階 |