New Homes » Kanto » Kanagawa Prefecture » Kawasaki Kou District
 
| | Kawasaki-shi, Kanagawa-ku, seafood 神奈川県川崎市幸区 |
| JR Tokaido Line "Kawasaki" walk 11 minutes JR東海道本線「川崎」歩11分 |
| ◆ JR "Kawasaki" station walk 11 minutes ・ Keihin Electric Express Railway "Keikyu Kawasaki" station walk 9 minutes! 2 routes available! Convenient close to living in a large shopping center! It is newly built single-family of fully equipped ◆JR「川崎」駅徒歩11分・京浜急行「京急川崎」駅徒歩9分!2路線利用可能!大型ショッピングセンターに近く生活に便利!設備充実の新築戸建です |
| ◆ Property Point !! ・ Although currently it is incomplete, Since there is a property that has been completed of the other site you will in a room look! You can guide! ・ With car space newly built single-family 30 million yen in the popular Kawasaki Station walking distance! ・ All room pair glass ・ Dishwashing equipment with a system Kitchen ・ Bathroom Dryer ・ With TV ・ IC card key to the front door ・ Charm house insurance ◆ ◆ Detailed materials for this property, Current and local photos now, You can also send together another listing of near Kawasaki Station! First of all, please contact us! We look forward to. 2 along the line more accessible, It is close to the city, System kitchen, Bathroom Dryer, Yang per good, All room storage, Siemens south road, Washbasin with shower, Two-story ◆物件Point!!・現在未完成ですが、他現場の完成している物件がありますので室内ご覧になれます!ご案内可能です!・人気の川崎駅徒歩圏でカースペース付き新築一戸建てが3000万円台!・全居室ペアガラス・食器洗浄器機付システムキッチン・浴室乾燥機・TV付き・玄関にICカードキー・まもりすまい保険加入◆◆この物件の詳しい資料、今現在の現地写真と、川崎駅付近の別の物件情報もまとめてお送りする事ができます!まずはお問い合わせ下さい!お待ちしております。2沿線以上利用可、市街地が近い、システムキッチン、浴室乾燥機、陽当り良好、全居室収納、南側道路面す、シャワー付洗面台、2階建て |
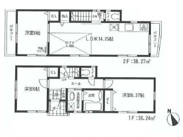
Features pickup 特徴ピックアップ | | 2 along the line more accessible / It is close to the city / System kitchen / Bathroom Dryer / Yang per good / All room storage / Siemens south road / Washbasin with shower / Toilet 2 places / 2-story / 2 or more sides balcony / Double-glazing / loft / TV with bathroom / The window in the bathroom / TV monitor interphone / Urban neighborhood / All living room flooring / Dish washing dryer / All room 6 tatami mats or more / All rooms southwestward 2沿線以上利用可 /市街地が近い /システムキッチン /浴室乾燥機 /陽当り良好 /全居室収納 /南側道路面す /シャワー付洗面台 /トイレ2ヶ所 /2階建 /2面以上バルコニー /複層ガラス /ロフト /TV付浴室 /浴室に窓 /TVモニタ付インターホン /都市近郊 /全居室フローリング /食器洗乾燥機 /全居室6畳以上 /全室南西向き | Event information イベント情報 | | Local guide Board (Please be sure to ask in advance) schedule / Every Saturday, Sunday and public holidays time / 9:00 ~ 21:00 ※ Local guide the Board does not matter special time. For example, a weekday night 20 pm ~ , 21 pm ~ Also we will correspond in such. (Except Wednesday) Please feel free to tell us. -=-=-=-=-=-=-=-=-=-=-=-=-=-=-=-=-=-=-=--=-=-=-=-=-=-=-=-=-=-=-=-=-=-=-=-=-=-=--=-=-=-=-=-=-=-=-=-=-=-=-=-=-=-=-=-=-=-=-=-=- ■ ■ ■ Mortgage Consultation Notice ■ ■ ■ Tell ・ The Corporation, We have carried out at any time mortgage Consultation. You can estimate the properties that you can buy from the annual income, Loan estimates the property to be worried about, Any cost that take time to actually buy real estate? , Specific financial planning simulation Please leave. Such as anxiety and questions in the case of real estate purchase, In words that our professional staff is easy to understand even the general public, Carefully eliminated ・ We support. Also, Since this can be a guide when looking for property on the net, Please feel free to contact us first. →→→ toll-free [0800-808-9889] ←←← access map http: / / www.teru-c.co.jp / company / map.html ※ Wednesday will be a regular holiday. In the case of Wednesday, Please contact us from the bottom of the orange document request button. -=-=-=-=-=-=-=-=-=-=-=-=-=-=-=-=-=-=-=--=-=-=-=-=-=-=-=-=-=-=-=-=-=-=-=-=-=-=--=-=-=-=-=-=-=-=-=-=-=-=-=-=-=-=-=-=-=-=-=-=- 現地案内会(事前に必ずお問い合わせください)日程/毎週土日祝時間/9:00 ~ 21:00※現地案内会は特別時間は問いません。例えば平日夜20時 ~ 、21時 ~ などでも対応いたします。(水曜日を除く)お気軽にお申し付けください。-=-=-=-=-=-=-=-=-=-=-=-=-=-=-=-=-=-=-=--=-=-=-=-=-=-=-=-=-=-=-=-=-=-=-=-=-=-=--=-=-=-=-=-=-=-=-=-=-=-=-=-=-=-=-=-=-=-=-=-=-■■■住宅ローン相談会のお知らせ■■■テル・コーポレーションでは、随時住宅ローン相談会を実施しております。年収から買える物件を試算したり、気になる物件のローン試算、実際不動産を購入する際どんな費用がかかるの?なども含め、具体的な資金計画シュミレーションもお任せください。不動産ご購入の際の不安や疑問点などは、弊社の専門のスタッフが一般の方々でもわかりやすい言葉で、丁寧に解消・サポートいたします。また、ネットで物件を探す際の目安にもなりますので、まずお気軽にお問い合わせください。 →→→フリーダイヤル 【0800-808-9889】←←← アクセスマップ http://www.teru-c.co.jp/company/map.html ※水曜日は定休日となります。水曜日の場合は、下部のオレンジ色資料請求ボタンよりお問い合わせください。-=-=-=-=-=-=-=-=-=-=-=-=-=-=-=-=-=-=-=--=-=-=-=-=-=-=-=-=-=-=-=-=-=-=-=-=-=-=--=-=-=-=-=-=-=-=-=-=-=-=-=-=-=-=-=-=-=-=-=-=- | Property name 物件名 | | ◆ ◆ Kawasaki Station walk 11 minutes! Car space Yes + Bathroom Dryer ・ TV with + 3LDK + with loft! Limited Building 1! ◆ ◆ ◆◆川崎駅徒歩11分!カースペース有+浴室乾燥・TV付+3LDK+ロフト付!限定1棟!◆◆ | Price 価格 | | 39,800,000 yen 3980万円 | Floor plan 間取り | | 3LDK 3LDK | Units sold 販売戸数 | | 1 units 1戸 | Total units 総戸数 | | 1 units 1戸 | Land area 土地面積 | | 64.99 sq m (19.65 tsubo) (measured) 64.99m2(19.65坪)(実測) | Building area 建物面積 | | 74.51 sq m (22.53 tsubo) (measured) 74.51m2(22.53坪)(実測) | Driveway burden-road 私道負担・道路 | | Nothing, South 5.4m width (contact the road width 15.4m) 無、南5.4m幅(接道幅15.4m) | Completion date 完成時期(築年月) | | February 2014 2014年2月 | Address 住所 | | Kawasaki-shi, Kanagawa-ku, Saiwai Saiwaicho 3 神奈川県川崎市幸区幸町3 | Traffic 交通 | | JR Tokaido Line "Kawasaki" walk 11 minutes Keikyū Main Line "Keikyu Kawasaki" walk 9 minutes JR Nambu Line "Shitte" walk 22 minutes JR東海道本線「川崎」歩11分 京急本線「京急川崎」歩9分 JR南武線「尻手」歩22分
| Related links 関連リンク | | [Related Sites of this company] 【この会社の関連サイト】 | Person in charge 担当者より | | Personnel Masayuki Arai industry experience: 3 years Yokohama real estate company Tel ・ Corporation is Arai. Since I myself am from Yokohama, Because although that the property is, of course, will answer also in detail such as the characteristics of each area, Please feel free to contact us! 担当者荒井 誠之業界経験:3年横浜の不動産会社テル・コーポレーションの荒井です。私自身が横浜出身ですので、物件の事はもちろんですが各エリアの特徴なども詳しくお答えしますので、お気軽にご相談下さい! | Contact お問い合せ先 | | TEL: 0800-808-9889 [Toll free] mobile phone ・ Also available from PHS Caller ID is not notified Please contact the "saw SUUMO (Sumo)" If it does not lead, If the real estate company TEL:0800-808-9889【通話料無料】携帯電話・PHSからもご利用いただけます 発信者番号は通知されません 「SUUMO(スーモ)を見た」と問い合わせください つながらない方、不動産会社の方は
| Building coverage, floor area ratio 建ぺい率・容積率 | | 60% ・ 200% 60%・200% | Time residents 入居時期 | | Consultation 相談 | Land of the right form 土地の権利形態 | | Ownership 所有権 | Structure and method of construction 構造・工法 | | Wooden 2-story 木造2階建 | Use district 用途地域 | | Quasi-residence 準住居 | Overview and notices その他概要・特記事項 | | Contact: Masayuki Arai, Building confirmation number: No. 12KAK Ken確 05296, Parking: car space 担当者:荒井 誠之、建築確認番号:第12KAK建確05296号、駐車場:カースペース | Company profile 会社概要 | | <Mediation> Kanagawa Governor (2) No. 025129 (Ltd.) Tel ・ Corporation Yubinbango220-0011 Kanagawa Prefecture, Nishi-ku, Yokohama-shi Takashima 2-6-32 <仲介>神奈川県知事(2)第025129号(株)テル・コーポレーション〒220-0011 神奈川県横浜市西区高島2-6-32 |
Otherその他  ※ Photo saw from our office, Minato Mirai of landscape. Slowly in this open and full of office, You can leisurely review of the property! Yokohama ・ Tel Save on Kawasaki of real estate ・ Please leave Corporation.
※写真は当社オフィスから見た、みなとみらいの風景。この開放的溢れるオフィスでゆっくり、ゆったりと物件を吟味できます!横浜・川崎の不動産のことならテル・コーポレーションにお任せ下さい。
 The company specification example (living)
同社仕様例(リビング)
 39,800,000 yen, 3LDK, Land area 64.99 sq m , Building area 74.51 sq m
3980万円、3LDK、土地面積64.99m2、建物面積74.51m2
Same specifications photo (kitchen)同仕様写真(キッチン)  The company specification example (kitchen)
同社仕様例(キッチン)
Same specifications photos (Other introspection)同仕様写真(その他内観)  The company specification example Washroom
同社仕様例 洗面所
Same specifications photo (bathroom)同仕様写真(浴室)  The company specification example (bathroom)
同社仕様例(浴室)
Same specifications photos (Other introspection)同仕様写真(その他内観)  The company specification example Western style room
同社仕様例 洋室
 The company specification example Receipt
同社仕様例 収納
 The company specification example Exterior Photos
同社仕様例 外観写真
 39,800,000 yen, 3LDK, Land area 64.99 sq m , Building area 74.51 sq m
3980万円、3LDK、土地面積64.99m2、建物面積74.51m2
 The company specification example toilet
同社仕様例 トイレ
Hospital病院  Sanjo clinic 240m to
三條医院 まで240m
Shopping centreショッピングセンター  Kawasaki Plaza 900m to
ラゾーナ川崎プラザ まで900m
Other Environmental Photoその他環境写真  Keihin Electric Express Railway Keikyu Kawasaki Station 800m to
京浜急行電鉄京急川崎駅 まで800m
Junior high school中学校  Kawasaki Municipal Minamikawara junior high school 900m to
川崎市立南河原中学校 まで900m
Primary school小学校  Kawasaki Tatsuko cho Elementary School 450m to
川崎市立幸町小学校 まで450m
Local appearance photo現地外観写真  Local (11 May 2013) Shooting
現地(2013年11月)撮影
Local photos, including front road前面道路含む現地写真  Local (11 May 2013) Shooting
現地(2013年11月)撮影
Location
|