New Homes » Kanto » Kanagawa Prefecture » Kawasaki Kou District
 
| | Kawasaki-shi, Kanagawa-ku, seafood 神奈川県川崎市幸区 |
| JR Nambu Line "Kashimada" walk 11 minutes JR南武線「鹿島田」歩11分 |
| ◆ Furuichiba elementary school About 500m ◆ Hirama junior high school About 1000m ◆ Kobato kindergarten About 250m ◆ Olympic About 500m ◆ Nambu clinic About 500m ◆ Kou ward office About 900m ◆古市場小学校 約500m ◆平間中学校 約1000m ◆小鳩幼稚園 約250m◆オリンピック 約500m ◆南武医院 約500m ◆幸区役所 約900m |
| Siemens south road, 2 along the line more accessible, Yang per good, A quiet residential area, Flat terrain, Facing south, Corresponding to the flat-35S, Fiscal year Available, Super close, System kitchen, Bathroom Dryer, All room storage, Flat to the station, LDK15 tatami mats or more, Around traffic fewer, Corner lotese-style room, Starting station, Shaping land, Washbasin with shower, Barrier-free, Toilet 2 places, Bathroom 1 tsubo or more, 2-story, 2 or more sides balcony, South balcony, Double-glazing, Warm water washing toilet seat, Underfloor Storage, The window in the bathroom, TV monitor interphone, Ventilation good, Water filter, Three-story or more, Living stairs, City gas 南側道路面す、2沿線以上利用可、陽当り良好、閑静な住宅地、平坦地、南向き、フラット35Sに対応、年度内入居可、スーパーが近い、システムキッチン、浴室乾燥機、全居室収納、駅まで平坦、LDK15畳以上、周辺交通量少なめ、角地、和室、始発駅、整形地、シャワー付洗面台、バリアフリー、トイレ2ヶ所、浴室1坪以上、2階建、2面以上バルコニー、南面バルコニー、複層ガラス、温水洗浄便座、床下収納、浴室に窓、TVモニタ付インターホン、通風良好、浄水器、3階建以上、リビング階段、都市ガス |
Features pickup 特徴ピックアップ | | Corresponding to the flat-35S / Pre-ground survey / 2 along the line more accessible / Fiscal year Available / Super close / Facing south / System kitchen / Bathroom Dryer / Yang per good / All room storage / Flat to the station / Siemens south road / A quiet residential area / LDK15 tatami mats or more / Around traffic fewer / Shaping land / Washbasin with shower / Barrier-free / Toilet 2 places / Bathroom 1 tsubo or more / 2 or more sides balcony / South balcony / Double-glazing / Warm water washing toilet seat / The window in the bathroom / TV monitor interphone / Ventilation good / Water filter / Three-story or more / Living stairs / City gas / Flat terrain フラット35Sに対応 /地盤調査済 /2沿線以上利用可 /年度内入居可 /スーパーが近い /南向き /システムキッチン /浴室乾燥機 /陽当り良好 /全居室収納 /駅まで平坦 /南側道路面す /閑静な住宅地 /LDK15畳以上 /周辺交通量少なめ /整形地 /シャワー付洗面台 /バリアフリー /トイレ2ヶ所 /浴室1坪以上 /2面以上バルコニー /南面バルコニー /複層ガラス /温水洗浄便座 /浴室に窓 /TVモニタ付インターホン /通風良好 /浄水器 /3階建以上 /リビング階段 /都市ガス /平坦地 | Property name 物件名 | | Libre Garden Kou District Furuichiba Newly built single-family リーブルガーデン幸区古市場 新築戸建 | Price 価格 | | 40,800,000 yen 4080万円 | Floor plan 間取り | | 2LDK + 2S (storeroom) 2LDK+2S(納戸) | Units sold 販売戸数 | | 1 units 1戸 | Land area 土地面積 | | 69.9 sq m 69.9m2 | Building area 建物面積 | | 107.95 sq m 107.95m2 | Driveway burden-road 私道負担・道路 | | Nothing, South 3.2m width 無、南3.2m幅 | Completion date 完成時期(築年月) | | March 2014 2014年3月 | Address 住所 | | Kawasaki-shi, Kanagawa-ku, seafood Furuichiba 神奈川県川崎市幸区古市場 | Traffic 交通 | | JR Nambu Line "Kashimada" walk 11 minutes JR Yokosuka Line "Kawasaki" walk 16 minutes JR Keihin Tohoku Line "Kawasaki" bus 17 minutes before the Budokan walk 6 minutes JR南武線「鹿島田」歩11分 JR横須賀線「新川崎」歩16分JR京浜東北線「川崎」バス17分武道館前歩6分
| Related links 関連リンク | | [Related Sites of this company] 【この会社の関連サイト】 | Person in charge 担当者より | | Rep Nakajima 担当者中島 | Contact お問い合せ先 | | TEL: 0800-601-4812 [Toll free] mobile phone ・ Also available from PHS Caller ID is not notified Please contact the "saw SUUMO (Sumo)" If it does not lead, If the real estate company TEL:0800-601-4812【通話料無料】携帯電話・PHSからもご利用いただけます 発信者番号は通知されません 「SUUMO(スーモ)を見た」と問い合わせください つながらない方、不動産会社の方は
| Building coverage, floor area ratio 建ぺい率・容積率 | | 60% ・ 160% 60%・160% | Time residents 入居時期 | | March 2014 schedule 2014年3月予定 | Land of the right form 土地の権利形態 | | Ownership 所有権 | Structure and method of construction 構造・工法 | | Wooden three-story 木造3階建 | Use district 用途地域 | | One middle and high 1種中高 | Other limitations その他制限事項 | | Setback: upon 4.16 sq m , Regulations have by the Landscape Act, Advanced use district, Quasi-fire zones, Shade limit Yes, Contact road and the step Yes セットバック:要4.16m2、景観法による規制有、高度利用地区、準防火地域、日影制限有、接道と段差有 | Overview and notices その他概要・特記事項 | | Contact: Nakajima, Facilities: Public Water Supply, This sewage, City gas, Building confirmation number: first 13UDI2K Ken 00605, Parking: car space 担当者:中島、設備:公営水道、本下水、都市ガス、建築確認番号:第13UDI2K建00605、駐車場:カースペース | Company profile 会社概要 | | <Marketing alliance (agency)> Minister of Land, Infrastructure and Transport (2) No. 007535 Nice Co., Ltd. Nice residence of Information Center Smile Cafe Kawasaki Yubinbango212-0012 Kawasaki-shi, Kanagawa-ku, Saiwai Nakasaiwai cho 4-51-1 NIC Urban spirits <販売提携(代理)>国土交通大臣(2)第007535号ナイス(株)ナイス住まいの情報館住まいるCafe川崎〒212-0012 神奈川県川崎市幸区中幸町4-51-1 NICアーバンスピリッツ川崎1階 |
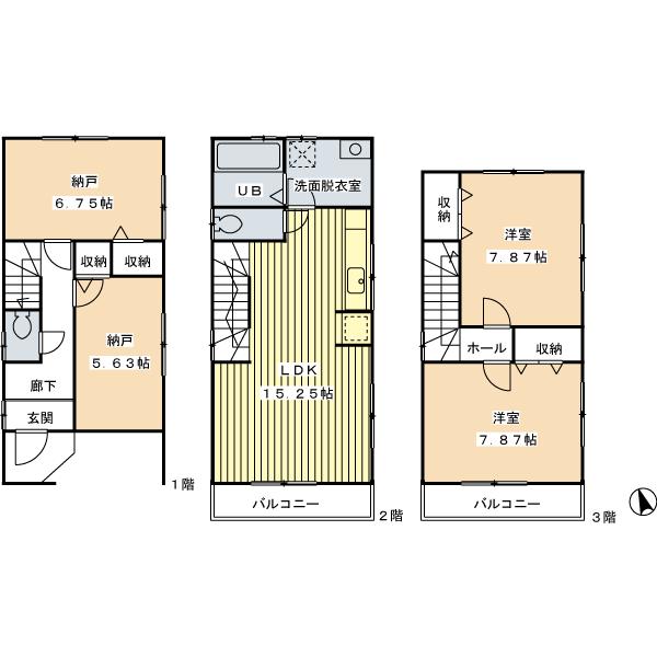
Floor plan間取り図  40,800,000 yen, 2LDK + 2S (storeroom), Land area 69.9 sq m , Building area 107.95 sq m 2LDK + 2S
4080万円、2LDK+2S(納戸)、土地面積69.9m2、建物面積107.95m2 2LDK+2S
Otherその他  It is a construction case.
施工事例です。
 It is a construction case.
施工事例です。
 It is a construction case.
施工事例です。
Local appearance photo現地外観写真  Do your description of the detail in the local. Please do not hesitate to offer.
現地で詳細のご説明を致します。 お気軽にお申し出下さい。
Do your description of the detail in the local. Please do not hesitate to offer.現地で詳細のご説明を致します。お気軽にお申し出ください。  Do your description of the detail in the local.
現地で詳細のご説明を致します。
Government office役所  Kou ward office about 900m
幸区役所約900m
Supermarketスーパー  Olympic about 500m
オリンピック約500m
 Life about 550m
ライフ約550m
Location
|