|
|
Kawasaki-shi, Kanagawa-ku, seafood
神奈川県川崎市幸区
|
|
JR Yokosuka Line "Kawasaki" walk 22 minutes
JR横須賀線「新川崎」歩22分
|
|
Elementary and junior high school is near a house of Shinkawasaki walk 22 minutes
新川崎駅徒歩22分の小中学校近い住宅です
|
Features pickup 特徴ピックアップ | | Design house performance with evaluation / Corresponding to the flat-35S / Energy-saving water heaters / System kitchen / Bathroom Dryer / Yang per good / A quiet residential area / LDK15 tatami mats or more / Washbasin with shower / Face-to-face kitchen / Toilet 2 places / 2-story / South balcony / Warm water washing toilet seat / Underfloor Storage / The window in the bathroom / TV monitor interphone / City gas / All rooms are two-sided lighting 設計住宅性能評価付 /フラット35Sに対応 /省エネ給湯器 /システムキッチン /浴室乾燥機 /陽当り良好 /閑静な住宅地 /LDK15畳以上 /シャワー付洗面台 /対面式キッチン /トイレ2ヶ所 /2階建 /南面バルコニー /温水洗浄便座 /床下収納 /浴室に窓 /TVモニタ付インターホン /都市ガス /全室2面採光 |
Price 価格 | | 47,800,000 yen 4780万円 |
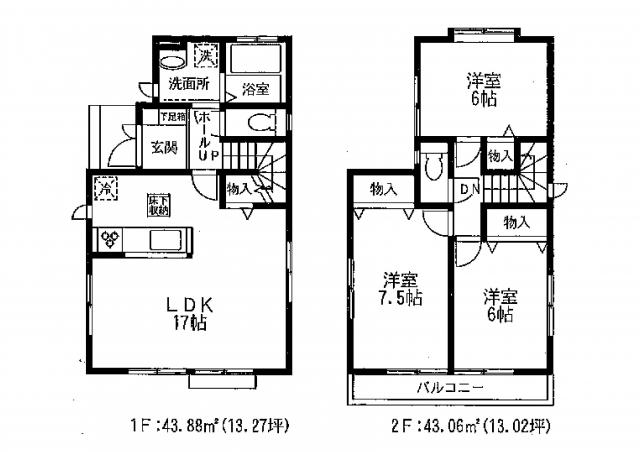
Floor plan 間取り | | 3LDK 3LDK |
Units sold 販売戸数 | | 1 units 1戸 |
Total units 総戸数 | | 8 units 8戸 |
Land area 土地面積 | | 99.55 sq m (30.11 tsubo) (Registration) 99.55m2(30.11坪)(登記) |
Building area 建物面積 | | 86.94 sq m (26.29 tsubo) (Registration) 86.94m2(26.29坪)(登記) |
Driveway burden-road 私道負担・道路 | | Nothing, North 4m width, West 4m width 無、北4m幅、西4m幅 |
Completion date 完成時期(築年月) | | April 2014 2014年4月 |
Address 住所 | | Kawasaki-shi, Kanagawa-ku, Kou Ogura 5-6-34 神奈川県川崎市幸区小倉5-6-34 |
Traffic 交通 | | JR Yokosuka Line "Kawasaki" walk 22 minutes JR横須賀線「新川崎」歩22分 |
Person in charge 担当者より | | The person in charge Co., Ltd. off 担当者株式会社フ |
Contact お問い合せ先 | | TEL: 0800-805-5715 [Toll free] mobile phone ・ Also available from PHS Caller ID is not notified Please contact the "saw SUUMO (Sumo)" If it does not lead, If the real estate company TEL:0800-805-5715【通話料無料】携帯電話・PHSからもご利用いただけます 発信者番号は通知されません 「SUUMO(スーモ)を見た」と問い合わせください つながらない方、不動産会社の方は
|
Building coverage, floor area ratio 建ぺい率・容積率 | | 60% ・ 200% 60%・200% |
Land of the right form 土地の権利形態 | | Ownership 所有権 |
Structure and method of construction 構造・工法 | | Wooden 2-story 木造2階建 |
Use district 用途地域 | | One middle and high 1種中高 |
Overview and notices その他概要・特記事項 | | Contact: Corporation off, Facilities: Public Water Supply, This sewage, City gas, Building confirmation number: 13UDII1K00384, Parking: car space 担当者:株式会社フ、設備:公営水道、本下水、都市ガス、建築確認番号:13UDII1K00384、駐車場:カースペース |
Company profile 会社概要 | | <Mediation> Governor of Kanagawa Prefecture (1) No. 028576 (Ltd.) Face Residence Yubinbango212-0014 Kawasaki-shi, Kanagawa-ku, Saiwai Omiya-cho, 1310 Muza Kawasaki second floor <仲介>神奈川県知事(1)第028576号(株)フェイスレジデンス〒212-0014 神奈川県川崎市幸区大宮町1310 ミューザ川崎2階 |