New Homes » Kanto » Kanagawa Prefecture » Kawasaki Takatsu-ku
 
| | Kawasaki City, Kanagawa Prefecture Takatsu-ku 神奈川県川崎市高津区 |
| JR Nambu Line "Musashi-Shinjo" walk 17 minutes JR南武線「武蔵新城」歩17分 |
| 2 Station 2 wayside or more possible good location. 2-story with garden. Enhancement of equipment and specifications content. It also well-equipped environment in the development subdivision in. 2駅2沿線以上可能な好立地。庭付2階建て。充実の設備と仕様内容。開発分譲地内にて環境も整っております。 |
| Over Recommended point-to ● 2 station 2 wayside or more available ● good facilities and specification content ● per yang of enhancement ● surrounding environment favorable ・ In the case of our alliance mortgage available, The entire period up to -1.7 preferential treatment ・ The application, Conditions, there is a review ・ Weekdays, Saturday and Sunday, will guide you regardless of holiday ・ It can come to pick you up in the car ーオススメポイントー●2駅2沿線以上利用可能●充実の設備と仕様内容●陽当たり良好●周辺環境良好・弊社の提携住宅ローン利用の場合、全期間最大-1.7優遇・適用には、条件,審査がございます・平日,土日,祝日問わずご案内致します・車でお迎えに伺います |
Features pickup 特徴ピックアップ | | Corresponding to the flat-35S / 2 along the line more accessible / Fiscal year Available / Super close / Facing south / System kitchen / Bathroom Dryer / Yang per good / All room storage / Flat to the station / A quiet residential area / LDK15 tatami mats or more / Corner lot / Japanese-style room / Shaping land / garden / Washbasin with shower / Face-to-face kitchen / Security enhancement / Barrier-free / Toilet 2 places / Natural materials / Bathroom 1 tsubo or more / 2-story / South balcony / Otobasu / Warm water washing toilet seat / Underfloor Storage / The window in the bathroom / TV monitor interphone / Ventilation good / Walk-in closet / City gas / All rooms are two-sided lighting / Maintained sidewalk / Attic storage フラット35Sに対応 /2沿線以上利用可 /年度内入居可 /スーパーが近い /南向き /システムキッチン /浴室乾燥機 /陽当り良好 /全居室収納 /駅まで平坦 /閑静な住宅地 /LDK15畳以上 /角地 /和室 /整形地 /庭 /シャワー付洗面台 /対面式キッチン /セキュリティ充実 /バリアフリー /トイレ2ヶ所 /自然素材 /浴室1坪以上 /2階建 /南面バルコニー /オートバス /温水洗浄便座 /床下収納 /浴室に窓 /TVモニタ付インターホン /通風良好 /ウォークインクロゼット /都市ガス /全室2面採光 /整備された歩道 /屋根裏収納 | Price 価格 | | 43,800,000 yen ~ 46,800,000 yen 4380万円 ~ 4680万円 | Floor plan 間取り | | 4LDK 4LDK | Units sold 販売戸数 | | 21 units 21戸 | Total units 総戸数 | | 21 units 21戸 | Land area 土地面積 | | 103.76 sq m ~ 113.46 sq m 103.76m2 ~ 113.46m2 | Building area 建物面積 | | 100.72 sq m ~ 119.72 sq m 100.72m2 ~ 119.72m2 | Completion date 完成時期(築年月) | | January 2014 will 2014年1月予定 | Address 住所 | | Kawasaki City, Kanagawa Prefecture Takatsu-ku, Shibokuchi 神奈川県川崎市高津区子母口 | Traffic 交通 | | JR Nambu Line "Musashi-Shinjo" walk 17 minutes JR Nambu Line "Musashi Nakahara" walk 20 minutes Denentoshi Tokyu "Mizonokuchi" 12 minutes thousand years walk 1 minute bus JR南武線「武蔵新城」歩17分 JR南武線「武蔵中原」歩20分 東急田園都市線「溝の口」バス12分千年歩1分
| Related links 関連リンク | | [Related Sites of this company] 【この会社の関連サイト】 | Person in charge 担当者より | | Rep Kimura 担当者木村 | Contact お問い合せ先 | | TEL: 0800-603-7122 [Toll free] mobile phone ・ Also available from PHS Caller ID is not notified Please contact the "saw SUUMO (Sumo)" If it does not lead, If the real estate company TEL:0800-603-7122【通話料無料】携帯電話・PHSからもご利用いただけます 発信者番号は通知されません 「SUUMO(スーモ)を見た」と問い合わせください つながらない方、不動産会社の方は
| Most price range 最多価格帯 | | 45 million yen ・ 44 million yen (each 6 units) 4500万円台・4400万円台(各6戸) | Building coverage, floor area ratio 建ぺい率・容積率 | | Kenpei rate: 50%, Volume ratio: 100% 建ペい率:50%、容積率:100% | Time residents 入居時期 | | February 2014 schedule 2014年2月予定 | Land of the right form 土地の権利形態 | | Ownership 所有権 | Use district 用途地域 | | One low-rise 1種低層 | Overview and notices その他概要・特記事項 | | Contact: Kimura, Building confirmation number: 00688 担当者:木村、建築確認番号:00688 | Company profile 会社概要 | | <Mediation> Minister of Land, Infrastructure and Transport (2) the first 007,684 No. + HOUSE Yokohama Office (Ltd.) propoxycarbonyl life Yubinbango230-0062 Kanagawa Prefecture Tsurumi-ku, Yokohama City Toyooka-cho, 8-24 first floor <仲介>国土交通大臣(2)第007684号+HOUSE横浜Office(株)プロポライフ〒230-0062 神奈川県横浜市鶴見区豊岡町8-24 1階 |
Rendering (appearance)完成予想図(外観)  Same construction company construction cases
同施工会社施工例
Same specifications photos (living)同仕様写真(リビング)  Same construction company construction cases
同施工会社施工例
Same specifications photo (kitchen)同仕様写真(キッチン)  Same construction company construction cases
同施工会社施工例
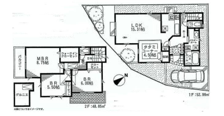
Floor plan間取り図  (1 Building), Price 46,800,000 yen, 4LDK, Land area 112.15 sq m , Building area 119.72 sq m
(1号棟)、価格4680万円、4LDK、土地面積112.15m2、建物面積119.72m2
Same specifications photo (bathroom)同仕様写真(浴室)  Same construction company construction cases
同施工会社施工例
 Other
その他
Floor plan間取り図  (Building 2), Price 46,800,000 yen, 4LDK, Land area 105.54 sq m , Building area 102.68 sq m
(2号棟)、価格4680万円、4LDK、土地面積105.54m2、建物面積102.68m2
 (3 Building), Price 46,800,000 yen, 4LDK, Land area 105.63 sq m , Building area 105.68 sq m
(3号棟)、価格4680万円、4LDK、土地面積105.63m2、建物面積105.68m2
 (16 Building), Price 45,800,000 yen, 4LDK, Land area 105.9 sq m , Building area 102.65 sq m
(16号棟)、価格4580万円、4LDK、土地面積105.9m2、建物面積102.65m2
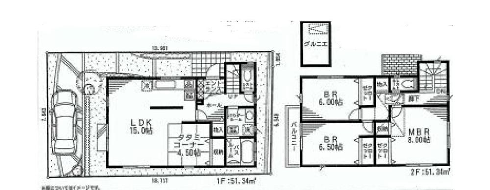
 (17 Building), Price 43,800,000 yen, 4LDK, Land area 113.46 sq m , Building area 101.34 sq m
(17号棟)、価格4380万円、4LDK、土地面積113.46m2、建物面積101.34m2
 (18 Building), Price 45,800,000 yen, 4LDK, Land area 107.78 sq m , Building area 101.43 sq m
(18号棟)、価格4580万円、4LDK、土地面積107.78m2、建物面積101.43m2
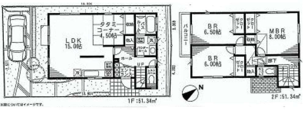
 (19 Building), Price 43,800,000 yen, 4LDK, Land area 103.76 sq m , Building area 101.02 sq m
(19号棟)、価格4380万円、4LDK、土地面積103.76m2、建物面積101.02m2
 (20 Building), Price 44,800,000 yen, 4LDK, Land area 104.89 sq m , Building area 100.72 sq m
(20号棟)、価格4480万円、4LDK、土地面積104.89m2、建物面積100.72m2
 (21 Building), Price 44,800,000 yen, 4LDK, Land area 105.46 sq m , Building area 101.28 sq m
(21号棟)、価格4480万円、4LDK、土地面積105.46m2、建物面積101.28m2
Location
|