New Homes » Kanto » Kanagawa Prefecture » Kawasaki City Tama-ku
 
| | Kawasaki City, Kanagawa Prefecture Tama-ku, 神奈川県川崎市多摩区 |
| Denentoshi Tokyu "Mizonokuchi" 25 minutes Sugo 3-chome, walk 6 minutes by bus 東急田園都市線「溝の口」バス25分菅生3丁目歩6分 |
| In a large town, Facing south, LDK20 tatami mats or more, Yang per good, Shaping land, Floor heating, Pre-ground survey, 2 along the line more accessible, Fiscal year Available, It is close to the city, System kitchen, Bathroom Dryer, All room storage 大型タウン内、南向き、LDK20畳以上、陽当り良好、整形地、床暖房、地盤調査済、2沿線以上利用可、年度内入居可、市街地が近い、システムキッチン、浴室乾燥機、全居室収納 |
| In a leafy residential area is a large condominium start of all 46 compartments! There is also a park on site, It has been formed as one of the "town"! Construction is after-sales service, Proven Sakura construction of community in the building. This listing is not possible to pass through if the now house hunting! It is such a property. 緑豊かな住宅街に全46区画の大型分譲開始です!敷地内に公園もあり、一つの「街」として形成されています!施工はアフターサービス、建物に定評のある地域密着のさくら建設です。今家探しをするならこの物件は素通り出来ません!そんな物件です。 |
Features pickup 特徴ピックアップ | | Pre-ground survey / 2 along the line more accessible / LDK20 tatami mats or more / Fiscal year Available / It is close to golf course / It is close to the city / Facing south / System kitchen / Bathroom Dryer / Yang per good / All room storage / Siemens south road / A quiet residential area / Around traffic fewer / Corner lot / Japanese-style room / Shaping land / Washbasin with shower / Face-to-face kitchen / Security enhancement / Barrier-free / Toilet 2 places / Bathroom 1 tsubo or more / 2-story / South balcony / Double-glazing / Zenshitsuminami direction / Warm water washing toilet seat / loft / Nantei / Underfloor Storage / The window in the bathroom / Atrium / TV monitor interphone / Leafy residential area / Mu front building / Ventilation good / All living room flooring / Good view / Dish washing dryer / Walk-in closet / Or more ceiling height 2.5m / Water filter / Living stairs / City gas / All rooms are two-sided lighting / Located on a hill / Attic storage / Floor heating / Development subdivision in 地盤調査済 /2沿線以上利用可 /LDK20畳以上 /年度内入居可 /ゴルフ場が近い /市街地が近い /南向き /システムキッチン /浴室乾燥機 /陽当り良好 /全居室収納 /南側道路面す /閑静な住宅地 /周辺交通量少なめ /角地 /和室 /整形地 /シャワー付洗面台 /対面式キッチン /セキュリティ充実 /バリアフリー /トイレ2ヶ所 /浴室1坪以上 /2階建 /南面バルコニー /複層ガラス /全室南向き /温水洗浄便座 /ロフト /南庭 /床下収納 /浴室に窓 /吹抜け /TVモニタ付インターホン /緑豊かな住宅地 /前面棟無 /通風良好 /全居室フローリング /眺望良好 /食器洗乾燥機 /ウォークインクロゼット /天井高2.5m以上 /浄水器 /リビング階段 /都市ガス /全室2面採光 /高台に立地 /屋根裏収納 /床暖房 /開発分譲地内 | Price 価格 | | 32,800,000 yen ~ 37,300,000 yen 3280万円 ~ 3730万円 | Floor plan 間取り | | 3LDK + S (storeroom) ~ 4LDK + S (storeroom) 3LDK+S(納戸) ~ 4LDK+S(納戸) | Units sold 販売戸数 | | 7 units 7戸 | Total units 総戸数 | | 46 units 46戸 | Land area 土地面積 | | 125.28 sq m ~ 136.25 sq m (37.89 tsubo ~ 41.21 tsubo) (measured) 125.28m2 ~ 136.25m2(37.89坪 ~ 41.21坪)(実測) | Building area 建物面積 | | 100.19 sq m ~ 121.15 sq m (30.30 tsubo ~ 36.64 tsubo) (measured) 100.19m2 ~ 121.15m2(30.30坪 ~ 36.64坪)(実測) | Completion date 完成時期(築年月) | | 2013 end of June 2013年6月末 | Address 住所 | | Kawasaki City, Kanagawa Prefecture Tama-ku, Nagasawa 2-9 神奈川県川崎市多摩区長沢2-9 | Traffic 交通 | | Denentoshi Tokyu "Mizonokuchi" 25 minutes Sugo 3-chome, walk 6 minutes by bus Denentoshi Tokyu "Miyamaedaira" bus 18 minutes Sugo 3-chome, walk 6 minutes Odakyu line "Mukogaoka Amusement" bus 15 Bunhijiri Marianna University School of Medicine walk 4 minutes 東急田園都市線「溝の口」バス25分菅生3丁目歩6分 東急田園都市線「宮前平」バス18分菅生3丁目歩6分 小田急線「向ヶ丘遊園」バス15分聖マリアンナ医大歩4分
| Related links 関連リンク | | [Related Sites of this company] 【この会社の関連サイト】 | Person in charge 担当者より | | Rep Sugimoto SoKazu Age: 30 Daigyokai Experience: 3 years daughter is now 1 year old and 4 months born. It is still waddle, You can now also walk. The smile of his wife and daughter, It is my driving force. For wife! For daughter! For our customers! I will do my best. 担当者杉本 宗和年齢:30代業界経験:3年愛娘が生まれ1歳と4ヶ月になりました。まだヨチヨチですが、歩くこともできるようになりました。妻や愛娘の笑顔が、私の原動力ですね。妻のため!愛娘のため!お客様のため!一生懸命頑張ります。 | Contact お問い合せ先 | | TEL: 0800-603-0995 [Toll free] mobile phone ・ Also available from PHS Caller ID is not notified Please contact the "saw SUUMO (Sumo)" If it does not lead, If the real estate company TEL:0800-603-0995【通話料無料】携帯電話・PHSからもご利用いただけます 発信者番号は通知されません 「SUUMO(スーモ)を見た」と問い合わせください つながらない方、不動産会社の方は
| Most price range 最多価格帯 | | 35 million yen 35 million yen (4 units) 3500万円台3500万円台(4戸) | Building coverage, floor area ratio 建ぺい率・容積率 | | Kenpei rate: 40%, Volume ratio: 80% 建ペい率:40%、容積率:80% | Time residents 入居時期 | | Consultation 相談 | Land of the right form 土地の権利形態 | | Ownership 所有権 | Structure and method of construction 構造・工法 | | Wooden 2-story (framing method) 木造2階建(軸組工法) | Construction 施工 | | Co., Ltd. Sakura construction 株式会社さくら建設 | Use district 用途地域 | | One low-rise 1種低層 | Land category 地目 | | Residential land 宅地 | Other limitations その他制限事項 | | Regulations have by the Landscape Act, Residential land development construction regulation area, Site area minimum Yes, Shade limit Yes 景観法による規制有、宅地造成工事規制区域、敷地面積最低限度有、日影制限有 | Overview and notices その他概要・特記事項 | | Contact: Sugimoto SoKazu, Building confirmation number: No. H24 confirmation architecture KBI05830 other 担当者:杉本 宗和、建築確認番号:第H24確認建築KBI05830号他 | Company profile 会社概要 | | <Mediation> Governor of Kanagawa Prefecture (8) No. 014138 (the Company), Kanagawa Prefecture Building Lots and Buildings Transaction Business Association (Corporation) metropolitan area real estate Fair Trade Council member Meiji Group Co., Ltd., Meiji real estate Yubinbango213-0015 Kawasaki City, Kanagawa Prefecture Takatsu-ku, Kajigaya 3-2-1 <仲介>神奈川県知事(8)第014138号(社)神奈川県宅地建物取引業協会会員 (公社)首都圏不動産公正取引協議会加盟明治グループ(株)明治不動産〒213-0015 神奈川県川崎市高津区梶ヶ谷3-2-1 |
Local appearance photo現地外観写真  21 Building southwest corner lot LDK18.1 Pledge Second floor balcony is a mansion that can enter and exit than 2 rooms.
21号棟南西角地 LDK18.1帖 2階バルコニーは2室より出入りが可能な邸宅です。
Livingリビング  Model building "22 Building" room (June 2013) Shooting
モデル棟「22号棟」室内(2013年6月)撮影
Otherその他  Providing park in subdivision (June 2013) Shooting
分譲地内の提供公園(2013年6月)撮影
Floor plan間取り図  (31 Building), Price 35,800,000 yen, 3LDK, Land area 125.63 sq m , Building area 100.19 sq m
(31号棟)、価格3580万円、3LDK、土地面積125.63m2、建物面積100.19m2
Local appearance photo現地外観写真  View from the park offer ・ Local (June 2013) Shooting
提供公園からの眺望・現地(2013年6月)撮影
 Good development road ventilation of width 6m, New skyline views and spacious is also well open "25 Building"
幅員6mの開発道路風通しの良い、ゆったりとした新しい街並み眺めも良く開放的です「25号棟」
Bathroom浴室  Model building "22 Building" room (June 2013) Shooting
モデル棟「22号棟」室内(2013年6月)撮影
Kitchenキッチン  Model building "22 Building" room (June 2013) Shooting
モデル棟「22号棟」室内(2013年6月)撮影
Non-living roomリビング以外の居室  "22 Building room" room (June 2013) Shooting
「22号棟居室」室内(2013年6月)撮影
Entrance玄関  Model building "22 Building" site (June 2013) Shooting
モデル棟「22号棟」現地(2013年6月)撮影
Local photos, including front road前面道路含む現地写真  Local (June 2013) Shooting
現地(2013年6月)撮影
Supermarketスーパー  There is a supermarket or the like to Bengabenga Nagasawa good area of 830m convenience to the store.
ベンガベンガ長沢店まで830m 利便性の良いエリアにスーパー等がございます。
Other introspectionその他内観  Model building "22 Building dining" room (June 2013) Shooting
モデル棟「22号棟ダイニング」室内(2013年6月)撮影
View photos from the dwelling unit住戸からの眺望写真  View from the local "22 Building (June 2013) Shooting
現地からの眺望「22号棟(2013年6月)撮影
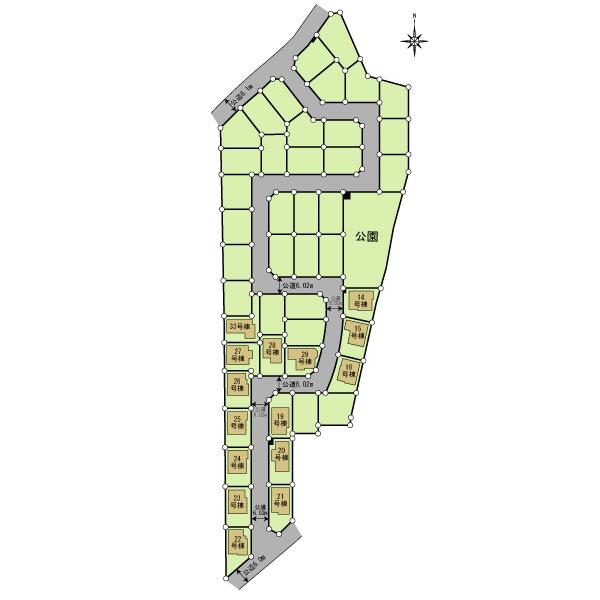
The entire compartment Figure全体区画図  All 46 compartments, Also entered glad the park is in the center. Local is the environment better in a quiet residential area
全46区画、中央には嬉しい公園も入ります。現地は閑静な住宅街で環境良好です
Local appearance photo現地外観写真  15 Building
15号棟
Same specifications photos (living)同仕様写真(リビング)  ( 25 Building) same specification
( 25号棟)同仕様
Primary school小学校  Minamiikuta is wide elementary school of 1200m schoolyard to elementary school.
南生田小学校まで1200m 校庭の広い小学校です。
Local appearance photo現地外観写真  "Permanent quality" development sale all 46 buildings of cherry construction! Phase 1: 15 buildings, Sales start
「永住クオリティ」さくら建設の開発分譲全46棟!第1期:15棟、販売開始
Location
|