New Homes » Kanto » Kanagawa Prefecture » Kawasaki City Tama-ku
 
| | Kawasaki City, Kanagawa Prefecture Tama-ku, 神奈川県川崎市多摩区 |
| JR Nambu Line "lottery" walk 13 minutes JR南武線「久地」歩13分 |
Features pickup 特徴ピックアップ | | System kitchen / Bathroom Dryer / Yang per good / All room storage / LDK15 tatami mats or more / Mist sauna / Washbasin with shower / Face-to-face kitchen / Security enhancement / Toilet 2 places / Bathroom 1 tsubo or more / Double-glazing / Warm water washing toilet seat / TV with bathroom / Underfloor Storage / The window in the bathroom / TV monitor interphone / All living room flooring / Dish washing dryer / Water filter / Living stairs / All rooms are two-sided lighting / Attic storage システムキッチン /浴室乾燥機 /陽当り良好 /全居室収納 /LDK15畳以上 /ミストサウナ /シャワー付洗面台 /対面式キッチン /セキュリティ充実 /トイレ2ヶ所 /浴室1坪以上 /複層ガラス /温水洗浄便座 /TV付浴室 /床下収納 /浴室に窓 /TVモニタ付インターホン /全居室フローリング /食器洗乾燥機 /浄水器 /リビング階段 /全室2面採光 /屋根裏収納 | Price 価格 | | 31,800,000 yen 3180万円 | Floor plan 間取り | | 1LDK + 2S (storeroom) 1LDK+2S(納戸) | Units sold 販売戸数 | | 1 units 1戸 | Total units 総戸数 | | 2 units 2戸 | Land area 土地面積 | | 84.53 sq m 84.53m2 | Building area 建物面積 | | 87.76 sq m 87.76m2 | Driveway burden-road 私道負担・道路 | | 4m width 4m幅 | Completion date 完成時期(築年月) | | 2013 end of September 2013年9月末 | Address 住所 | | Nagao, Kawasaki City, Kanagawa Prefecture Tama Ward 7 神奈川県川崎市多摩区長尾7 | Traffic 交通 | | JR Nambu Line "lottery" walk 13 minutes JR南武線「久地」歩13分
| Related links 関連リンク | | [Related Sites of this company] 【この会社の関連サイト】 | Contact お問い合せ先 | | TEL: 0800-603-1295 [Toll free] mobile phone ・ Also available from PHS Caller ID is not notified Please contact the "saw SUUMO (Sumo)" If it does not lead, If the real estate company TEL:0800-603-1295【通話料無料】携帯電話・PHSからもご利用いただけます 発信者番号は通知されません 「SUUMO(スーモ)を見た」と問い合わせください つながらない方、不動産会社の方は
| Building coverage, floor area ratio 建ぺい率・容積率 | | Kenpei rate: 60%, Volume ratio: 200% 建ペい率:60%、容積率:200% | Time residents 入居時期 | | Consultation 相談 | Land of the right form 土地の権利形態 | | Ownership 所有権 | Structure and method of construction 構造・工法 | | Wooden 2-story (framing method) 木造2階建(軸組工法) | Construction 施工 | | Ltd. Ikamu design / Construction / Sale 株式会社イーカム 設計/施工/販売 | Use district 用途地域 | | One dwelling 1種住居 | Land category 地目 | | Residential land 宅地 | Overview and notices その他概要・特記事項 | | Building confirmation number: No. H24 confirmation architecture KBI08541 other 建築確認番号:第H24確認建築KBI08541号他 | Company profile 会社概要 | | <Seller> Kanagawa Governor (2) No. 024804 (the company), Kanagawa Prefecture Building Lots and Buildings Transaction Business Association (Corporation) metropolitan area real estate Fair Trade Council member (Ltd.) Ikamu Yubinbango252-0143 Sagamihara City, Kanagawa Prefecture Midori-ku Hashimoto 3-11-8 <売主>神奈川県知事(2)第024804号(社)神奈川県宅地建物取引業協会会員 (公社)首都圏不動産公正取引協議会加盟(株)イーカム〒252-0143 神奈川県相模原市緑区橋本3-11-8 |
Local appearance photo現地外観写真  Roof Hiroshi tiled Outer wall Ikamu original ripple finish
屋根洋瓦葺き 外壁イーカムオリジナルリップル仕上げ
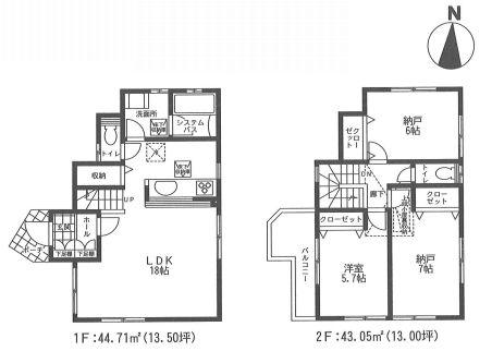
Floor plan間取り図  (Building 2), Price 31,800,000 yen, 1LDK+2S, Land area 84.53 sq m , Building area 87.76 sq m
(2号棟)、価格3180万円、1LDK+2S、土地面積84.53m2、建物面積87.76m2
Livingリビング  Same specifications living Joinery door interior high door specification
同仕様リビング 建具扉インテリアハイドア仕様
Kitchenキッチン  Sliding door soft closing, Artificial marble sink, Dish dryer
引戸ソフトクロージング、人造大理石シンク、食洗乾燥機
Bathroom浴室  Next-generation energy-saving standards unit bus, Mist sauna, 12 inches large TV, Warm bath, Heating function with dryer (ventilator)
次世代省エネ基準ユニットバス、ミストサウナ、12インチ大型TV、保温浴槽、暖房機能付乾燥機(換気扇)
Non-living roomリビング以外の居室  Same specifications room
同仕様居室
Receipt収納  Ceiling height shoe closet
天井高シューズクロゼット
Supermarketスーパー  1042m to the top lottery shop
トップ久地店まで1042m
Station駅  JR Nambu Line lottery 1000m to the Train Station
JR南武線久地駅まで1000m
Kindergarten ・ Nursery幼稚園・保育園  1497m until the ball kindergarten
玉幼稚園まで1497m
 Lark to nursery school 766m
ひばり保育園まで766m
Supermarketスーパー  Bengabenga until the lottery shop 1167m
ベンガベンガ久地店まで1167m
Other Equipmentその他設備  Ikamu Hashimoto showrooms
イーカム橋本ショールーム
Location
|