New Homes » Kanto » Kanagawa Prefecture » Kawasaki City Tama-ku
 
| | Kawasaki City, Kanagawa Prefecture Tama-ku, 神奈川県川崎市多摩区 |
| Odakyu line "Ikuta" walk 22 minutes 小田急線「生田」歩22分 |
| ■ November 1, Image update ■ It has been one after another building completed! If you would like the sun hit good corner lot, please contact us as soon as possible (^ ▽ ^) / ■11月1日 画像更新■続々と建物完成しています!陽当たり良好角地をご希望の方はお早めにご連絡下さい(^▽^)/ |
| ----- Contact To To Because Po Lee Down To ----- ■ We propose the best payment plan to customers ■ ● Rooftops of large-scale development areas unique is to complete <Payment example> ● Eco-housing of the solar panels installed! There if subsidy now Down payment: $ 0 Borrowing: 3,280 yen ● Colorful plan from orthodox 4LKD to LDK22 quires more than Mortgage: monthly 90,691 yen (bonus pay $ 0.00) ● Trouble 24-hour telephone support, etc., Also Naruken enforcement of peace of mind after buying ※ 420 months ・ In the case of interest rate 0.875% (separately required expenses) ――――― お す す め ポ イ ン ト ――――― ■お客様に最適の支払いプランをご提案します■ ● 大型開発地ならではの街並みが完成します 〈支払例〉 ● ソーラーパネル搭載のエコ住宅!今なら補助金有り 頭金:0円 借入:3,280万円 ● オーソドックスな4LKDからLDK22帖超まで多彩なプラン 住宅ローン:月々90,691円(ボーナス払い0円) ● トラブル24時間電話対応等、買った後も安心の成建施行 ※420カ月・金利0.875%の場合(別途要諸費用) |
Features pickup 特徴ピックアップ | | Measures to conserve energy / Solar power system / 2 along the line more accessible / System kitchen / Bathroom Dryer / Yang per good / All room storage / A quiet residential area / LDK15 tatami mats or more / Corner lot / Shaping land / Washbasin with shower / Face-to-face kitchen / Toilet 2 places / Bathroom 1 tsubo or more / 2-story / Warm water washing toilet seat / Underfloor Storage / Leafy residential area / Dish washing dryer / Walk-in closet / Water filter / City gas / Flat terrain / Attic storage / Floor heating / Development subdivision in 省エネルギー対策 /太陽光発電システム /2沿線以上利用可 /システムキッチン /浴室乾燥機 /陽当り良好 /全居室収納 /閑静な住宅地 /LDK15畳以上 /角地 /整形地 /シャワー付洗面台 /対面式キッチン /トイレ2ヶ所 /浴室1坪以上 /2階建 /温水洗浄便座 /床下収納 /緑豊かな住宅地 /食器洗乾燥機 /ウォークインクロゼット /浄水器 /都市ガス /平坦地 /屋根裏収納 /床暖房 /開発分譲地内 | Price 価格 | | 32,800,000 yen ~ 38,800,000 yen 3280万円 ~ 3880万円 | Floor plan 間取り | | 3LDK ~ 4LDK 3LDK ~ 4LDK | Units sold 販売戸数 | | 22 houses 22戸 | Total units 総戸数 | | 27 units 27戸 | Land area 土地面積 | | 100.26 sq m ~ 124.96 sq m (30.32 tsubo ~ 37.80 tsubo) (Registration) 100.26m2 ~ 124.96m2(30.32坪 ~ 37.80坪)(登記) | Building area 建物面積 | | 100.61 sq m ~ 103.71 sq m (30.43 tsubo ~ 31.37 square meters) 100.61m2 ~ 103.71m2(30.43坪 ~ 31.37坪) | Completion date 完成時期(築年月) | | June 2013 2013年6月 | Address 住所 | | Kawasaki City, Kanagawa Prefecture Tama-ku, Nagasawa 3 神奈川県川崎市多摩区長沢3 | Traffic 交通 | | Odakyu line "Ikuta" walk 22 minutes Denentoshi Tokyu "Mizonokuchi" 25 minutes Higashinagasawa step 5 minutes by bus Denentoshi Tokyu "Miyamaedaira" bus 18 minutes Higashinagasawa step 5 minutes 小田急線「生田」歩22分 東急田園都市線「溝の口」バス25分東長沢歩5分 東急田園都市線「宮前平」バス18分東長沢歩5分
| Related links 関連リンク | | [Related Sites of this company] 【この会社の関連サイト】 | Person in charge 担当者より | | Rep Takahashi Atsushi Age: 30 Daigyokai experience: without regard to eight years area and budget, Please let us know what you wish. Standing in the customer's perspective, Please let me help you in looking for easy fun and My Home to understand! Also because it is welcome in the question of the terms First, I do not know, Please ask anything! 担当者高橋 篤史年齢:30代業界経験:8年エリアやご予算にこだわらず、ご希望をお聞かせ下さい。お客様の視点に立ち、分かり易く楽しくマイホーム探しのお手伝いをさせて頂きます!まずは分からない用語のご質問でも大歓迎ですので、何でもお尋ね下さい! | Contact お問い合せ先 | | TEL: 0800-603-8879 [Toll free] mobile phone ・ Also available from PHS Caller ID is not notified Please contact the "saw SUUMO (Sumo)" If it does not lead, If the real estate company TEL:0800-603-8879【通話料無料】携帯電話・PHSからもご利用いただけます 発信者番号は通知されません 「SUUMO(スーモ)を見た」と問い合わせください つながらない方、不動産会社の方は
| Most price range 最多価格帯 | | 36 million yen (5 units) 3600万円台(5戸) | Time residents 入居時期 | | Immediate available 即入居可 | Land of the right form 土地の権利形態 | | Ownership 所有権 | Construction 施工 | | CO., LTD Naruken 株式会社 成建 | Use district 用途地域 | | One middle and high 1種中高 | Overview and notices その他概要・特記事項 | | Contact: Takahashi Atsushi 担当者:高橋 篤史 | Company profile 会社概要 | | <Mediation> Kanagawa Governor (2) the first 026,933 No. Meiji Group Co., Ltd. Miyazaki Japan build Yubinbango216-0033 Kawasaki City, Kanagawa Prefecture Miyamae-ku, 2-6-11 <仲介>神奈川県知事(2)第026933号明治グループ(株)日本ビルド〒216-0033 神奈川県川崎市宮前区宮崎2-6-11 |
Local appearance photo現地外観写真 ![Local appearance photo. ■ We also immediately corresponding weekday tours ■ Thank building completed already preview possible building ■ Housing loans fund consultation also please feel free to ■ Tour reservation do not hesitate [0800-603-8879] Until](/images/kanagawa/kawasakishitama/628a570072.jpg) ■ We also immediately corresponding weekday tours ■ Thank building completed already preview possible building ■ Housing loans fund consultation also please feel free to ■ Tour reservation do not hesitate [0800-603-8879] Until
■平日の見学も即対応致します■建物完成済内見可能棟ございます■住宅ローン等資金相談もお気軽にどうぞ■見学予約はお気軽に【0800-603-8879】まで
Livingリビング  LDK20 Pledge than to that tatami corner, Also it offers a lot of compartments to ensure the size of the room
LDK20帖超に畳コーナーという、ゆとりの広さを確保した区画も沢山ございます
Kitchenキッチン  Dishwasher in the kitchen ・ Water filter ・ Cupboard is equipped
キッチンには食洗器・浄水器・カップボード完備です
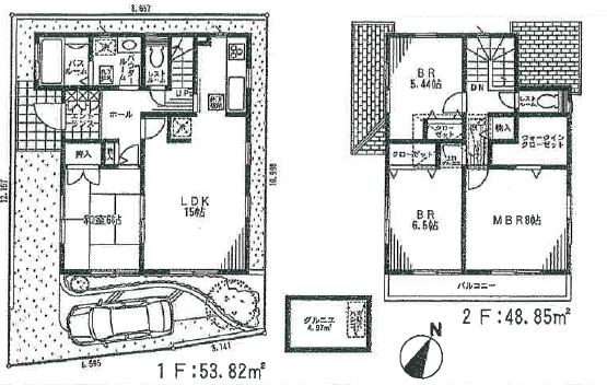
Floor plan間取り図  (24 Building), Price 35,800,000 yen, 4LDK, Land area 100.52 sq m , Building area 102.67 sq m
(24号棟)、価格3580万円、4LDK、土地面積100.52m2、建物面積102.67m2
Livingリビング  Little is tatami corner likely to come in handy in or to take a nap the child
ちょっとお子様を昼寝させたりするには重宝しそうな畳コーナーです
 Because there a few pattern also joinery and flooring, Look for a combination of your choice!
建具やフローリングも数パターンございますので、お好みの組み合わせを探して下さい!
Local appearance photo現地外観写真  In appearance also come in many years tired type, Also it has been changed slightly shade and next to each other
外観も長年飽きの来ないタイプで、隣同士とは若干色合いも変えてあります
Kitchenキッチン  All building is better per yang
陽当たりも全棟良好です
Local photos, including front road前面道路含む現地写真  It has been one after another building completed
続々と建物完成してきております
Otherその他  Cho and storages such as, This commitment construction
ちょとした収納など、こだわりの施工です
 Intercom with color monitor, It is equipped with floor heating in the LD
カラーモニター付インターホン、LDには床暖房完備です
Toiletトイレ  Toilets are equipped with washing machines in two locations provided
トイレは2箇所供に洗浄機付きです
Wash basin, toilet洗面台・洗面所  Wash basin, Water around the kitchen is easy to clean with marble tile
洗面台、キッチンの水廻りは大理石調タイルでお手入れも楽々です
Otherその他  Eco-carat has been stretched as an accent to such as the entrance and living room. Moisture absorption ・ There is also a deodorant effect!
玄関やリビングなどにアクセントとしてエコカラットが張られています。吸湿・消臭効果もあり!
Station駅  Until Ikuta Station to 1800m Ikuta Station it is also possible to walk
生田駅まで1800m 生田駅までは歩く事も可能です
Rendering (appearance)完成予想図(外観)  Popular corner lot is as soon as possible
人気の角地はお早めに
The entire compartment Figure全体区画図  South road, Corner lot, Thank compartment large number of good per yang
南道路、角地、陽当たり良好の区画多数ございます
Otherその他  Such as high-speed steel the top light is on the north side of the room, It becomes a structure that does not feel the darkness
北側の居室にはトップライトを配すなど、暗さを感じさせない造りになっております
Bathroom浴室  Bathroom is also window, Bright and spacious 1 pyeong type
浴室は窓もあり、明るくゆったり1坪タイプです
Non-living roomリビング以外の居室  There is also attic storage, Storage capacity is also excellent
小屋裏収納も有り、収納力も抜群です
Local photos, including front road前面道路含む現地写真  It is to complete all building soon, A beautiful city will be completed
間もなく全棟が完成して、綺麗な街が完成いたします
Location
|