New Homes » Kanto » Kanagawa Prefecture » Kawasaki City Tama-ku
 
| | Kawasaki City, Kanagawa Prefecture Tama-ku, 神奈川県川崎市多摩区 |
| Odakyu line "Ikuta" 10 minutes west Ayumi Nagasawa 2 minutes by bus 小田急線「生田」バス10分西長沢歩2分 |
| ■ All of Naruken construction electrification eco housing & peace of mind enhance after-sales service ■ Care less tea is important private car of dad on a rainy day because it is underground garage! ■ A room of the family to spend in the garden moments ■ 成建施工のオール電化エコ住宅&安心充実のアフターサービス■ パパの大事なマイカーは地下車庫だから雨の日もへっちゃら!■ 庭で過ごす家族とのゆとりあるヒトトキ |
| ~ Forest Town Nagasawa 4-chome ~ Price 34,800,000 yen ● flat 35S to the corresponding ● ground survey completed ● year Available ● 2 wayside more accessible is ● close city near Super ● ● south-facing ● system kitchen ● bathroom dryer ● per yang good ● all room storage ● ● face-to-face kitchen ● barrier-free ● 2 toilets places ● Bathroom 1 tsubo or more ● 2-story ● multi-layer glass ● Zenshitsuminami facing ● warm water cleaning toilet seat ● Nantei ● Underfloor Storage ● window in the bathroom ● front building No ● ventilation good ● tableware washing dryer ● Walk-in ~ フォレストタウン長沢4丁目 ~ 価格3480万円●フラット35Sに対応●地盤調査済●年内入居可●2沿線以上利用可●スーパーが近い●市街地が近い●南向き●システムキッチン●浴室乾燥機●陽当り良好●全居室収納●閑静な住宅地●LDK15帖以上●周辺交通量少なめ●和室●田園風景●シャワー付洗面台 ●対面式キッチン●バリアフリー ●トイレ2ヶ所●浴室1坪以上●2階建●複層ガラス●全室南向き●温水洗浄便座●南庭●床下収納●浴室に窓●前面棟無●通風良好●食器洗乾燥機●ウォークインクロゼット●浄水器●オール電化●都市ガス●全室2面採光●隣家との間隔が大きい●平坦地●屋根裏収納●床暖房●開発分譲地内 |
Features pickup 特徴ピックアップ | | Corresponding to the flat-35S / Pre-ground survey / Year Available / 2 along the line more accessible / Super close / It is close to the city / Facing south / System kitchen / Bathroom Dryer / Yang per good / All room storage / A quiet residential area / LDK15 tatami mats or more / Around traffic fewer / Japanese-style room / Idyll / Washbasin with shower / Face-to-face kitchen / Barrier-free / Toilet 2 places / Bathroom 1 tsubo or more / 2-story / Double-glazing / Zenshitsuminami direction / Warm water washing toilet seat / Nantei / Underfloor Storage / The window in the bathroom / Mu front building / Ventilation good / Dish washing dryer / Walk-in closet / Water filter / All-electric / City gas / All rooms are two-sided lighting / A large gap between the neighboring house / Flat terrain / Attic storage / Floor heating / Development subdivision in / Movable partition フラット35Sに対応 /地盤調査済 /年内入居可 /2沿線以上利用可 /スーパーが近い /市街地が近い /南向き /システムキッチン /浴室乾燥機 /陽当り良好 /全居室収納 /閑静な住宅地 /LDK15畳以上 /周辺交通量少なめ /和室 /田園風景 /シャワー付洗面台 /対面式キッチン /バリアフリー /トイレ2ヶ所 /浴室1坪以上 /2階建 /複層ガラス /全室南向き /温水洗浄便座 /南庭 /床下収納 /浴室に窓 /前面棟無 /通風良好 /食器洗乾燥機 /ウォークインクロゼット /浄水器 /オール電化 /都市ガス /全室2面採光 /隣家との間隔が大きい /平坦地 /屋根裏収納 /床暖房 /開発分譲地内 /可動間仕切り | Event information イベント情報 | | ● also to other, Not published in Kawasaki City Property ・ Introduce plenty of new properties, including the ad not be the property ・ We are allowed to guidance! following, [Related Sites of this company] From ☆ Kawasaki new construction navi ☆ Click Please! In our customer area [Miyamae-ku,] ・ [Takatsu-ku] ・ [Tama-ku,] ・ [Aso-ku] of Commitment, 4 area! The point here ⇒ [Photo image] It is, [Maximum 21 points! ] ・ [Region's fastest] so [New public property] Introducing in! ! There are, Property not your know ・ Future of My home is found be? , If it is possible to peek, I hope. ● also free consultation of the mortgage! now, How much can be borrowed from the bank now? It is what the please consult! All employees, We would love ●他にも、川崎市の物件で未公開・広告不可の物件を含め沢山の新築物件をご紹介・ご案内をさせて頂いております!下記、【この会社の関連サイト】から ☆川崎新築ナビ☆をクリック下さい!当社の得意エリアで【宮前区】・【高津区】・【多摩区】・【麻生区】の こだわりの、4エリア!ここがポイント ⇒ 【写真画像】は、【最大21点!】・【地域最速】で【新規公開物件】をご紹介中!!そこには、あなたの知らない物件・未来のマイホームが見つかるかも?一度、覗いて頂ければ、幸いです。●住宅ローンの相談も無料!今、現在どれくらい銀行から借り入れできるのか?金利や月々の支払はいくらか? なんなりとご相談下さい!社員一同、心よりお待ちしています | Price 価格 | | 34,800,000 yen 3480万円 | Floor plan 間取り | | 4LDK 4LDK | Units sold 販売戸数 | | 4 units 4戸 | Total units 総戸数 | | 6 units 6戸 | Land area 土地面積 | | 126.62 sq m ~ 133.95 sq m (registration) 126.62m2 ~ 133.95m2(登記) | Building area 建物面積 | | 100.19 sq m ~ 101.44 sq m (registration) 100.19m2 ~ 101.44m2(登記) | Driveway burden-road 私道負担・道路 | | Road width: 4.5m, Asphaltic pavement There septic tank 道路幅:4.5m、アスファルト舗装 浄化槽あり | Completion date 完成時期(築年月) | | 2013 mid-October 2013年10月中旬 | Address 住所 | | Kawasaki City, Kanagawa Prefecture Tama-ku, Nagasawa 4 神奈川県川崎市多摩区長沢4 | Traffic 交通 | | Odakyu line "Ikuta" 10 minutes west Ayumi Nagasawa 2 minutes by bus Odakyu line "Shinyurigaoka" bus 17 minutes west Ayumi Nagasawa 2 minutes Denentoshi Tokyu "Miyamaedaira" 25 minutes west Ayumi Nagasawa 2 minutes by bus 小田急線「生田」バス10分西長沢歩2分 小田急線「新百合ヶ丘」バス17分西長沢歩2分 東急田園都市線「宮前平」バス25分西長沢歩2分
| Related links 関連リンク | | [Related Sites of this company] 【この会社の関連サイト】 | Person in charge 担当者より | | Rep Shimokawa Akira Age: 40 Daigyokai experience: for those looking for a 12-year My Home, Peace of mind ・ We are keeping in mind the safety of the mediation. The Company is open cheerfully at the 1-minute walk from the "Miyamaedaira" station of Denentoshi. Kawasaki ・ Please let me introduce the unpublished, including plenty of properties if Yokohama property. 担当者下川 明年齢:40代業界経験:12年マイホームをお探しの方に、安心・安全の仲介を心掛けております。当社は田園都市線の「宮前平」駅から徒歩1分の所で元気に営業しております。川崎・横浜の物件なら未公開も含め沢山の物件をご紹介させて頂きます。 | Contact お問い合せ先 | | TEL: 0120-533508 [Toll free] Please contact the "saw SUUMO (Sumo)" TEL:0120-533508【通話料無料】「SUUMO(スーモ)を見た」と問い合わせください | Most price range 最多価格帯 | | 34 million yen (4 units) 3400万円台(4戸) | Building coverage, floor area ratio 建ぺい率・容積率 | | Kenpei rate: 40%, Volume ratio: 80% 建ペい率:40%、容積率:80% | Time residents 入居時期 | | Immediate available 即入居可 | Land of the right form 土地の権利形態 | | Ownership 所有権 | Structure and method of construction 構造・工法 | | Wooden 2-story (framing method) 木造2階建(軸組工法) | Use district 用途地域 | | One low-rise 1種低層 | Land category 地目 | | Residential land 宅地 | Other limitations その他制限事項 | | Regulations have by the Landscape Act, Residential land development construction regulation area, Height district, Site area minimum Yes, Shade limit Yes, Setback Yes 景観法による規制有、宅地造成工事規制区域、高度地区、敷地面積最低限度有、日影制限有、壁面後退有 | Overview and notices その他概要・特記事項 | | Contact: Shimokawa Ming, Building confirmation number: No. H24 Make KBI07961 other 担当者:下川 明、建築確認番号:第H24確KBI07961号 他 | Company profile 会社概要 | | <Mediation> Minister of Land, Infrastructure and Transport (1) No. 008304 (Corporation) Tokyo Metropolitan Government Building Lots and Buildings Transaction Business Association (Corporation) metropolitan area real estate Fair Trade Council member Misawa MRD distributor (Ltd.) work management tool Kawasaki Miyamaedaira branch Yubinbango216-0007 Kawasaki City, Kanagawa Prefecture Miyamae-ku, Kodai 2-6-2 rapport Miyamaedaira first floor <仲介>国土交通大臣(1)第008304号(公社)東京都宅地建物取引業協会会員 (公社)首都圏不動産公正取引協議会加盟ミサワMRD特約店 (株)ワークマネジメンツ川崎宮前平支店〒216-0007 神奈川県川崎市宮前区小台2-6-2 ラポール宮前平1階 |
Local appearance photo現地外観写真  ● Big garden, Delight even children! Barbecue in the garden the whole family! There is. ☆ We will today for your tour also was willing to correspond. ☆ Until the toll-free ⇒0120-533-508 please feel free to contact!
● 大きなお庭は、お子様も大喜び!家族全員でお庭でバーベキュー!有りです。☆本日のご見学も喜んで対応させて頂きます。☆フリーダイヤル⇒0120-533-508までお気軽にご連絡下さい!
 ☆ As you can see, proudly, We are building complete. ☆ Until the toll-free ⇒0120-533-508 please feel free to contact!
☆ご覧の通り、堂々、建物完成しております。 ☆フリーダイヤル⇒0120-533-508までお気軽にご連絡下さい!
Kitchenキッチン  ☆ Ideal of Mom, It was counter kitchen! ☆ Until the toll-free ⇒0120-533-508 please feel free to contact!
☆ママの理想は、カウンターキッチンでした! ☆フリーダイヤル⇒0120-533-508までお気軽にご連絡下さい!
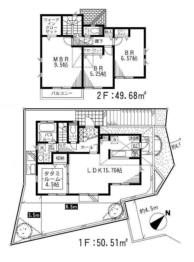
Floor plan間取り図  (3 Building), Price 34,800,000 yen, 4LDK, Land area 126.62 sq m , Building area 100.19 sq m
(3号棟)、価格3480万円、4LDK、土地面積126.62m2、建物面積100.19m2
Livingリビング  LDK + tatami room = 20 quires more than! from here, Story is the start of the family. ☆ Until the toll-free ⇒0120-533-508 please feel free to contact!
LDK+タタミルーム=20帖超! ここから、家族の物語がスタート。 ☆フリーダイヤル⇒0120-533-508までお気軽にご連絡下さい!
 ☆ Until the toll-free ⇒0120-533-508 please feel free to contact!
☆フリーダイヤル⇒0120-533-508までお気軽にご連絡下さい!
 ☆ Until the toll-free ⇒0120-533-508 please feel free to contact!
☆フリーダイヤル⇒0120-533-508までお気軽にご連絡下さい!
 ☆ Until the toll-free ⇒0120-533-508 please feel free to contact!
☆フリーダイヤル⇒0120-533-508までお気軽にご連絡下さい!
Otherその他  Japanese style room
和室
Local appearance photo現地外観写真  Because with underground garage, The car even on rainy days Pikkapikka!
地下車庫付きだから、雨の日でもお車はピッカピッカ!
Other introspectionその他内観  ☆ Until the toll-free ⇒0120-533-508 please feel free to contact!
☆フリーダイヤル⇒0120-533-508までお気軽にご連絡下さい!
Bathroom浴室  ☆ Until the toll-free ⇒0120-533-508 please feel free to contact!
☆フリーダイヤル⇒0120-533-508までお気軽にご連絡下さい!
Wash basin, toilet洗面台・洗面所  ☆ Until the toll-free ⇒0120-533-508 please feel free to contact!
☆フリーダイヤル⇒0120-533-508までお気軽にご連絡下さい!
Toiletトイレ  ☆ Until the toll-free ⇒0120-533-508 please feel free to contact!
☆フリーダイヤル⇒0120-533-508までお気軽にご連絡下さい!
Garden庭  ☆ Until the toll-free ⇒0120-533-508 please feel free to contact!
☆フリーダイヤル⇒0120-533-508までお気軽にご連絡下さい!
Parking lot駐車場  ☆ Until the toll-free ⇒0120-533-508 please feel free to contact!
☆フリーダイヤル⇒0120-533-508までお気軽にご連絡下さい!
Other Equipmentその他設備  Floor heating
床暖房
 Dishwasher
食器洗い乾燥機
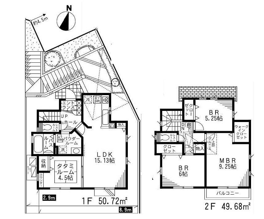
Floor plan間取り図  (5 Building), Price 34,800,000 yen, 4LDK, Land area 127.67 sq m , Building area 101.44 sq m
(5号棟)、価格3480万円、4LDK、土地面積127.67m2、建物面積101.44m2
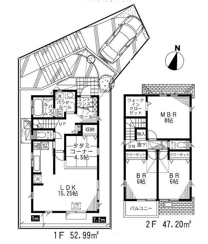
 (4 Building), Price 34,800,000 yen, 4LDK, Land area 133.95 sq m , Building area 100.19 sq m
(4号棟)、価格3480万円、4LDK、土地面積133.95m2、建物面積100.19m2
 (6 Building), Price 34,800,000 yen, 4LDK, Land area 126.94 sq m , Building area 100.4 sq m
(6号棟)、価格3480万円、4LDK、土地面積126.94m2、建物面積100.4m2
Location
|