New Homes » Kanto » Kanagawa Prefecture » Kawasaki City Tama-ku


Kawasaki City, Kanagawa Prefecture Tama-ku,
Odakyu line "Ikuta" 10 minutes Ayumi Ikuta 2 minutes by bus
There whole building underground garage ・ All-electric housing ・ A quiet residential area, Garden Home ・ Please have a look, so we have living environment favorable building completed!
2-story, Yang per good, garden, Immediate Available, All-electric, Super close, Year Available, 2 along the line more accessible, Facing south, Bathroom Dryer, A quiet residential area, LDK15 tatami mats or more, Around traffic fewerese-style room, Washbasin with shower, Face-to-face kitchen, Toilet 2 places, Bathroom 1 tsubo or more, Warm water washing toilet seat, Nantei, High-function toilet, IH cooking heater, Dish washing dryer, Water filter, A large gap between the neighboring house, Movable partition
Features pickup
Year Available / Immediate Available / 2 along the line more accessible / Super close / Facing south / Bathroom Dryer / Yang per good / A quiet residential area / LDK15 tatami mats or more / Around traffic fewer / Japanese-style room / garden / Washbasin with shower / Face-to-face kitchen / Toilet 2 places / Bathroom 1 tsubo or more / 2-story / Warm water washing toilet seat / Nantei / High-function toilet / IH cooking heater / Dish washing dryer / Water filter / All-electric / A large gap between the neighboring house / Movable partition
Price
34,800,000 yen
Floor plan
4LDK
Units sold
4 units
Land area
126.62 sq m ~ 133.95 sq m (38.30 tsubo ~ 40.51 square meters)
Building area
100.19 sq m ~ 101.44 sq m (30.30 tsubo ~ 30.68 square meters)
Completion date
2013 early November
Address
Kawasaki City, Kanagawa Prefecture Tama-ku, Nagasawa 4-28
Traffic
Odakyu line "Ikuta" 10 minutes Ayumi Ikuta 2 minutes by bus
Odakyu line "Shinyurigaoka" bus 17 minutes new Yurike OkaAyumi 2 minutes
Denentoshi Tokyu "Miyamaedaira" 25 minutes Miyamaedaira walk 2 minutes by bus
Person in charge
The person in charge Wada YoYu Age: 20 Daigyokai experience: the encounter of a one-year customer is in Forrest Gump, Real estate is we think a lifetime of relationship. You always continue to suggestions like that satisfy the last stood in your position. Come Please tell us a story we have gotten come to the Company.
Contact
TEL: 0800-603-0391 [Toll free] mobile phone ・ Also available from PHS
Caller ID is not notified
Please contact the "saw SUUMO (Sumo)"
If it does not lead, If the real estate company
Building coverage, floor area ratio
Kenpei rate: 40%, Volume ratio: 80%
Time residents
Immediate available
Land of the right form
Ownership
Use district
One low-rise
Overview and notices
Contact: Wada YoYu
Company profile
<Mediation> Governor of Kanagawa Prefecture (12) No. 004796 (Ltd.) Ino real estate Yubinbango214-0014 Kawasaki City, Kanagawa Prefecture Tama-ku, Noborito 3407


Local appearance photo

Local appearance photo. 3 Building can accommodate immediately if you can contact the preview for the appearance of the finished properties.
3 Building can accommodate immediately if you can contact the preview for the appearance of the finished properties.

Other

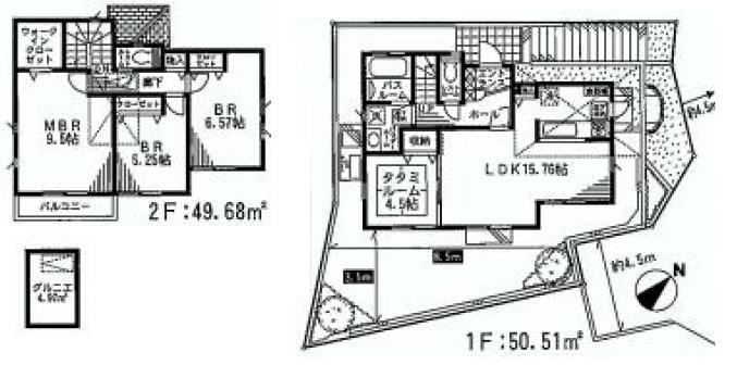
Other. 3 Building floor plan
3 Building floor plan

Living
Living

Local appearance photo

Local appearance photo. 4 Building appearance
4 Building appearance

Living
Living

Bathroom
Bathroom

Kitchen

Kitchen. IH cooking heater
IH cooking heater

Non-living room

Non-living room. Western style room
Western style room

Wash basin, toilet

Wash basin, toilet. Washroom
Washroom

Receipt
Receipt

Toilet
Toilet

Garden
Garden

Other

Other. 4 Building floor plan
4 Building floor plan

Living

Living. Tatami Room 4.5 Pledge
Tatami Room 4.5 Pledge

Kitchen

Kitchen. Face-to-face kitchen
Face-to-face kitchen

Non-living room

Non-living room. Western style room
Western style room

Receipt

Receipt. Walk-in closet
Walk-in closet

Garden
Garden

Non-living room

Non-living room. Western style room
Western style room



Location