New Homes » Kanto » Kanagawa Prefecture » Dais County
 
| | Kanagawa Prefecture dais gun samukawa 神奈川県高座郡寒川町 |
| JR Sagami Line "Samukawa" walk 17 minutes JR相模線「寒川」歩17分 |
| Newly built one detached! New development subdivision in! All building 4LDK! ! You can see the neighborhood of the model house. Contact is ahead of us! 新築一戸建!新規開発分譲地内!全棟4LDK!!近隣のモデルハウスをご覧になれます。お問い合わせはお早目に! |
| Newly built one detached! New development subdivision in! All building 4LDK! ! You can see the neighborhood of the model house. Contact is ahead of us! 新築一戸建!新規開発分譲地内!全棟4LDK!!近隣のモデルハウスをご覧になれます。お問い合わせはお早目に! |
Features pickup 特徴ピックアップ | | Pre-ground survey / Facing south / System kitchen / Bathroom Dryer / Yang per good / All room storage / A quiet residential area / Around traffic fewer / Japanese-style room / Idyll / Washbasin with shower / Face-to-face kitchen / Wide balcony / Toilet 2 places / Bathroom 1 tsubo or more / 2-story / 2 or more sides balcony / South balcony / Double-glazing / Underfloor Storage / The window in the bathroom / TV monitor interphone / Ventilation good / All living room flooring / Water filter / City gas / Storeroom / Development subdivision in 地盤調査済 /南向き /システムキッチン /浴室乾燥機 /陽当り良好 /全居室収納 /閑静な住宅地 /周辺交通量少なめ /和室 /田園風景 /シャワー付洗面台 /対面式キッチン /ワイドバルコニー /トイレ2ヶ所 /浴室1坪以上 /2階建 /2面以上バルコニー /南面バルコニー /複層ガラス /床下収納 /浴室に窓 /TVモニタ付インターホン /通風良好 /全居室フローリング /浄水器 /都市ガス /納戸 /開発分譲地内 | Price 価格 | | 25,800,000 yen ~ 29,800,000 yen 2580万円 ~ 2980万円 | Floor plan 間取り | | 3LDK + S (storeroom) ~ 4LDK + S (storeroom) 3LDK+S(納戸) ~ 4LDK+S(納戸) | Units sold 販売戸数 | | 3 units 3戸 | Total units 総戸数 | | 3 units 3戸 | Land area 土地面積 | | 101.32 sq m ~ 142.09 sq m (30.64 tsubo ~ 42.98 tsubo) (Registration) 101.32m2 ~ 142.09m2(30.64坪 ~ 42.98坪)(登記) | Building area 建物面積 | | 90.72 sq m ~ 96.78 sq m (27.44 tsubo ~ 29.27 tsubo) (Registration) 90.72m2 ~ 96.78m2(27.44坪 ~ 29.27坪)(登記) | Completion date 完成時期(築年月) | | February 2014 late schedule 2014年2月下旬予定 | Address 住所 | | Kanagawa Prefecture Kōza District samukawa Miyayama 1269-19 神奈川県高座郡寒川町宮山1269‐19 | Traffic 交通 | | JR Sagami Line "Samukawa" walk 17 minutes JR相模線「寒川」歩17分
| Person in charge 担当者より | | The person in charge Inoue Hee 予門 Age: 30 Daigyokai experience: I was born and raised in the 10 years Kugenumakaigan. Also I think that if you can tell honestly including Shonan good place and a bad place of. seriously, We are honestly to help customers. First, please feel free to contact. 担当者井上 喜予門年齢:30代業界経験:10年鵠沼海岸で生まれ育ちました。 湘南の良い所と悪い所も含め正直にお伝え出来ればと思っています。 真剣に、正直にお客様のお手伝いをさせて頂いております。 まずはお気軽にご連絡下さい。 | Contact お問い合せ先 | | TEL: 0800-603-0246 [Toll free] mobile phone ・ Also available from PHS Caller ID is not notified Please contact the "saw SUUMO (Sumo)" If it does not lead, If the real estate company TEL:0800-603-0246【通話料無料】携帯電話・PHSからもご利用いただけます 発信者番号は通知されません 「SUUMO(スーモ)を見た」と問い合わせください つながらない方、不動産会社の方は
| Building coverage, floor area ratio 建ぺい率・容積率 | | Kenpei rate: 50%, Volume ratio: 100% 建ペい率:50%、容積率:100% | Time residents 入居時期 | | February 2014 late schedule 2014年2月下旬予定 | Land of the right form 土地の権利形態 | | Ownership 所有権 | Structure and method of construction 構造・工法 | | Wooden 2-story 木造2階建 | Use district 用途地域 | | One low-rise 1種低層 | Land category 地目 | | Residential land 宅地 | Other limitations その他制限事項 | | Quasi-fire zones 準防火地域 | Overview and notices その他概要・特記事項 | | Contact: Inoue Hee 予門, Building confirmation number: H25SHC116874 issue other 担当者:井上 喜予門、建築確認番号:H25SHC116874号他 | Company profile 会社概要 | | <Mediation> Governor of Kanagawa Prefecture (10) No. 009580 (one company) Property distribution management Association (Corporation) metropolitan area real estate Fair Trade Council member Meiji Estate Co., housing Plaza store Yubinbango253-0044 Chigasaki, Kanagawa Prefecture Shinsakae-cho 8-7 <仲介>神奈川県知事(10)第009580号(一社)不動産流通経営協会会員 (公社)首都圏不動産公正取引協議会加盟明治地所(株)ハウジングプラザ店〒253-0044 神奈川県茅ヶ崎市新栄町8-7 |
Local appearance photo現地外観写真  Local (12 May 2013) Shooting
現地(2013年12月)撮影
Local photos, including front road前面道路含む現地写真  Local (12 May 2013) Shooting
現地(2013年12月)撮影
Local appearance photo現地外観写真  Local (12 May 2013) Shooting
現地(2013年12月)撮影
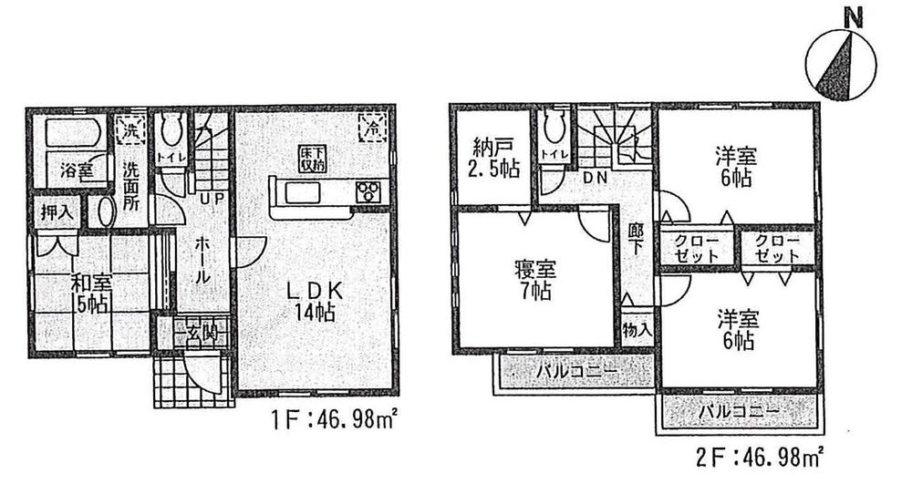
Floor plan間取り図  ((1) Building), Price 29,800,000 yen, 4LDK+S, Land area 142.09 sq m , Building area 93.96 sq m
((1)号棟)、価格2980万円、4LDK+S、土地面積142.09m2、建物面積93.96m2
Local appearance photo現地外観写真  Local (12 May 2013) Shooting
現地(2013年12月)撮影
Local photos, including front road前面道路含む現地写真  Local (12 May 2013) Shooting
現地(2013年12月)撮影
Otherその他  layout drawing
配置図
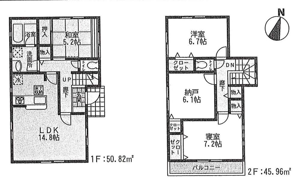
Floor plan間取り図  ((2) Building), Price 27,800,000 yen, 3LDK+S, Land area 112.84 sq m , Building area 96.78 sq m
((2)号棟)、価格2780万円、3LDK+S、土地面積112.84m2、建物面積96.78m2
Local appearance photo現地外観写真  Local (12 May 2013) Shooting
現地(2013年12月)撮影
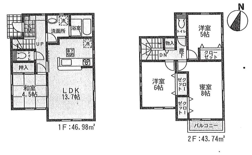
Floor plan間取り図  ((3) Building), Price 25,800,000 yen, 4LDK, Land area 101.32 sq m , Building area 90.72 sq m
((3)号棟)、価格2580万円、4LDK、土地面積101.32m2、建物面積90.72m2
Local appearance photo現地外観写真  Local (12 May 2013) Shooting
現地(2013年12月)撮影
 Local (12 May 2013) Shooting
現地(2013年12月)撮影
Location
|