New Homes » Kanto » Kanagawa Prefecture » Dais County
 
| | Kanagawa Prefecture dais gun samukawa 神奈川県高座郡寒川町 |
| JR Sagami Line "Kagawa" walk 6 minutes JR相模線「香川」歩6分 |
| Kagawa Station 6 min. Walk! Convenient facilities equipped to close living environment is good per residential street life such as Fuji supermarkets and hack drag. 香川駅徒歩6分! 住宅街につき住環境良好です近くにはFujiスーパーやハックドラックなど生活に便利な施設が揃っています。 |
Features pickup 特徴ピックアップ | | Corresponding to the flat-35S / It is close to Tennis Court / Super close / System kitchen / Bathroom Dryer / Yang per good / All room storage / Japanese-style room / Washbasin with shower / Face-to-face kitchen / Toilet 2 places / 2-story / South balcony / Double-glazing / Warm water washing toilet seat / Underfloor Storage / The window in the bathroom / TV monitor interphone / Water filter / Storeroom フラット35Sに対応 /テニスコートが近い /スーパーが近い /システムキッチン /浴室乾燥機 /陽当り良好 /全居室収納 /和室 /シャワー付洗面台 /対面式キッチン /トイレ2ヶ所 /2階建 /南面バルコニー /複層ガラス /温水洗浄便座 /床下収納 /浴室に窓 /TVモニタ付インターホン /浄水器 /納戸 | Event information イベント情報 | | Local sales meetings (Please be sure to ask in advance) schedule / Every Saturday, Sunday and public holidays time / 10:00 ~ 18:00 現地販売会(事前に必ずお問い合わせください)日程/毎週土日祝時間/10:00 ~ 18:00 | Price 価格 | | 25,800,000 yen ~ 28.8 million yen 2580万円 ~ 2880万円 | Floor plan 間取り | | 4LDK ~ 4LDK + S (storeroom) 4LDK ~ 4LDK+S(納戸) | Units sold 販売戸数 | | 4 units 4戸 | Total units 総戸数 | | 4 units 4戸 | Land area 土地面積 | | 100.06 sq m ~ 106.91 sq m 100.06m2 ~ 106.91m2 | Building area 建物面積 | | 92.34 sq m ~ 97.2 sq m 92.34m2 ~ 97.2m2 | Completion date 完成時期(築年月) | | December 2013 schedule 2013年12月予定 | Address 住所 | | Kanagawa Prefecture Kōza District samukawa Omagari 2-16 No. 2 of some other 神奈川県高座郡寒川町大曲2-16番2の一部ほか | Traffic 交通 | | JR Sagami Line "Kagawa" walk 6 minutes JR Sagami Line "Samukawa" walk 18 minutes JR相模線「香川」歩6分 JR相模線「寒川」歩18分
| Related links 関連リンク | | [Related Sites of this company] 【この会社の関連サイト】 | Person in charge 担当者より | | Rep Watanabe Atsushi Age: This is the second year living in Hiratsuka Shonan liked 40s. Yes sea Yes mountain "Shonan ・ Seisho "I very much liked the live-friendliness of the. "Shonan to many of our customers also one ・ My best you to Ikeru convey the splendor of the things that live in Seisho ". 担当者渡邉 敦年齢:40代湘南が気に入り平塚に住んで2年目になります。海あり山あり『湘南・西湘』の住みやすさを大変気に入っています。1人でも多くのお客様に『湘南・西湘』で暮らす事の素晴らしさを伝えていけるようがんばります。 | Contact お問い合せ先 | | TEL: 0800-602-5936 [Toll free] mobile phone ・ Also available from PHS Caller ID is not notified Please contact the "saw SUUMO (Sumo)" If it does not lead, If the real estate company TEL:0800-602-5936【通話料無料】携帯電話・PHSからもご利用いただけます 発信者番号は通知されません 「SUUMO(スーモ)を見た」と問い合わせください つながらない方、不動産会社の方は
| Most price range 最多価格帯 | | 25 million yen (2 units) 2500万円台(2戸) | Building coverage, floor area ratio 建ぺい率・容積率 | | Kenpei rate: 60%, Volume ratio: 180% ・ 200% 建ペい率:60%、容積率:180%・200% | Time residents 入居時期 | | Consultation 相談 | Land of the right form 土地の権利形態 | | Ownership 所有権 | Structure and method of construction 構造・工法 | | Wooden 2-story 木造2階建 | Use district 用途地域 | | One middle and high 1種中高 | Land category 地目 | | Residential land 宅地 | Other limitations その他制限事項 | | Height district, Quasi-fire zones 高度地区、準防火地域 | Overview and notices その他概要・特記事項 | | Contact: Watanabe Atsushi, Building confirmation number: No. H25SHC114630 (2 Building) 担当者:渡邉 敦、建築確認番号:第H25SHC114630号(2号棟) | Company profile 会社概要 | | <Marketing alliance (agency)> Governor of Kanagawa Prefecture (1) No. 027426 (Ltd.) Oceans Estate Yubinbango254-0002 Hiratsuka, Kanagawa Prefecture Yokouchi 3774-2 <販売提携(代理)>神奈川県知事(1)第027426号(株)オーシャンズエステート〒254-0002 神奈川県平塚市横内3774-2 |
Local appearance photo現地外観写真  Local (December 24, 2013) Shooting
現地(2013年12月24日)撮影
![Local appearance photo. Local (December 24, 2013) Shooting [1 Building]](/images/kanagawa/kozagun/18d0610043.jpg) Local (December 24, 2013) Shooting [1 Building]
現地(2013年12月24日)撮影 【1号棟】
![Local appearance photo. Local (December 24, 2013) Shooting [Building 3]](/images/kanagawa/kozagun/18d0610044.jpg) Local (December 24, 2013) Shooting [Building 3]
現地(2013年12月24日)撮影 【3号棟】
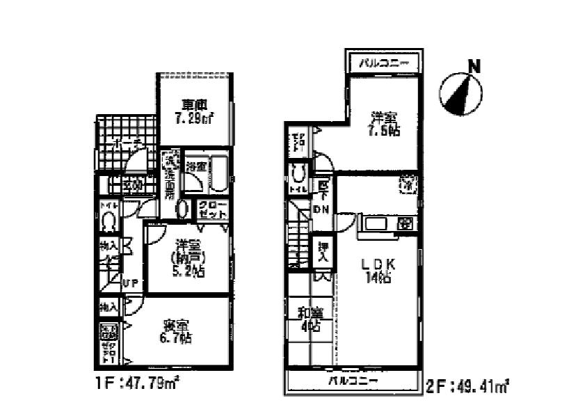
Floor plan間取り図  (Omagari ninth 2 Building), Price 25,800,000 yen, 4LDK, Land area 100.06 sq m , Building area 97.2 sq m
(大曲第9 2号棟)、価格2580万円、4LDK、土地面積100.06m2、建物面積97.2m2
Local appearance photo現地外観写真 ![Local appearance photo. Local (December 24, 2013) Shooting [Building 2]](/images/kanagawa/kozagun/18d0610045.jpg) Local (December 24, 2013) Shooting [Building 2]
現地(2013年12月24日)撮影 【2号棟】
Livingリビング  Example of construction
施工例
Bathroom浴室  Example of construction
施工例
Kitchenキッチン  Example of construction
施工例
Non-living roomリビング以外の居室  Example of construction
施工例
Entrance玄関  Example of construction
施工例
Wash basin, toilet洗面台・洗面所  Example of construction
施工例
Receipt収納  Example of construction
施工例
Toiletトイレ  Example of construction
施工例
Supermarketスーパー  Fuji Omagari 400m to shop
Fuji大曲店まで400m
 The entire compartment Figure
全体区画図
Floor plan間取り図  (Omagari ninth 1 Building), Price 27,800,000 yen, 4LDK+S, Land area 104.59 sq m , Building area 92.34 sq m
(大曲第9 1号棟)、価格2780万円、4LDK+S、土地面積104.59m2、建物面積92.34m2
Local appearance photo現地外観写真  Local (December 24, 2013) Shooting
現地(2013年12月24日)撮影
Livingリビング  Example of construction
施工例
Kitchenキッチン  Example of construction
施工例
Non-living roomリビング以外の居室  Example of construction
施工例
Supermarketスーパー  622m to the crown Kagawa shop
クラウン香川店まで622m
Location
|