New Homes » Kanto » Kanagawa Prefecture » Dais County
 
| | Kanagawa Prefecture dais gun samukawa 神奈川県高座郡寒川町 |
| JR Sagami Line "Kagawa" walk 6 minutes JR相模線「香川」歩6分 |
| Kagawa Station 6 min. Walk, While there is in a quiet residential area, Near market and shopping area enhancement, High-performance housing equipment introduced 香川駅徒歩6分、閑静な住宅街にありながら、周辺商業施設充実、高性能な住宅設備導入 |
| It is newly built single-family high convenience of the 6-minute walk from the Kagawa Station. While it located in a quiet residential area, Wait a little leg, Supermarkets and drugstores, Restaurant, You arrive at the convenience store. Access by car to Chigasaki is also a good place. The building is an indoor facility appearance of the shade with a calm introduced a high-performance equipment. It will support a comfortable life. Certainly once please visit our website. Benefits information and articles. 香川駅から徒歩6分の利便性が高い新築一戸建てです。閑静な住宅街の中にありながら、少し足を延ばせば、スーパーマーケットやドラッグストア、レストラン、コンビニにたどり着きます。車で茅ヶ崎へのアクセスも良好な場所です。建物は落着きのある色合いの外観と室内設備は高性能の設備を導入。快適な生活をサポートしてくれます。是非一度弊社ホームページをご覧ください。特典情報掲載中。 |
Features pickup 特徴ピックアップ | | Corresponding to the flat-35S / System kitchen / Bathroom Dryer / Yang per good / Flat to the station / A quiet residential area / Corner lot / Japanese-style room / Washbasin with shower / Face-to-face kitchen / Toilet 2 places / Bathroom 1 tsubo or more / 2-story / Double-glazing / Otobasu / Warm water washing toilet seat / The window in the bathroom / Water filter フラット35Sに対応 /システムキッチン /浴室乾燥機 /陽当り良好 /駅まで平坦 /閑静な住宅地 /角地 /和室 /シャワー付洗面台 /対面式キッチン /トイレ2ヶ所 /浴室1坪以上 /2階建 /複層ガラス /オートバス /温水洗浄便座 /浴室に窓 /浄水器 | Price 価格 | | 25,800,000 yen ~ 28.8 million yen 2580万円 ~ 2880万円 | Floor plan 間取り | | 3LDK + S (storeroom) ~ 4LDK + S (storeroom) 3LDK+S(納戸) ~ 4LDK+S(納戸) | Units sold 販売戸数 | | 4 units 4戸 | Total units 総戸数 | | 4 units 4戸 | Land area 土地面積 | | 100.06 sq m ~ 106.91 sq m (30.26 tsubo ~ 32.34 square meters) 100.06m2 ~ 106.91m2(30.26坪 ~ 32.34坪) | Building area 建物面積 | | 92.2 sq m ~ 97.2 sq m (27.89 tsubo ~ 29.40 square meters) 92.2m2 ~ 97.2m2(27.89坪 ~ 29.40坪) | Driveway burden-road 私道負担・道路 | | Road width: 4.5m ~ 5m, Asphaltic pavement 道路幅:4.5m ~ 5m、アスファルト舗装 | Completion date 完成時期(築年月) | | 2013 late December plans 2013年12月下旬予定 | Address 住所 | | Kanagawa Prefecture Kōza District samukawa Omagari 2-4 神奈川県高座郡寒川町大曲2-4 | Traffic 交通 | | JR Sagami Line "Kagawa" walk 6 minutes JR Sagami Line "Samukawa" walk 18 minutes JR相模線「香川」歩6分 JR相模線「寒川」歩18分
| Related links 関連リンク | | [Related Sites of this company] 【この会社の関連サイト】 | Contact お問い合せ先 | | (Ltd.) Efupi and Home TEL: 0800-602-5956 [Toll free] mobile phone ・ Also available from PHS Caller ID is not notified Please contact the "saw SUUMO (Sumo)" If it does not lead, If the real estate company (株)エフピーアンドホームTEL:0800-602-5956【通話料無料】携帯電話・PHSからもご利用いただけます 発信者番号は通知されません 「SUUMO(スーモ)を見た」と問い合わせください つながらない方、不動産会社の方は
| Most price range 最多価格帯 | | 25 million yen (2 units) 2500万円台(2戸) | Building coverage, floor area ratio 建ぺい率・容積率 | | Kenpei rate: 60%, Volume ratio: 180% ・ 200% 建ペい率:60%、容積率:180%・200% | Time residents 入居時期 | | 2013 end of December schedule 2013年12月末予定 | Land of the right form 土地の権利形態 | | Ownership 所有権 | Structure and method of construction 構造・工法 | | Wooden 2-story (framing method) 木造2階建(軸組工法) | Use district 用途地域 | | One middle and high 1種中高 | Land category 地目 | | Residential land 宅地 | Other limitations その他制限事項 | | Height district, Quasi-fire zones 高度地区、準防火地域 | Overview and notices その他概要・特記事項 | | Building confirmation number: No. H25SHC114630 建築確認番号:第H25SHC114630号 | Company profile 会社概要 | | <Mediation> Governor of Kanagawa Prefecture (1) No. 027627 (Ltd.) Efupi and home Yubinbango253-0111 Kanagawa Prefecture dais gun samukawa Ichinomiya 7-2-6 <仲介>神奈川県知事(1)第027627号(株)エフピーアンドホーム〒253-0111 神奈川県高座郡寒川町一之宮7-2-6 |
 Local appearance photo
現地外観写真
 Local appearance photo
現地外観写真
 Local photos, including front road
前面道路含む現地写真
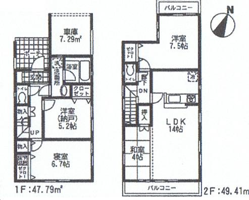
Floor plan間取り図  (1 Building), Price 27,800,000 yen, 4LDK+S, Land area 104.59 sq m , Building area 92.34 sq m
(1号棟)、価格2780万円、4LDK+S、土地面積104.59m2、建物面積92.34m2
 Local appearance photo
現地外観写真
 Same specifications photos (living)
同仕様写真(リビング)
 Same specifications photo (bathroom)
同仕様写真(浴室)
 Same specifications photo (kitchen)
同仕様写真(キッチン)
Supermarketスーパー  Fuji Omagari 446m to shop
Fuji大曲店まで446m
 Same specifications photos (Other introspection)
同仕様写真(その他内観)
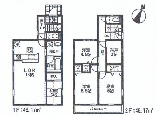
Floor plan間取り図  (Building 2), Price 25,800,000 yen, 3LDK+S, Land area 100.06 sq m , Building area 97.2 sq m
(2号棟)、価格2580万円、3LDK+S、土地面積100.06m2、建物面積97.2m2
 Same specifications photos (appearance)
同仕様写真(外観)
Drug storeドラッグストア  292m to hack drag Samukawa shop
ハックドラッグ寒川店まで292m
 Same specifications photos (Other introspection)
同仕様写真(その他内観)
Junior high school中学校  Samukawa stand Samukawa 1125m to East Junior High School
寒川町立寒川東中学校まで1125m
Floor plan間取り図  (4 Building), Price 28.8 million yen, 4LDK+S, Land area 106.91 sq m , Building area 97.2 sq m
(4号棟)、価格2880万円、4LDK+S、土地面積106.91m2、建物面積97.2m2
Primary school小学校  1168m until samukawa Minami Elementary School
寒川町立南小学校まで1168m
Location
|