2014January
27,800,000 yen, 5LDK + S (storeroom), 125.86 sq m
New Homes » Kanto » Kanagawa Prefecture » Minamiashigara
 
| | Kanagawa Prefecture Minamiashigara 神奈川県南足柄市 |
| Daiyuzansen Hakone Izu "Wadagahara" walk 4 minutes 伊豆箱根大雄山線「和田河原」歩4分 |
| If we examine the new building ready-built house! Please contact our shop that does not take a commission! 新築建売住宅をご検討の方!手数料のかからない当店へご連絡下さい! |
Features pickup 特徴ピックアップ | | Parking two Allowed / Bathroom Dryer / Yang per good / Flat to the station / A quiet residential area / LDK15 tatami mats or more / Japanese-style room / Shaping land / Washbasin with shower / Face-to-face kitchen / Toilet 2 places / 2-story / The window in the bathroom / Leafy residential area / Ventilation good / Walk-in closet 駐車2台可 /浴室乾燥機 /陽当り良好 /駅まで平坦 /閑静な住宅地 /LDK15畳以上 /和室 /整形地 /シャワー付洗面台 /対面式キッチン /トイレ2ヶ所 /2階建 /浴室に窓 /緑豊かな住宅地 /通風良好 /ウォークインクロゼット | Price 価格 | | 27,800,000 yen 2780万円 | Floor plan 間取り | | 5LDK + S (storeroom) 5LDK+S(納戸) | Units sold 販売戸数 | | 1 units 1戸 | Land area 土地面積 | | 165.35 sq m 165.35m2 | Building area 建物面積 | | 125.86 sq m 125.86m2 | Driveway burden-road 私道負担・道路 | | Nothing 無 | Completion date 完成時期(築年月) | | January 2014 2014年1月 | Address 住所 | | Kanagawa Prefecture Minamiashigara Ikoma 神奈川県南足柄市生駒 | Traffic 交通 | | Daiyuzansen Hakone Izu "Wadagahara" walk 4 minutes 伊豆箱根大雄山線「和田河原」歩4分
| Related links 関連リンク | | [Related Sites of this company] 【この会社の関連サイト】 | Contact お問い合せ先 | | TEL: 0800-808-7058 [Toll free] mobile phone ・ Also available from PHS Caller ID is not notified Please contact the "saw SUUMO (Sumo)" If it does not lead, If the real estate company TEL:0800-808-7058【通話料無料】携帯電話・PHSからもご利用いただけます 発信者番号は通知されません 「SUUMO(スーモ)を見た」と問い合わせください つながらない方、不動産会社の方は
| Building coverage, floor area ratio 建ぺい率・容積率 | | 60% ・ 200% 60%・200% | Time residents 入居時期 | | January 2014 will 2014年1月予定 | Land of the right form 土地の権利形態 | | Ownership 所有権 | Structure and method of construction 構造・工法 | | Wooden 2-story 木造2階建 | Use district 用途地域 | | One middle and high 1種中高 | Overview and notices その他概要・特記事項 | | Facilities: Public Water Supply, This sewage, Individual LPG, Building confirmation number: first H24SBC- sure 05833H No., Parking: car space 設備:公営水道、本下水、個別LPG、建築確認番号:第H24SBC-確05833H号、駐車場:カースペース | Company profile 会社概要 | | <Marketing alliance (agency)> Governor of Kanagawa Prefecture (1) No. 026996 Century 21 (stock) La ・ Vita Holmes Yubinbango258-0021 Kanagawa Prefecture ashigarakami Kaisei-cho, Yoshida Island 4458-3 <販売提携(代理)>神奈川県知事(1)第026996号センチュリー21(株)ラ・ヴィータホームズ〒258-0021 神奈川県足柄上郡開成町吉田島4458-3 |
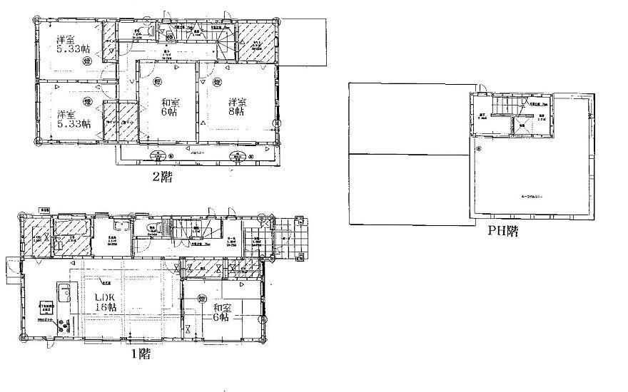
Floor plan間取り図  27,800,000 yen, 5LDK + S (storeroom), Land area 165.35 sq m , Building area 125.86 sq m
2780万円、5LDK+S(納戸)、土地面積165.35m2、建物面積125.86m2
Local appearance photo現地外観写真  Local (10 May 2013) Shooting
現地(2013年10月)撮影
Local photos, including front road前面道路含む現地写真  Local (10 May 2013) Shooting
現地(2013年10月)撮影
Station駅  320m until Wadagahara Station
和田河原駅まで320m
Location
|