|
|
Kanagawa Prefecture Miura
神奈川県三浦市
|
|
Keikyū Kurihama Line "Tsukuihama" walk 10 minutes
京急久里浜線「津久井浜」歩10分
|
|
Corresponding to the flat-35S, Parking two Allowed, Immediate Available, Ocean View, System kitchen, Bathroom Dryer, Yang per good, Flat to the station, Shaping land, Washbasin with shower, Toilet 2 places, Bathroom 1 tsubo or more
フラット35Sに対応、駐車2台可、即入居可、オーシャンビュー、システムキッチン、浴室乾燥機、陽当り良好、駅まで平坦、整形地、シャワー付洗面台、トイレ2ヶ所、浴室1坪以上
|
|
Pleasant environment with Miurakaigan of sandy beach near the Shonan atmosphere is the introduction of the charm of the new homes. There is a balcony on the roof of the roof balcony, Very wide sky and the sparkling sea of the panorama from there you can enjoy the environment of Purashisuresu can enjoy. In building was durable two-by-four building, Energy conservation standards of the flat 35 is also being adapted. To gentle EcoCute with all-electric homes that because your wallet, We arrived also outlet for an electric vehicle. Please contact us to recommend new homes car space is also marked with two.
三浦海岸の砂浜も近く湘南の雰囲気のある気持ちの良い環境が魅力の新築住宅のご紹介です。ルーフバルコニーという屋上にバルコニーがあり、そこからとても広い空とキラキラ輝く海のパノラマが堪能できるプラシスレスの環境をお楽しみいただけます。建物はツーバイフォーで耐久性に優れた建物で、フラット35の省エネ基準も適合しております。エコキュート付きのオール電化住宅なのでお財布にも優しく、電気自動車用のコンセントもつきました。カースペースも2台付いたお勧めの新築住宅に是非お問い合わせください。
|
Features pickup 特徴ピックアップ | | Corresponding to the flat-35S / Parking two Allowed / Immediate Available / Ocean View / System kitchen / Bathroom Dryer / Yang per good / Flat to the station / LDK15 tatami mats or more / Shaping land / Washbasin with shower / Toilet 2 places / Bathroom 1 tsubo or more / 2-story / Double-glazing / Warm water washing toilet seat / loft / Underfloor Storage / The window in the bathroom / TV monitor interphone / All living room flooring / Good view / Water filter / All-electric / roof balcony / Flat terrain フラット35Sに対応 /駐車2台可 /即入居可 /オーシャンビュー /システムキッチン /浴室乾燥機 /陽当り良好 /駅まで平坦 /LDK15畳以上 /整形地 /シャワー付洗面台 /トイレ2ヶ所 /浴室1坪以上 /2階建 /複層ガラス /温水洗浄便座 /ロフト /床下収納 /浴室に窓 /TVモニタ付インターホン /全居室フローリング /眺望良好 /浄水器 /オール電化 /ルーフバルコニー /平坦地 |
Price 価格 | | 27,900,000 yen 2790万円 |
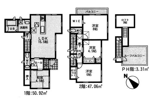
Floor plan 間取り | | 4LDK 4LDK |
Units sold 販売戸数 | | 1 units 1戸 |
Total units 総戸数 | | 1 units 1戸 |
Land area 土地面積 | | 101.04 sq m (30.56 tsubo) (Registration) 101.04m2(30.56坪)(登記) |
Building area 建物面積 | | 101.29 sq m (30.64 tsubo) (Registration) 101.29m2(30.64坪)(登記) |
Driveway burden-road 私道負担・道路 | | Nothing 無 |
Completion date 完成時期(築年月) | | July 2013 2013年7月 |
Address 住所 | | Kanagawa Prefecture Miura Minamishitaura MachiKamimiyada 神奈川県三浦市南下浦町上宮田 |
Traffic 交通 | | Keikyū Kurihama Line "Tsukuihama" walk 10 minutes Keikyū Kurihama Line "Miurakaigan" walk 14 minutes Keikyū Kurihama Line "Keikyunagasawa" walk 25 minutes 京急久里浜線「津久井浜」歩10分 京急久里浜線「三浦海岸」歩14分 京急久里浜線「京急長沢」歩25分
|
Related links 関連リンク | | [Related Sites of this company] 【この会社の関連サイト】 |
Person in charge 担当者より | | Rep Yoshitani 担当者ヨシタニ |
Contact お問い合せ先 | | TEL: 0800-603-2474 [Toll free] mobile phone ・ Also available from PHS Caller ID is not notified Please contact the "saw SUUMO (Sumo)" If it does not lead, If the real estate company TEL:0800-603-2474【通話料無料】携帯電話・PHSからもご利用いただけます 発信者番号は通知されません 「SUUMO(スーモ)を見た」と問い合わせください つながらない方、不動産会社の方は
|
Building coverage, floor area ratio 建ぺい率・容積率 | | 60% ・ 160% 60%・160% |
Time residents 入居時期 | | Immediate available 即入居可 |
Land of the right form 土地の権利形態 | | Ownership 所有権 |
Structure and method of construction 構造・工法 | | Wooden 2-story (2 × 4 construction method) 木造2階建(2×4工法) |
Use district 用途地域 | | One middle and high 1種中高 |
Other limitations その他制限事項 | | Set-back: already, Quasi-fire zones セットバック:済、準防火地域 |
Overview and notices その他概要・特記事項 | | Contact: Yoshitani, Facilities: Public Water Supply, This sewage, All-electric, Parking: car space 担当者:ヨシタニ、設備:公営水道、本下水、オール電化、駐車場:カースペース |
Company profile 会社概要 | | <Mediation> Governor of Kanagawa Prefecture (3) No. 022239 No. Heisei housing (Ltd.) Yubinbango238-0007 Yokosuka, Kanagawa Prefecture Wakamatsu-cho 1-18 <仲介>神奈川県知事(3)第022239号平成ハウジング(株)〒238-0007 神奈川県横須賀市若松町1-18 |