New Homes » Kanto » Kanagawa Prefecture » Odawara
 
| | Odawara, Kanagawa Prefecture 神奈川県小田原市 |
| JR Tokaido Line "Kamonomiya" walk 17 minutes JR東海道本線「鴨宮」歩17分 |
Features pickup 特徴ピックアップ | | Pre-ground survey / Parking two Allowed / Immediate Available / Super close / It is close to the city / Facing south / System kitchen / Bathroom Dryer / Yang per good / All room storage / Flat to the station / Siemens south road / A quiet residential area / LDK15 tatami mats or more / Corner lot / Shaping land / Garden more than 10 square meters / Washbasin with shower / Face-to-face kitchen / Barrier-free / Toilet 2 places / Bathroom 1 tsubo or more / 2-story / South balcony / Double-glazing / Zenshitsuminami direction / Warm water washing toilet seat / Nantei / Underfloor Storage / The window in the bathroom / Leafy residential area / Ventilation good / All living room flooring / Walk-in closet / Water filter / All rooms are two-sided lighting / Flat terrain / Development subdivision in 地盤調査済 /駐車2台可 /即入居可 /スーパーが近い /市街地が近い /南向き /システムキッチン /浴室乾燥機 /陽当り良好 /全居室収納 /駅まで平坦 /南側道路面す /閑静な住宅地 /LDK15畳以上 /角地 /整形地 /庭10坪以上 /シャワー付洗面台 /対面式キッチン /バリアフリー /トイレ2ヶ所 /浴室1坪以上 /2階建 /南面バルコニー /複層ガラス /全室南向き /温水洗浄便座 /南庭 /床下収納 /浴室に窓 /緑豊かな住宅地 /通風良好 /全居室フローリング /ウォークインクロゼット /浄水器 /全室2面採光 /平坦地 /開発分譲地内 | Price 価格 | | 16.8 million yen ~ 17.8 million yen 1680万円 ~ 1780万円 | Floor plan 間取り | | 4LDK 4LDK | Units sold 販売戸数 | | 2 units 2戸 | Total units 総戸数 | | 5 units 5戸 | Land area 土地面積 | | 110.41 sq m ~ 117.72 sq m (33.39 tsubo ~ 35.61 tsubo) (measured) 110.41m2 ~ 117.72m2(33.39坪 ~ 35.61坪)(実測) | Building area 建物面積 | | 92.73 sq m ~ 101.01 sq m (28.05 tsubo ~ 30.55 square meters) 92.73m2 ~ 101.01m2(28.05坪 ~ 30.55坪) | Completion date 完成時期(築年月) | | In mid-August 2013 2013年8月中旬 | Address 住所 | | Odawara, Kanagawa Prefecture Iizumi 935-10 神奈川県小田原市飯泉935-10 | Traffic 交通 | | JR Tokaido Line "Kamonomiya" walk 17 minutes JR東海道本線「鴨宮」歩17分
| Related links 関連リンク | | [Related Sites of this company] 【この会社の関連サイト】 | Person in charge 担当者より | | Person in charge of real-estate and building FP Ise Toshikazu Age: 40 Daigyokai Experience: 22 years real estate brokerage in involved 22 years have passed. No customers to forget the feeling of gratitude, We will propose you live, such as to the excitement. 担当者宅建FP伊勢 寿一年齢:40代業界経験:22年不動産仲介業に携わり22年目が経ちました。お客様に感謝の気持ちを忘れる事なく、感動をする様なお住まいの提案をしていきます。 | Contact お問い合せ先 | | TEL: 0800-808-7803 [Toll free] mobile phone ・ Also available from PHS Caller ID is not notified Please contact the "saw SUUMO (Sumo)" If it does not lead, If the real estate company TEL:0800-808-7803【通話料無料】携帯電話・PHSからもご利用いただけます 発信者番号は通知されません 「SUUMO(スーモ)を見た」と問い合わせください つながらない方、不動産会社の方は
| Time residents 入居時期 | | Immediate available 即入居可 | Land of the right form 土地の権利形態 | | Ownership 所有権 | Use district 用途地域 | | Industry 工業 | Land category 地目 | | Residential land 宅地 | Overview and notices その他概要・特記事項 | | Contact: Ise Juichi 担当者:伊勢 寿一 | Company profile 会社概要 | | <Mediation> Governor of Kanagawa Prefecture (1) No. 027081 (Ltd.) sunflower Estate Yubinbango258-0018 Kanagawa Prefecture ashigarakami Oimachi Kanade 8-15 first floor <仲介>神奈川県知事(1)第027081号(株)ひまわりエステート〒258-0018 神奈川県足柄上郡大井町金手8-15 1階 |
Local appearance photo現地外観写真  Local (October 14, 2013) Shooting
現地(2013年10月14日)撮影
 Local (October 14, 2013) Shooting
現地(2013年10月14日)撮影
 Local (October 14, 2013) Shooting
現地(2013年10月14日)撮影
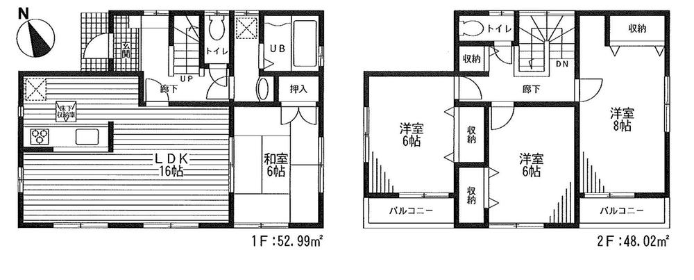
Floor plan間取り図  (1 Building), Price 16.8 million yen, 4LDK, Land area 110.41 sq m , Building area 101.01 sq m
(1号棟)、価格1680万円、4LDK、土地面積110.41m2、建物面積101.01m2
Livingリビング  Indoor (October 14, 2013) Shooting
室内(2013年10月14日)撮影
Bathroom浴室  Indoor (October 14, 2013) Shooting
室内(2013年10月14日)撮影
Kitchenキッチン  Indoor (October 14, 2013) Shooting
室内(2013年10月14日)撮影
 The entire compartment Figure
全体区画図
Location
|