New Homes » Kanto » Kanagawa Prefecture » Sagamihara, Chuo-ku
 
| | Sagamihara City, Kanagawa Prefecture, Chuo-ku, 神奈川県相模原市中央区 |
| Keio Sagamihara Line "Hashimoto" bus 11 Bun'ue Yotsuya walk 2 minutes 京王相模原線「橋本」バス11分上四ツ谷 歩2分 |
| With solar power system! Property with a flat-35 can be used Face-to-face kitchen, Toilet 2 places, 2-story, Warm water washing toilet seat, TV monitor interphone 太陽光発電システム付!フラット35が使える物件 対面式キッチン、トイレ2ヶ所、2階建、温水洗浄便座、TVモニタ付インターホン |
| It is a quiet residential area, but within 10 minutes' walk, Supermarket ・ There are a number of commercial facilities, such as drugstore living environment is also good. Danakita Elementary School 240m Dana Middle School 700m Maruetsu Dana shop 650m York Mart Dana shop 650m Lawson Store 100 Sagamihara Dana shop 700m Solar power generation systems equipped with housing. Solar power system, Face-to-face kitchen, Toilet 2 places, 2-story, Warm water washing toilet seat, TV monitor interphone 閑静な住宅街ですが徒歩10分以内に、スーパー・ドラッグストアなど商業施設多数あり生活環境も良好です。田名北小学校240m 田名中学校700m マルエツ田名店650m ヨークマート田名店650m ローソンストア100相模原田名店700m 太陽光発電システム搭載住宅。 太陽光発電システム、対面式キッチン、トイレ2ヶ所、2階建、温水洗浄便座、TVモニタ付インターホン |
Features pickup 特徴ピックアップ | | Solar power system / Face-to-face kitchen / Toilet 2 places / 2-story / Warm water washing toilet seat / TV monitor interphone 太陽光発電システム /対面式キッチン /トイレ2ヶ所 /2階建 /温水洗浄便座 /TVモニタ付インターホン | Price 価格 | | 22,800,000 yen ・ 23.8 million yen 2280万円・2380万円 | Floor plan 間取り | | 4LDK 4LDK | Units sold 販売戸数 | | 3 units 3戸 | Land area 土地面積 | | 107.21 sq m ~ 114.77 sq m (registration) 107.21m2 ~ 114.77m2(登記) | Building area 建物面積 | | 89.09 sq m ~ 95.58 sq m (measured) 89.09m2 ~ 95.58m2(実測) | Driveway burden-road 私道負担・道路 | | Road width: 4m 道路幅:4m | Completion date 完成時期(築年月) | | December 2013 2013年12月 | Address 住所 | | Sagamihara City, Kanagawa Prefecture, Chuo-ku, Dana 神奈川県相模原市中央区田名 | Traffic 交通 | | Keio Sagamihara Line "Hashimoto" bus 11 Bun'ue Yotsuya walk 2 minutes JR Yokohama Line "Sagamihara" bus 13 minutes Yotsuya walk 7 minutes JR Sagami Line "upper groove" walk 7 minutes 京王相模原線「橋本」バス11分上四ツ谷 歩2分 JR横浜線「相模原」バス13分四ツ谷 歩7分 JR相模線「上溝」歩7分
| Person in charge 担当者より | | Person in charge of Sakai Osamu Age: 40 Daigyokai Experience: 20 years our customers we strive every day to be able to answer the question in the spirit good faith effort. It covered in less experienced minute response and footwork. Since it is Atsugi residents, Please leave if Atsugi things. Thank you. 担当者坂井 修年齢:40代業界経験:20年お客様に精神誠意全力で質問にお答えできるよう日々努力しております。経験が少ない分レスポンスとフットワークでカバーしています。厚木在住ですので、厚木のことならお任せ下さい。宜しくお願い致します。 | Contact お問い合せ先 | | TEL: 0800-603-8480 [Toll free] mobile phone ・ Also available from PHS Caller ID is not notified Please contact the "saw SUUMO (Sumo)" If it does not lead, If the real estate company TEL:0800-603-8480【通話料無料】携帯電話・PHSからもご利用いただけます 発信者番号は通知されません 「SUUMO(スーモ)を見た」と問い合わせください つながらない方、不動産会社の方は
| Most price range 最多価格帯 | | 23 million yen (2 units) 2300万円台(2戸) | Building coverage, floor area ratio 建ぺい率・容積率 | | Kenpei rate: 60%, Volume ratio: 200% 建ペい率:60%、容積率:200% | Time residents 入居時期 | | Consultation 相談 | Land of the right form 土地の権利形態 | | Ownership 所有権 | Structure and method of construction 構造・工法 | | Wooden 2-story 木造2階建 | Use district 用途地域 | | One dwelling 1種住居 | Land category 地目 | | Residential land 宅地 | Overview and notices その他概要・特記事項 | | Contact: Sakai Osamu, Building confirmation number: 01446 担当者:坂井 修、建築確認番号:01446 | Company profile 会社概要 | | <Mediation> Kanagawa Governor (2) Article 026 475 issue (stock) residence of square HOMESyubinbango252-0231 Sagamihara, Kanagawa Prefecture, Chuo-ku, Sagamihara 5-1-2A <仲介>神奈川県知事(2)第026475号(株)住まいの広場HOMES〒252-0231 神奈川県相模原市中央区相模原5-1-2A |
Local appearance photo現地外観写真  It is a quiet residential area, but within 10 minutes' walk, Supermarket ・ There are a number of commercial facilities, such as drugstore living environment is also good. Solar power generation systems equipped with housing.
閑静な住宅街ですが徒歩10分以内に、スーパー・ドラッグストアなど商業施設多数あり生活環境も良好です。太陽光発電システム搭載住宅。
Livingリビング  All room pair glass
全居室ペアガラス
Kitchenキッチン  Stainless steel worktop ・ Glass top stove system Kitchen
ステンレス製ワークトップ・ガラストップコンロのシステムキッチン
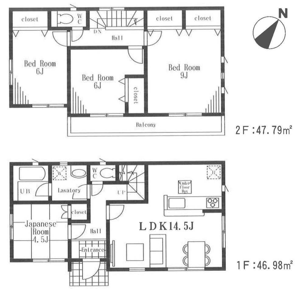
Floor plan間取り図  (3), Price 22,800,000 yen, 4LDK, Land area 114.77 sq m , Building area 94.77 sq m
(3)、価格2280万円、4LDK、土地面積114.77m2、建物面積94.77m2
 Local appearance photo
現地外観写真
Bathroom浴室  Air Heating drying with unit bus
換気暖房乾燥付ユニットバス
 Non-living room
リビング以外の居室
 Entrance
玄関
 Wash basin, toilet
洗面台・洗面所
 Receipt
収納
 Toilet
トイレ
 Parking lot
駐車場
 Balcony
バルコニー
Supermarketスーパー  Maruetsu to Dana shop 650m
マルエツ田名店 まで650m
 The entire compartment Figure
全体区画図
Floor plan間取り図  (2), Price 23.8 million yen, 4LDK, Land area 107.21 sq m , Building area 89.09 sq m
(2)、価格2380万円、4LDK、土地面積107.21m2、建物面積89.09m2
 Non-living room
リビング以外の居室
 Receipt
収納
Supermarketスーパー  York Mart until Dana shop 650m
ヨークマート田名店 まで650m
Floor plan間取り図  (1), Price 23.8 million yen, 4LDK, Land area 112.72 sq m , Building area 95.58 sq m
(1)、価格2380万円、4LDK、土地面積112.72m2、建物面積95.58m2
 Non-living room
リビング以外の居室
Location
|