New Homes » Kanto » Kanagawa Prefecture » Sagamihara, Chuo-ku
 
| | Sagamihara City, Kanagawa Prefecture, Chuo-ku, 神奈川県相模原市中央区 |
| JR Yokohama Line "Fuchinobe" bus 7 minutes Chiyoda walk 4 minutes JR横浜線「淵野辺」バス7分千代田歩4分 |
| There in many commercial facilities around, This is useful, but is a quiet environment because it is located in a residential area. Walk to elementary school 3 minutes, Junior high school also attending school and walk 11 minutes is safe. 周辺に商業施設が多くあり、便利ですが住宅地内に立地しているため静かな環境です。小学校に徒歩3分、中学校も徒歩11分と通学も安心です。 |
| ・ Good per sun per south road ・ Walk-in closet with the main bedroom ・ Open in two places balcony ・ Attend also by bicycle in the flat until the Yokohama Line Fuchinobe Station ・南道路につき陽当たり良好・主寝室にウォークインクローゼット付き・バルコニー2か所で開放的・横浜線淵野辺駅まで平坦で自転車でも通えます |
Features pickup 特徴ピックアップ | | Corresponding to the flat-35S / 2 along the line more accessible / Super close / Facing south / System kitchen / Yang per good / All room storage / Flat to the station / Siemens south road / A quiet residential area / Japanese-style room / Shaping land / Washbasin with shower / Face-to-face kitchen / Toilet 2 places / 2-story / South balcony / Double-glazing / Otobasu / Warm water washing toilet seat / Underfloor Storage / The window in the bathroom / TV monitor interphone / Walk-in closet / Water filter / City gas / BS ・ CS ・ CATV / Flat terrain フラット35Sに対応 /2沿線以上利用可 /スーパーが近い /南向き /システムキッチン /陽当り良好 /全居室収納 /駅まで平坦 /南側道路面す /閑静な住宅地 /和室 /整形地 /シャワー付洗面台 /対面式キッチン /トイレ2ヶ所 /2階建 /南面バルコニー /複層ガラス /オートバス /温水洗浄便座 /床下収納 /浴室に窓 /TVモニタ付インターホン /ウォークインクロゼット /浄水器 /都市ガス /BS・CS・CATV /平坦地 | Event information イベント情報 | | Local sales meetings (please visitors to direct local) schedule / Every Saturday, Sunday and public holidays time / 10:00 ~ 17:00 現地販売会(直接現地へご来場ください)日程/毎週土日祝時間/10:00 ~ 17:00 | Property name 物件名 | | Libre Garden Sagamihara, Chuo-ku, Hikarigaoka 1-chome リーブルガーデン相模原市中央区光が丘1丁目 | Price 価格 | | 33,800,000 yen 3380万円 | Floor plan 間取り | | 4LDK 4LDK | Units sold 販売戸数 | | 2 units 2戸 | Total units 総戸数 | | 2 units 2戸 | Land area 土地面積 | | 97.8 sq m 97.8m2 | Building area 建物面積 | | 93.56 sq m 93.56m2 | Completion date 完成時期(築年月) | | December 2013 2013年12月 | Address 住所 | | Sagamihara City, Kanagawa Prefecture, Chuo-ku, Hikarigaoka 1-5225 No. 27, 76 神奈川県相模原市中央区光が丘1-5225番27、76 | Traffic 交通 | | JR Yokohama Line "Fuchinobe" bus 7 minutes Chiyoda walk 4 minutes JR Yokohama Line "Yabe" walk 29 minutes JR Sagami Line "upper groove" walk 21 minutes JR横浜線「淵野辺」バス7分千代田歩4分 JR横浜線「矢部」歩29分 JR相模線「上溝」歩21分
| Related links 関連リンク | | [Related Sites of this company] 【この会社の関連サイト】 | Contact お問い合せ先 | | Century 21 (Ltd.) Nexus TEL: 0800-601-4731 [Toll free] mobile phone ・ Also available from PHS Caller ID is not notified Please contact the "saw SUUMO (Sumo)" If it does not lead, If the real estate company センチュリー21(株)ネクサスTEL:0800-601-4731【通話料無料】携帯電話・PHSからもご利用いただけます 発信者番号は通知されません 「SUUMO(スーモ)を見た」と問い合わせください つながらない方、不動産会社の方は
| Most price range 最多価格帯 | | 33 million yen (2 units) 3300万円台(2戸) | Building coverage, floor area ratio 建ぺい率・容積率 | | Kenpei rate: 50%, Volume ratio: 100% 建ペい率:50%、容積率:100% | Time residents 入居時期 | | Consultation 相談 | Land of the right form 土地の権利形態 | | Ownership 所有権 | Structure and method of construction 構造・工法 | | Wooden 2-story 木造2階建 | Use district 用途地域 | | One low-rise 1種低層 | Land category 地目 | | Residential land 宅地 | Other limitations その他制限事項 | | Regulations have by the Landscape Act, Quasi-fire zones 景観法による規制有、準防火地域 | Overview and notices その他概要・特記事項 | | Building confirmation number: the H25 building certification No. KBI03287, The H25 confirmation building No. KBI03288 建築確認番号:第H25確認建築KBI03287号、第H25確認建築KBI03288号 | Company profile 会社概要 | | <Marketing alliance (agency)> Governor of Kanagawa Prefecture (3) No. Century 21 (Ltd.) Nexus Yubinbango252-0344 Sagamihara City, Kanagawa Prefecture, Minami-ku, the first 023,130 Kobuchi 2-3-20 <販売提携(代理)>神奈川県知事(3)第023130号センチュリー21(株)ネクサス〒252-0344 神奈川県相模原市南区古淵2-3-20 |
Rendering (appearance)完成予想図(外観)  South side elevational view
南側立面図
 East side elevational view
東側立面図
Same specifications photo (kitchen)同仕様写真(キッチン)  Kitchen same specifications
キッチン同仕様
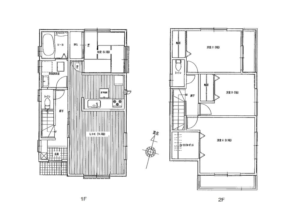
Floor plan間取り図  (1 Building), Price 33,800,000 yen, 4LDK, Land area 97.8 sq m , Building area 93.56 sq m
(1号棟)、価格3380万円、4LDK、土地面積97.8m2、建物面積93.56m2
Kitchenキッチン  Stove same specifications
コンロ同仕様
Wash basin, toilet洗面台・洗面所  Washbasin same specifications
洗面台同仕様
Construction ・ Construction method ・ specification構造・工法・仕様  The moisture of the wall inside the body can be efficiently released into the outside air, To suppress the internal condensation, You can improve the durability. In the summer, The ventilation of the air layer, You can also expect the thermal barrier effect.
壁体内の湿気を効率よく外気に放出でき、内部結露を抑制して、耐久性を向上させることができます。夏季には、通気層内の通風により、遮熱効果も期待できます。
Power generation ・ Hot water equipment発電・温水設備  Friendly energy-saving water heaters in households in the environment.
環境にも家計にも優しい省エネ給湯器。
Primary school小学校  307m to Sagamihara Municipal Namiki Elementary School
相模原市立並木小学校まで307m
Same specifications photos (Other introspection)同仕様写真(その他内観)  Handrail same specifications
手すり同仕様
 The entire compartment Figure
全体区画図
Construction ・ Construction method ・ specification構造・工法・仕様  Foundation ・ Foundation ・ Select the right man in the right place seismic hardware for each joint, such as pillars, Firmly Tightened the structure. Prevent the building of distortion and collapse from the shaking caused by an earthquake, It has extended the durability of the whole house.
基礎・土台・柱など接合部ごとに適材適所な耐震金物を選び、構造体をしっかりと緊結します。地震による揺れから建物のゆがみや倒壊を防ぎ、住まい全体の耐久性を高めています。
Cooling and heating ・ Air conditioning冷暖房・空調設備  Clean 24 hours a discharge of air supply air and dirt in the air, It is also effective in the suppression of condensation and mold because the plan to carry out.
きれいな空気の給気と汚れた空気の排出を24時間、計画的に行うので結露やカビの抑制にも効果的です。
Junior high school中学校  1022m to Sagamihara Municipal Yasaka Junior High School
相模原市立弥栄中学校まで1022m
Construction ・ Construction method ・ specification構造・工法・仕様  Door that has been adopted in this property is the thermal insulation specifications to frame.
当物件で採用しているドアは枠まで断熱仕様です。
Supermarketスーパー  Until the OK store 400m
OKストアまで400m
Drug storeドラッグストア  San drag 451m to Sagamihara Namiki shop
サンドラッグ相模原並木店まで451m
Convenience storeコンビニ  308m to Seven-Eleven Sagamihara Hikarigaoka 1-chome
セブンイレブン相模原光が丘1丁目店まで308m
Hospital病院  Nashimoto 157m to the hospital
梨本病院まで157m
Bank銀行  Higashi-Nippon Bank, Limited 424m to Sagamihara Branch
東日本銀行相模原支店まで424m
Station駅  2200m until JR Fuchinobe Station
JR淵野辺駅まで2200m
Park公園  Hikarigaoka 160m up to 1-chome park
光が丘1丁目公園まで160m
Location
|