New Homes » Kanto » Kanagawa Prefecture » Sagamihara, Chuo-ku
 
| | Sagamihara City, Kanagawa Prefecture, Chuo-ku, 神奈川県相模原市中央区 |
| JR Yokohama Line "Fuchinobe" 10 minutes Aoba children tatemae walk 7 minutes by bus JR横浜線「淵野辺」バス10分青葉児童館前歩7分 |
| Leafy quiet residential area ・ Within a 6-minute walk elementary and junior high schools, Supermarket ・ Fuchinobe park walk about 10 minutes, Has been enhanced living environment. 緑豊かな閑静な住宅街・小中学校徒歩6分以内、スーパー・淵野辺公園徒歩約10分、生活環境充実しています。 |
| All rooms with storage, You can use spacious a clean living space. Zenshitsuminami bright you live of facing. Elementary and junior high school is a 6-minute walk galaxy Arena (Pool ・ Ice skating) are also near Fuchinobe park there is a, Large Coop (Miakuchina) are also available, It is a life enhancement convenient location. 全室収納付で、スッキリ住空間を広々使えます。全室南向きの明るいお住まいです。小中学校が徒歩6分銀河アリーナ(プール・アイススケート)がある淵野辺公園も近く、大型のコープ(ミアクチーナ)もあり、生活充実便利な立地です。 |
Features pickup 特徴ピックアップ | | Design house performance with evaluation / Immediate Available / System kitchen / All room storage / Shaping land / Zenshitsuminami direction / TV monitor interphone / City gas 設計住宅性能評価付 /即入居可 /システムキッチン /全居室収納 /整形地 /全室南向き /TVモニタ付インターホン /都市ガス | Price 価格 | | 26,800,000 yen 2680万円 | Floor plan 間取り | | 4LDK 4LDK | Units sold 販売戸数 | | 1 units 1戸 | Land area 土地面積 | | 115.27 sq m (registration) 115.27m2(登記) | Building area 建物面積 | | 94.4 sq m (registration) 94.4m2(登記) | Driveway burden-road 私道負担・道路 | | Nothing, Northeast 5m width 無、北東5m幅 | Completion date 完成時期(築年月) | | September 2013 2013年9月 | Address 住所 | | Sagamihara City, Kanagawa Prefecture, Chuo-ku, Midorigaoka 2 神奈川県相模原市中央区緑が丘2 | Traffic 交通 | | JR Yokohama Line "Fuchinobe" 10 minutes Aoba children tatemae walk 7 minutes by bus JR横浜線「淵野辺」バス10分青葉児童館前歩7分
| Related links 関連リンク | | [Related Sites of this company] 【この会社の関連サイト】 | Contact お問い合せ先 | | TEL: 0800-603-2572 [Toll free] mobile phone ・ Also available from PHS Caller ID is not notified Please contact the "saw SUUMO (Sumo)" If it does not lead, If the real estate company TEL:0800-603-2572【通話料無料】携帯電話・PHSからもご利用いただけます 発信者番号は通知されません 「SUUMO(スーモ)を見た」と問い合わせください つながらない方、不動産会社の方は
| Building coverage, floor area ratio 建ぺい率・容積率 | | Fifty percent ・ Hundred percent 50%・100% | Time residents 入居時期 | | Consultation 相談 | Land of the right form 土地の権利形態 | | Ownership 所有権 | Structure and method of construction 構造・工法 | | Wooden 2-story 木造2階建 | Use district 用途地域 | | One low-rise 1種低層 | Overview and notices その他概要・特記事項 | | Facilities: Public Water Supply, This sewage, City gas, Parking: car space 設備:公営水道、本下水、都市ガス、駐車場:カースペース | Company profile 会社概要 | | <Mediation> Governor of Kanagawa Prefecture (5) Article 021528 No. Seiken Home Co., Ltd. Kobuchi shop Yubinbango252-0331 Sagamihara City, Kanagawa Prefecture, Minami-ku, Onodai 2-6-15 <仲介>神奈川県知事(5)第021528号セイケンホーム(株)古淵店〒252-0331 神奈川県相模原市南区大野台2-6-15 |
 Local appearance photo
現地外観写真
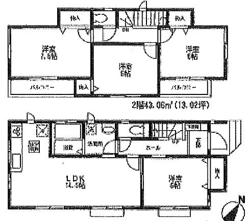
Floor plan間取り図  26,800,000 yen, 4LDK, Land area 115.27 sq m , Building area 94.4 sq m
2680万円、4LDK、土地面積115.27m2、建物面積94.4m2
Compartment figure区画図  26,800,000 yen, 4LDK, Land area 115.27 sq m , Building area 94.4 sq m
2680万円、4LDK、土地面積115.27m2、建物面積94.4m2
 Living
リビング
 Bathroom
浴室
 Kitchen
キッチン
 Non-living room
リビング以外の居室
Primary school小学校  500m to elementary school
小学校まで500m
Junior high school中学校  500m to junior high school
中学校まで500m
Supermarketスーパー  800m Co-op until the super Kanagawa Miakuchina
スーパーまで800m コープかながわミアクチーナ
Park公園  500m Fuchinobe park to the park
公園まで500m 淵野辺公園
 500m Fuchinobe park to the park
公園まで500m 淵野辺公園
 500m to the park Fuchinobe park galaxy Arena
公園まで500m 淵野辺公園銀河アリーナ
Location
|