New Homes » Kanto » Kanagawa Prefecture » Sagamihara, Chuo-ku
 
| | Sagamihara City, Kanagawa Prefecture, Chuo-ku, 神奈川県相模原市中央区 |
| JR Yokohama Line "Fuchinobe" walk 16 minutes JR横浜線「淵野辺」歩16分 |
| [Present] now, To customers all contact, Popular soft fluffy HAPPY WAON pillow gift! ! 【プレゼント】今なら、お問い合わせいただいたお客さま全員に、人気のふんわりやわらかHAPPY WAON抱き枕プレゼント!! |
| ■ Full interior equipment ■ Exterior wall siding ■充実した内装設備 ■外壁サイディング |
Features pickup 特徴ピックアップ | | System kitchen / Bathroom Dryer / All room storage / Japanese-style room / Shaping land / Washbasin with shower / Face-to-face kitchen / Security enhancement / Toilet 2 places / South balcony / Double-glazing / Warm water washing toilet seat / The window in the bathroom / TV monitor interphone / Southwestward / Storeroom / All rooms are two-sided lighting / Readjustment land within システムキッチン /浴室乾燥機 /全居室収納 /和室 /整形地 /シャワー付洗面台 /対面式キッチン /セキュリティ充実 /トイレ2ヶ所 /南面バルコニー /複層ガラス /温水洗浄便座 /浴室に窓 /TVモニタ付インターホン /南西向き /納戸 /全室2面採光 /区画整理地内 | Price 価格 | | 31,800,000 yen 3180万円 | Floor plan 間取り | | 4LDK + S (storeroom) 4LDK+S(納戸) | Units sold 販売戸数 | | 1 units 1戸 | Total units 総戸数 | | 1 units 1戸 | Land area 土地面積 | | 100.05 sq m 100.05m2 | Building area 建物面積 | | 93.95 sq m 93.95m2 | Driveway burden-road 私道負担・道路 | | Nothing, Northwest 6m width 無、北西6m幅 | Completion date 完成時期(築年月) | | October 2013 2013年10月 | Address 住所 | | Sagamihara City, Kanagawa Prefecture, Chuo-ku, Yoshinodai 1 神奈川県相模原市中央区由野台1 | Traffic 交通 | | JR Yokohama Line "Fuchinobe" walk 16 minutes JR Yokohama Line "Yabe" walk 23 minutes JR Yokohama Line "Yabe" walk 23 minutes JR横浜線「淵野辺」歩16分 JR横浜線「矢部」歩23分 JR横浜線「矢部」歩23分
| Related links 関連リンク | | [Related Sites of this company] 【この会社の関連サイト】 | Contact お問い合せ先 | | TEL: 0800-805-3596 [Toll free] mobile phone ・ Also available from PHS Caller ID is not notified Please contact the "saw SUUMO (Sumo)" If it does not lead, If the real estate company TEL:0800-805-3596【通話料無料】携帯電話・PHSからもご利用いただけます 発信者番号は通知されません 「SUUMO(スーモ)を見た」と問い合わせください つながらない方、不動産会社の方は
| Building coverage, floor area ratio 建ぺい率・容積率 | | Fifty percent ・ Hundred percent 50%・100% | Time residents 入居時期 | | Consultation 相談 | Land of the right form 土地の権利形態 | | Ownership 所有権 | Structure and method of construction 構造・工法 | | Wooden 2-story 木造2階建 | Use district 用途地域 | | One low-rise 1種低層 | Other limitations その他制限事項 | | Quasi-fire zones 準防火地域 | Overview and notices その他概要・特記事項 | | Facilities: Public Water Supply, This sewage, City gas, Building confirmation number: No. H25SHC110474, Parking: car space 設備:公営水道、本下水、都市ガス、建築確認番号:第H25SHC110474号、駐車場:カースペース | Company profile 会社概要 | | <Mediation> Minister of Land, Infrastructure and Transport (1) the first 008,536 No. ion housing (Ltd.) Four Members Yubinbango104-0033, Chuo-ku, Tokyo Shinkawa 1-24-12 <仲介>国土交通大臣(1)第008536号イオンハウジング(株)フォーメンバーズ〒104-0033 東京都中央区新川1-24-12 |
Local appearance photo現地外観写真  The appearance of the October 2013 shooting
2013年10月撮影の外観
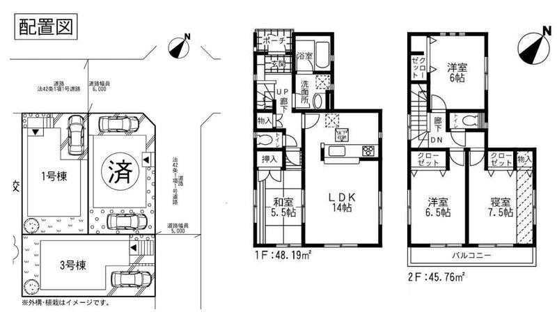
Floor plan間取り図  31,800,000 yen, 4LDK+S, Land area 100.05 sq m , Building area 93.95 sq m floor plan
3180万円、4LDK+S、土地面積100.05m2、建物面積93.95m2 間取り図
Livingリビング  LDK14 Pledge, It is a bright room with two-sided lighting.
LDK14帖、2面採光で明るいお部屋です。
 Whole of introspection of living
リビングの全体の内観
Bathroom浴室  Windowed bathroom
窓付きバスルーム
Kitchenキッチン  Popular system kitchen is good storage
人気のシステムキッチンは収納上手
Non-living roomリビング以外の居室  Japanese-style room 5.5 quires, It is a calm space.
和室5.5帖、落ち着いた空間です。
Entrance玄関  Interior visible from the front door
玄関から見える室内
Wash basin, toilet洗面台・洗面所  Independent wash basin
独立洗面台
Receipt収納  Western-style 6.5 Pledge of storage space
洋室6.5帖の収納スペース
Toiletトイレ  Washlet toilet
ウォシュレット付トイレ
Otherその他  Sagamihara Municipal Republic of junior high school
相模原市立共和中学校
Non-living roomリビング以外の居室  Western-style 6 Pledge, Storage space is also large
洋室6帖、収納スペースも大きめ
Receipt収納  Western-style 7.5 Pledge of storage space
洋室7.5帖の収納スペース
Toiletトイレ  Second floor toilet
2階トイレ
Otherその他  Takane nursery
高根保育園
Non-living roomリビング以外の居室  Western-style 6 quires introspection, It is a two-sided lighting.
洋室6帖の内観、2面採光です。
Otherその他  Galaxy North Park
銀河北公園
Non-living roomリビング以外の居室  Introspection of Western-style 7.5 quires
洋室7.5帖の内観
Otherその他  Vivace Republic shop
ビバーチェ共和店
Location
|