New Homes » Kanto » Kanagawa Prefecture » Sagamihara, Chuo-ku
 
| | Sagamihara City, Kanagawa Prefecture, Chuo-ku, 神奈川県相模原市中央区 |
| JR Sagami Line "Vanden" walk 7 minutes JR相模線「番田」歩7分 |
| Two newly built subdivision all building car space, Walk to the station area 新築分譲全棟カースペース2台、駅まで徒歩圏 |
| Shopping is also a convenient environment in Vanden Station 7-minute walk. The outer wall fire protection ・ Thermal insulation properties ・ We are using an excellent sound insulation Asahi Kasei power board 37 mm. Upper groove Minami Elementary School Elementary School 600m Upper groove south junior high 1100m Super Sanwa Vanden shop 900m Upper groove nursery 1000m Matsuzawa clinic 850m Construction housing performance with evaluation, Design house performance with evaluation, Long-term high-quality housing, Corresponding to the flat-35S, Pre-ground survey, Vibration Control ・ Seismic isolation ・ Earthquake resistant, Seismic fit, Parking two Allowed, See the mountain, System kitchen, Bathroom Dryer, LDK15 tatami mats or moreese-style room, Washbasin with shower, Face-to-face kitchen, Toilet 2 places, 2-story, Double-glazing, Warm water washing toilet seat, Underfloor Storage, Dish washing dryer, Water filter, City gas, Development subdivision in, Readjustment land within 番田駅徒歩7分で買い物も便利な環境です。外壁は防火性・断熱性・遮音性に優れた旭化成パワーボード37ミリ使用しています。上溝南小学校小学校600m 上溝南中学校中学校1100m スーパー三和番田店900m 上溝保育園1000m まつざわクリニック850m 建設住宅性能評価付、設計住宅性能評価付、長期優良住宅、フラット35Sに対応、地盤調査済、制震・免震・耐震、耐震適合、駐車2台可、山が見える、システムキッチン、浴室乾燥機、LDK15畳以上、和室、シャワー付洗面台、対面式キッチン、トイレ2ヶ所、2階建、複層ガラス、温水洗浄便座、床下収納、食器洗乾燥機、浄水器、都市ガス、開発分譲地内、区画整理地内 |
Features pickup 特徴ピックアップ | | Construction housing performance with evaluation / Design house performance with evaluation / Long-term high-quality housing / Corresponding to the flat-35S / Pre-ground survey / Vibration Control ・ Seismic isolation ・ Earthquake resistant / Seismic fit / Parking two Allowed / See the mountain / System kitchen / Bathroom Dryer / LDK15 tatami mats or more / Japanese-style room / Washbasin with shower / Face-to-face kitchen / Toilet 2 places / 2-story / Double-glazing / Warm water washing toilet seat / Underfloor Storage / Dish washing dryer / Water filter / City gas / Development subdivision in / Readjustment land within 建設住宅性能評価付 /設計住宅性能評価付 /長期優良住宅 /フラット35Sに対応 /地盤調査済 /制震・免震・耐震 /耐震適合 /駐車2台可 /山が見える /システムキッチン /浴室乾燥機 /LDK15畳以上 /和室 /シャワー付洗面台 /対面式キッチン /トイレ2ヶ所 /2階建 /複層ガラス /温水洗浄便座 /床下収納 /食器洗乾燥機 /浄水器 /都市ガス /開発分譲地内 /区画整理地内 | Price 価格 | | 25,300,000 yen ~ 28,200,000 yen 2530万円 ~ 2820万円 | Floor plan 間取り | | 4LDK 4LDK | Units sold 販売戸数 | | 6 units 6戸 | Land area 土地面積 | | 110.19 sq m ~ 120.55 sq m (registration) 110.19m2 ~ 120.55m2(登記) | Building area 建物面積 | | 98.95 sq m ~ 99.57 sq m (measured) 98.95m2 ~ 99.57m2(実測) | Driveway burden-road 私道負担・道路 | | Road width: 4.5m 道路幅:4.5m | Completion date 完成時期(築年月) | | January 2014 will 2014年1月予定 | Address 住所 | | Sagamihara City, Kanagawa Prefecture, Chuo-ku, the upper groove 神奈川県相模原市中央区上溝 | Traffic 交通 | | JR Sagami Line "Vanden" walk 7 minutes JR Yokohama Line "Fuchinobe" bus 13 minutes Hikarigaoka walk 28 minutes Odawara Line Odakyu "Odakyusagamihara" 25 minutes Midorigaoka 1-chome, walk 27 minutes by bus JR相模線「番田」歩7分 JR横浜線「淵野辺」バス13分光が丘歩28分 小田急小田原線「小田急相模原」バス25分緑が丘1丁目歩27分
| Person in charge 担当者より | | Personnel Ikko Shibata Age: 30 Daigyokai Experience: My name is two years residence in the square of Shibata. But it is a young person, I would like to help you find the best of my home along with everyone. We strive every day we will strive to be of service to you of everyone. Thank you. 担当者柴田一行年齢:30代業界経験:2年住まいの広場の柴田と申します。若輩者ですが、皆様と一緒に最高のマイホーム探しをお手伝いしていきたいと思っています。日々努力し皆様のお役に立てるよう努めていきます。よろしくお願い致します。 | Contact お問い合せ先 | | TEL: 0800-603-8480 [Toll free] mobile phone ・ Also available from PHS Caller ID is not notified Please contact the "saw SUUMO (Sumo)" If it does not lead, If the real estate company TEL:0800-603-8480【通話料無料】携帯電話・PHSからもご利用いただけます 発信者番号は通知されません 「SUUMO(スーモ)を見た」と問い合わせください つながらない方、不動産会社の方は
| Most price range 最多価格帯 | | 26 million yen ・ 27 million yen (each 2 units) 2600万円台・2700万円台(各2戸) | Building coverage, floor area ratio 建ぺい率・容積率 | | Kenpei rate: 60%, Volume ratio: 180% 建ペい率:60%、容積率:180% | Time residents 入居時期 | | Consultation 相談 | Land of the right form 土地の権利形態 | | Ownership 所有権 | Structure and method of construction 構造・工法 | | Wooden 2-story 木造2階建 | Use district 用途地域 | | Two mid-high, One dwelling 2種中高、1種住居 | Other limitations その他制限事項 | | Irregular land 不整形地 | Overview and notices その他概要・特記事項 | | Contact: Ikko Shibata, Building confirmation number: 02238 担当者:柴田一行、建築確認番号:02238 | Company profile 会社概要 | | <Mediation> Kanagawa Governor (2) Article 026 475 issue (stock) residence of square HOMESyubinbango252-0231 Sagamihara, Kanagawa Prefecture, Chuo-ku, Sagamihara 5-1-2A <仲介>神奈川県知事(2)第026475号(株)住まいの広場HOMES〒252-0231 神奈川県相模原市中央区相模原5-1-2A |
Local photos, including front road前面道路含む現地写真  Shopping is also a convenient environment in Vanden Station 7-minute walk. The outer wall fire protection ・ Thermal insulation properties ・ We are using an excellent sound insulation Asahi Kasei power board 37 mm.
番田駅徒歩7分で買い物も便利な環境です。外壁は防火性・断熱性・遮音性に優れた旭化成パワーボード37ミリ使用しています。
Same specifications photos (living)同仕様写真(リビング)  All room pair glass, Shutter shutters standard
全居室ペアガラス、シャッター雨戸標準
Same specifications photo (kitchen)同仕様写真(キッチン)  Artificial marble counter ・ Shower switching washing with water purifier
人工大理石カウンター・浄水器付シャワー切り替え水洗
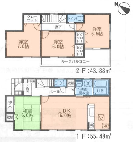
Floor plan間取り図  (6), Price 26,300,000 yen, 4LDK, Land area 120.24 sq m , Building area 99.36 sq m
(6)、価格2630万円、4LDK、土地面積120.24m2、建物面積99.36m2
 Local appearance photo
現地外観写真
Same specifications photo (bathroom)同仕様写真(浴室)  Barrier-free 1 pyeong type ・ Automatic hot water filling reheating with warmth
バリヤフリー1坪タイプ・自動湯張り追い炊き保温付
 Local photos, including front road
前面道路含む現地写真
Supermarketスーパー  900m to Super Sanwa Vanden shop
スーパー三和番田店まで900m
 Same specifications photos (Other introspection)
同仕様写真(その他内観)
 The entire compartment Figure
全体区画図
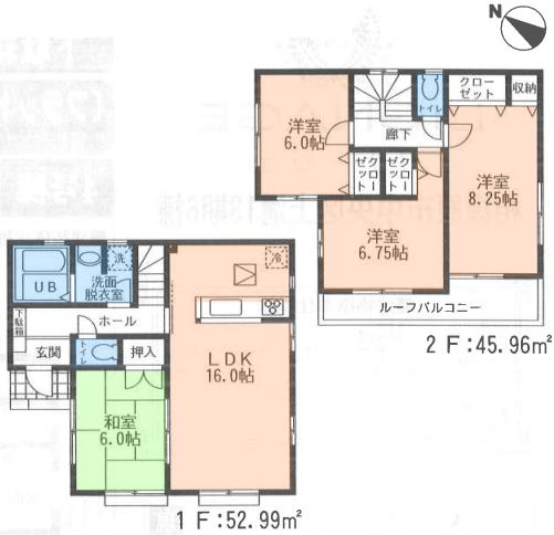
Floor plan間取り図  (5), Price 27.3 million yen, 4LDK, Land area 120.23 sq m , Building area 99.36 sq m
(5)、価格2730万円、4LDK、土地面積120.23m2、建物面積99.36m2
 Local appearance photo
現地外観写真
 Local photos, including front road
前面道路含む現地写真
Kindergarten ・ Nursery幼稚園・保育園  Upper groove 1000m to nursery school
上溝保育園まで1000m
 Same specifications photos (Other introspection)
同仕様写真(その他内観)
Floor plan間取り図  (4), Price 25,300,000 yen, 4LDK, Land area 117.14 sq m , Building area 98.95 sq m
(4)、価格2530万円、4LDK、土地面積117.14m2、建物面積98.95m2
 Local appearance photo
現地外観写真
 Local photos, including front road
前面道路含む現地写真
Hospital病院  Matsuzawa 850m to clinic
まつざわクリニックまで850m
 Same specifications photos (Other introspection)
同仕様写真(その他内観)
Floor plan間取り図  (3), Price 26,800,000 yen, 4LDK, Land area 110.54 sq m , Building area 98.95 sq m
(3)、価格2680万円、4LDK、土地面積110.54m2、建物面積98.95m2
Local photos, including front road前面道路含む現地写真  Vanden Station 7 minutes walk
番田駅徒歩7分
Location
|