New Homes » Kanto » Kanagawa Prefecture » Sagamihara, Chuo-ku
 
| | Sagamihara City, Kanagawa Prefecture, Chuo-ku, 神奈川県相模原市中央区 |
| JR Yokohama Line "Fuchinobe" walk 16 minutes JR横浜線「淵野辺」歩16分 |
| ■ Station walk 16 minutes ■ Car space 2 Taiyu ■ All room storage Yes +2 face lighting ■ Yasaka Elementary School ・ Yasaka Junior High School ■駅徒歩16分■カースペース2台有■全居室収納有+2面採光■弥栄小学校・弥栄中学校 |
| Parking two Allowed, System kitchen, All room storage, All rooms are two-sided lighting, Underfloor Storage, South balcony, Facing south, Or more before road 6m, Face-to-face kitchen, Toilet 2 places, 2-story, The window in the bathroom, City gas 駐車2台可、システムキッチン、全居室収納、全室2面採光、床下収納、南面バルコニー、南向き、前道6m以上、対面式キッチン、トイレ2ヶ所、2階建、浴室に窓、都市ガス |
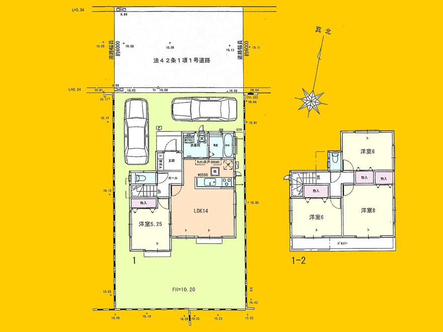
Features pickup 特徴ピックアップ | | Parking two Allowed / Facing south / System kitchen / All room storage / Or more before road 6m / Face-to-face kitchen / Toilet 2 places / 2-story / South balcony / Underfloor Storage / The window in the bathroom / City gas / All rooms are two-sided lighting 駐車2台可 /南向き /システムキッチン /全居室収納 /前道6m以上 /対面式キッチン /トイレ2ヶ所 /2階建 /南面バルコニー /床下収納 /浴室に窓 /都市ガス /全室2面採光 | Price 価格 | | 37,800,000 yen 3780万円 | Floor plan 間取り | | 4LDK 4LDK | Units sold 販売戸数 | | 1 units 1戸 | Total units 総戸数 | | 1 units 1戸 | Land area 土地面積 | | 134.73 sq m (measured) 134.73m2(実測) | Building area 建物面積 | | 92.32 sq m (measured) 92.32m2(実測) | Driveway burden-road 私道負担・道路 | | Nothing, North 6m width 無、北6m幅 | Completion date 完成時期(築年月) | | March 2014 2014年3月 | Address 住所 | | Sagamihara City, Kanagawa Prefecture, Chuo-ku Aioi 3 神奈川県相模原市中央区相生3 | Traffic 交通 | | JR Yokohama Line "Fuchinobe" walk 16 minutes JR Yokohama Line "Yabe" walk 21 minutes JR Sagami Line "upper groove" walk 29 minutes JR横浜線「淵野辺」歩16分 JR横浜線「矢部」歩21分 JR相模線「上溝」歩29分
| Related links 関連リンク | | [Related Sites of this company] 【この会社の関連サイト】 | Person in charge 担当者より | | Person in charge of real-estate and building Kudo NaoHomare Age: 30 Daigyokai experience: you will be dating up to 10 years you are going to convince. 担当者宅建工藤 尚誉年齢:30代業界経験:10年お客様が納得されるまでお付き合いさせていただきます。 | Contact お問い合せ先 | | TEL: 0800-603-8081 [Toll free] mobile phone ・ Also available from PHS Caller ID is not notified Please contact the "saw SUUMO (Sumo)" If it does not lead, If the real estate company TEL:0800-603-8081【通話料無料】携帯電話・PHSからもご利用いただけます 発信者番号は通知されません 「SUUMO(スーモ)を見た」と問い合わせください つながらない方、不動産会社の方は
| Building coverage, floor area ratio 建ぺい率・容積率 | | 60% ・ 200% 60%・200% | Time residents 入居時期 | | Consultation 相談 | Land of the right form 土地の権利形態 | | Ownership 所有権 | Structure and method of construction 構造・工法 | | Wooden 2-story 木造2階建 | Use district 用途地域 | | One middle and high 1種中高 | Other limitations その他制限事項 | | Quasi-fire zones 準防火地域 | Overview and notices その他概要・特記事項 | | Contact: Kudo NaoHomare, Facilities: Public Water Supply, This sewage, City gas, Building confirmation number: HTA13-07098-1, Parking: car space 担当者:工藤 尚誉、設備:公営水道、本下水、都市ガス、建築確認番号:HTA13-07098-1、駐車場:カースペース | Company profile 会社概要 | | <Mediation> Minister of Land, Infrastructure and Transport (1) the first 008,178 No. Century 21 living style (Ltd.) Machida Yubinbango194-0022 Tokyo Machida Morino 4-15-12 <仲介>国土交通大臣(1)第008178号センチュリー21リビングスタイル(株)町田店〒194-0022 東京都町田市森野4-15-12 |
Floor plan間取り図  37,800,000 yen, 4LDK, Land area 134.73 sq m , Building area 92.32 sq m
3780万円、4LDK、土地面積134.73m2、建物面積92.32m2
 Local appearance photo
現地外観写真
 Local photos, including front road
前面道路含む現地写真
 Local appearance photo
現地外観写真
 Local photos, including front road
前面道路含む現地写真
Supermarketスーパー  Until sanwa Namiki shop 612m
sanwa並木店まで612m
 Local appearance photo
現地外観写真
 Local photos, including front road
前面道路含む現地写真
 819m to the Co-op Kanagawa Miakuchina Namiki Aoba shop
コープかながわミアクチーナ並木あおば店まで819m
 Yaoko Co., Ltd. 1237m to Sagamihara Kanumadai shop
ヤオコー相模原鹿沼台店まで1237m
Junior high school中学校  812m to Sagamihara Municipal Yasaka Junior High School
相模原市立弥栄中学校まで812m
Primary school小学校  660m to Sagamihara Municipal Yasaka Elementary School
相模原市立弥栄小学校まで660m
Kindergarten ・ Nursery幼稚園・保育園  653m to Chiyoda nursery
千代田保育園まで653m
 708m until Yayoi kindergarten
弥生幼稚園まで708m
Library図書館  1271m to Sagamihara City Library
相模原市立図書館まで1271m
Park公園  1011m to Kanuma park
鹿沼公園まで1011m
Location
|