New Homes » Kanto » Kanagawa Prefecture » Sagamihara, Chuo-ku
 
| | Sagamihara City, Kanagawa Prefecture, Chuo-ku, 神奈川県相模原市中央区 |
| JR Yokohama Line "Sagamihara" walk 10 minutes JR横浜線「相模原」歩10分 |
| ■ JR Yokohama Line "Sagamihara" station a 10-minute walk ・ Near the commercial area life convenient ■ Near housework flow line smooth water around and the veranda ■ Fully equipped ・ Flat 35S corresponding ■ Koyo Elementary School ・ Koyama Junior High School ■JR横浜線「相模原」駅徒歩10分・商業地域近く生活便利■水回りとベランダが近く家事動線スムーズ■設備充実・フラット35S対応■向陽小学校・小山中学校 |
| Super close, Corresponding to the flat-35S, It is close to the city, System kitchen, Bathroom Dryer, All room storage, Mist sauna, Washbasin with shower, Double-glazing, Warm water washing toilet seat, TV with bathroom, The window in the bathroom, TV monitor interphone, Dish washing dryer, Water filter, Three-story or more, All rooms are two-sided lighting スーパーが近い、フラット35Sに対応、市街地が近い、システムキッチン、浴室乾燥機、全居室収納、ミストサウナ、シャワー付洗面台、複層ガラス、温水洗浄便座、TV付浴室、浴室に窓、TVモニタ付インターホン、食器洗乾燥機、浄水器、3階建以上、全室2面採光 |
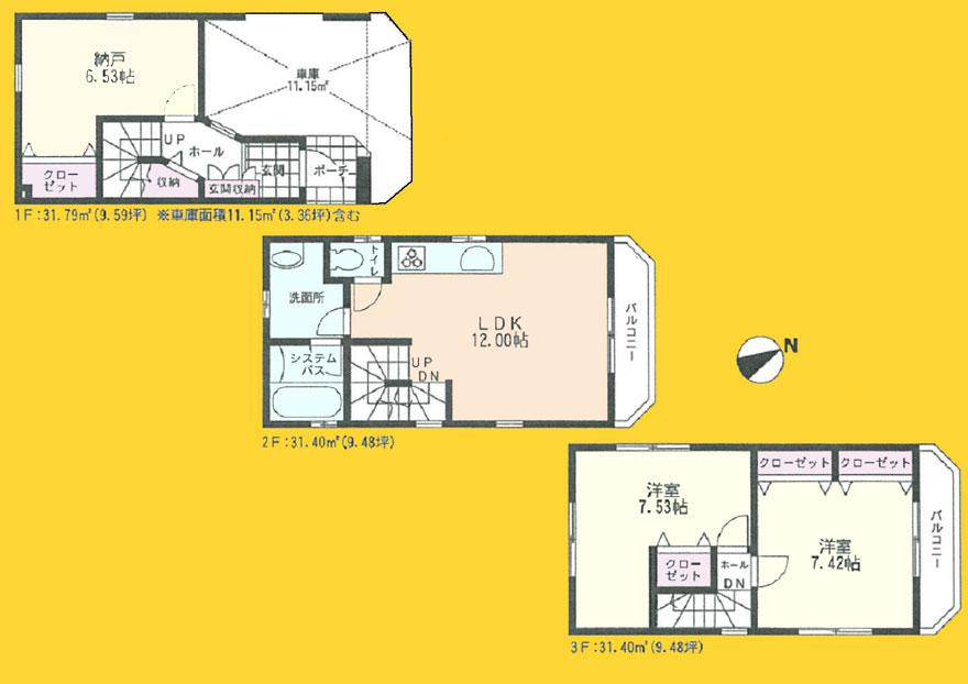
Features pickup 特徴ピックアップ | | Corresponding to the flat-35S / Super close / It is close to the city / System kitchen / Bathroom Dryer / All room storage / Mist sauna / Washbasin with shower / Double-glazing / Warm water washing toilet seat / TV with bathroom / The window in the bathroom / TV monitor interphone / Dish washing dryer / Water filter / Three-story or more / All rooms are two-sided lighting フラット35Sに対応 /スーパーが近い /市街地が近い /システムキッチン /浴室乾燥機 /全居室収納 /ミストサウナ /シャワー付洗面台 /複層ガラス /温水洗浄便座 /TV付浴室 /浴室に窓 /TVモニタ付インターホン /食器洗乾燥機 /浄水器 /3階建以上 /全室2面採光 | Price 価格 | | 27.5 million yen 2750万円 | Floor plan 間取り | | 2LDK + S (storeroom) 2LDK+S(納戸) | Units sold 販売戸数 | | 1 units 1戸 | Land area 土地面積 | | 52.4 sq m 52.4m2 | Building area 建物面積 | | 94.59 sq m , Among the first floor garage 11.15 sq m 94.59m2、うち1階車庫11.15m2 | Driveway burden-road 私道負担・道路 | | Nothing, Northeast 4m width 無、北東4m幅 | Completion date 完成時期(築年月) | | June 2014 2014年6月 | Address 住所 | | Sagamihara City, Kanagawa Prefecture, Chuo-ku, Hikawa-cho 神奈川県相模原市中央区氷川町 | Traffic 交通 | | JR Yokohama Line "Sagamihara" walk 10 minutes JR Sagami Line "Minamihashimoto" walk 18 minutes Keio Sagamihara Line "Tamasakai" walk 31 minutes JR横浜線「相模原」歩10分 JR相模線「南橋本」歩18分 京王相模原線「多摩境」歩31分
| Related links 関連リンク | | [Related Sites of this company] 【この会社の関連サイト】 | Person in charge 担当者より | | The person in charge Shoji Takayuki Age: 30 Daigyokai experience: The thoroughly five years meet the needs of our customers. 担当者庄司 貴之年齢:30代業界経験:5年とことんお客様のご要望にお応えします。 | Contact お問い合せ先 | | TEL: 0800-603-8081 [Toll free] mobile phone ・ Also available from PHS Caller ID is not notified Please contact the "saw SUUMO (Sumo)" If it does not lead, If the real estate company TEL:0800-603-8081【通話料無料】携帯電話・PHSからもご利用いただけます 発信者番号は通知されません 「SUUMO(スーモ)を見た」と問い合わせください つながらない方、不動産会社の方は
| Building coverage, floor area ratio 建ぺい率・容積率 | | 60% ・ 160% 60%・160% | Time residents 入居時期 | | Consultation 相談 | Land of the right form 土地の権利形態 | | Ownership 所有権 | Structure and method of construction 構造・工法 | | Wooden three-story 木造3階建 | Use district 用途地域 | | Two dwellings 2種住居 | Overview and notices その他概要・特記事項 | | Contact: Shoji Takayuki, Facilities: Public Water Supply, This sewage, Building confirmation number: KBI-SGM13-10-3930, Parking: car space 担当者:庄司 貴之、設備:公営水道、本下水、建築確認番号:KBI-SGM13-10-3930、駐車場:カースペース | Company profile 会社概要 | | <Mediation> Minister of Land, Infrastructure and Transport (1) the first 008,178 No. Century 21 living style (Ltd.) Machida Yubinbango194-0022 Tokyo Machida Morino 4-15-12 <仲介>国土交通大臣(1)第008178号センチュリー21リビングスタイル(株)町田店〒194-0022 東京都町田市森野4-15-12 |
Floor plan間取り図  27.5 million yen, 2LDK + S (storeroom), Land area 52.4 sq m , Building area 94.59 sq m
2750万円、2LDK+S(納戸)、土地面積52.4m2、建物面積94.59m2
Compartment figure区画図  27.5 million yen, 2LDK + S (storeroom), Land area 52.4 sq m , Building area 94.59 sq m
2750万円、2LDK+S(納戸)、土地面積52.4m2、建物面積94.59m2
Local appearance photo現地外観写真  Old house
古家
 Local photos, including front road
前面道路含む現地写真
Supermarketスーパー  740m up to life Sagamihara Station Building shop
ライフ相模原駅ビル店まで740m
 1106m to Daiei Sagamihara store
ダイエー相模原店まで1106m
Home centerホームセンター  Yamada Denki Tecc Land 973m to Sagamihara store
ヤマダ電機テックランド相模原店まで973m
Junior high school中学校  1221m to Sagamihara Municipal Koyama Junior High School
相模原市立小山中学校まで1221m
Primary school小学校  380m to Sagamihara Municipal Koyo Elementary School
相模原市立向陽小学校まで380m
Park公園  1698m to Koyama park
小山公園まで1698m
Location
|