New Homes » Kanto » Kanagawa Prefecture » Sagamihara Green Zone
 
| | Sagamihara City, Kanagawa Prefecture Midori-ku 神奈川県相模原市緑区 |
| JR Yokohama Line "Hashimoto" on walk 1 minute bus 7 minutes forest JR横浜線「橋本」バス7分森の上歩1分 |
| Spacious balcony is easy to dry the futon ・ LDK is facing south Corresponding to the flat-35S, Pre-ground survey, Year Available, 2 along the line more accessible, System kitchen, Bathroom Dryer, All room storage, A quiet residential 広々バルコニーはお布団が干しやすいです・LDKは南向き フラット35Sに対応、地盤調査済、年内入居可、2沿線以上利用可、システムキッチン、浴室乾燥機、全居室収納、閑静な住宅 |
| Because of the near east Harajuku intersection, Supermarket ・ There are a number of commercial facilities, such as a drugstore is a life convenient environment. Nihonmatsu Elementary School 666m Uchide junior high school 1475m Aihara Hospital 150m Sagamino kindergarten 344m Yoshitake internal medicine clinic 411m Corresponding to the flat-35S, Pre-ground survey, Year Available, 2 along the line more accessible, System kitchen, Bathroom Dryer, All room storage, A quiet residential area, LDK15 tatami mats or more, Or more before road 6m, Washbasin with shower, Face-to-face kitchen, Wide balcony, Barrier-free, Toilet 2 places, Bathroom 1 tsubo or more, 2-story, Double-glazing, Warm water washing toilet seat, Underfloor Storage, Water filter, All rooms are two-sided lighting, Flat terrain 東原宿交差点近くの為、スーパー・ドラッグストアなどの商業施設多数あり生活至便な環境です。 二本松小学校666m 内出中学校1475m 相原病院150m 相模野幼稚園344m 吉武内科医院411m フラット35Sに対応、地盤調査済、年内入居可、2沿線以上利用可、システムキッチン、浴室乾燥機、全居室収納、閑静な住宅地、LDK15畳以上、前道6m以上、シャワー付洗面台、対面式キッチン、ワイドバルコニー、バリアフリー、トイレ2ヶ所、浴室1坪以上、2階建、複層ガラス、温水洗浄便座、床下収納、浄水器、全室2面採光、平坦地 |
Features pickup 特徴ピックアップ | | Corresponding to the flat-35S / Pre-ground survey / Year Available / 2 along the line more accessible / System kitchen / Bathroom Dryer / All room storage / A quiet residential area / LDK15 tatami mats or more / Or more before road 6m / Washbasin with shower / Face-to-face kitchen / Wide balcony / Barrier-free / Toilet 2 places / Bathroom 1 tsubo or more / 2-story / Double-glazing / Warm water washing toilet seat / Underfloor Storage / Water filter / All rooms are two-sided lighting / Flat terrain フラット35Sに対応 /地盤調査済 /年内入居可 /2沿線以上利用可 /システムキッチン /浴室乾燥機 /全居室収納 /閑静な住宅地 /LDK15畳以上 /前道6m以上 /シャワー付洗面台 /対面式キッチン /ワイドバルコニー /バリアフリー /トイレ2ヶ所 /浴室1坪以上 /2階建 /複層ガラス /温水洗浄便座 /床下収納 /浄水器 /全室2面採光 /平坦地 | Price 価格 | | 23.8 million yen 2380万円 | Floor plan 間取り | | 4LDK 4LDK | Units sold 販売戸数 | | 1 units 1戸 | Land area 土地面積 | | 100 sq m (registration) 100m2(登記) | Building area 建物面積 | | 94.4 sq m (measured) 94.4m2(実測) | Driveway burden-road 私道負担・道路 | | Road width: 9m 道路幅:9m | Completion date 完成時期(築年月) | | November 2013 2013年11月 | Address 住所 | | Sagamihara City, Kanagawa Prefecture Midori-ku Nihonmatsu 3 神奈川県相模原市緑区二本松3 | Traffic 交通 | | JR Yokohama Line "Hashimoto" on walk 1 minute bus 7 minutes forest Keio Sagamihara Line "Hashimoto" on walk 1 minute bus 7 minutes forest JR Sagami Line "Hashimoto" on walk 1 minute bus 7 minutes forest JR横浜線「橋本」バス7分森の上歩1分 京王相模原線「橋本」バス7分森の上 歩1分 JR相模線「橋本」バス7分森の上 歩1分
| Person in charge 担当者より | | The person in charge Yamada TakeshiHaru Age: 40 Daigyokai experience: Although I was allowed to help a lot of customers of your house hunting to up to 20 years from now, There is also a will that has become a life consultation during. If so "in this salesman, We thought that if Kizukere the relationship, such as seems to be left is ". 担当者山田 岳晴年齢:40代業界経験:20年今までに沢山のお客様のお家探しのお手伝いをさせて頂きましたが、中には人生相談になってしまった事もあります。そのように「この営業マンになら、任せられる」と思われるような関係を築ければと思っております。 | Contact お問い合せ先 | | TEL: 0800-603-8480 [Toll free] mobile phone ・ Also available from PHS Caller ID is not notified Please contact the "saw SUUMO (Sumo)" If it does not lead, If the real estate company TEL:0800-603-8480【通話料無料】携帯電話・PHSからもご利用いただけます 発信者番号は通知されません 「SUUMO(スーモ)を見た」と問い合わせください つながらない方、不動産会社の方は
| Building coverage, floor area ratio 建ぺい率・容積率 | | Kenpei rate: 60% ・ Fifty percent, Volume ratio: 200% ・ 80% 建ペい率:60%・50%、容積率:200%・80% | Time residents 入居時期 | | Consultation 相談 | Land of the right form 土地の権利形態 | | Ownership 所有権 | Structure and method of construction 構造・工法 | | Wooden 2-story 木造2階建 | Use district 用途地域 | | Two dwellings, One low-rise 2種住居、1種低層 | Land category 地目 | | Residential land 宅地 | Other limitations その他制限事項 | | Irregular land 不整形地 | Overview and notices その他概要・特記事項 | | Contact: Yamada TakeshiHaru, Building confirmation number: 00814 担当者:山田 岳晴、建築確認番号:00814 | Company profile 会社概要 | | <Mediation> Kanagawa Governor (2) Article 026 475 issue (stock) residence of square HOMESyubinbango252-0231 Sagamihara, Kanagawa Prefecture, Chuo-ku, Sagamihara 5-1-2A <仲介>神奈川県知事(2)第026475号(株)住まいの広場HOMES〒252-0231 神奈川県相模原市中央区相模原5-1-2A |
Local appearance photo現地外観写真  Because of the near east Harajuku intersection, Supermarket ・ There are a number of commercial facilities, such as a drugstore is a life convenient environment.
東原宿交差点近くの為、スーパー・ドラッグストアなどの商業施設多数あり生活至便な環境です。
Livingリビング  LDK16 quires more, All room pair glass, Shutters standard
LDK16帖以上、全居室ペアガラス、雨戸標準
Kitchenキッチン  Artificial marble counter ・ Pair type water purifier with system Kitchen
人造大理石カウンター・一対型浄水器付システムキッチン
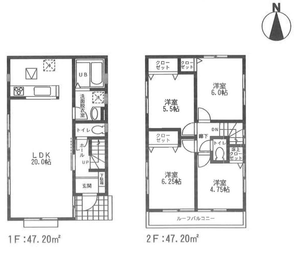
Floor plan間取り図  (2), Price 23.8 million yen, 4LDK, Land area 100 sq m , Building area 94.4 sq m
(2)、価格2380万円、4LDK、土地面積100m2、建物面積94.4m2
 Local appearance photo
現地外観写真
Bathroom浴室  1 tsubo size ・ Barrier-free type ・ With bathroom dryer
1坪サイズ・バリアフリータイプ・浴室乾燥機付
 Non-living room
リビング以外の居室
 Entrance
玄関
 Wash basin, toilet
洗面台・洗面所
 Receipt
収納
 Toilet
トイレ
 Parking lot
駐車場
 Balcony
バルコニー
Hospital病院  Aihara 150m to the hospital
相原病院まで150m
 The entire compartment Figure
全体区画図
 Non-living room
リビング以外の居室
 Receipt
収納
Kindergarten ・ Nursery幼稚園・保育園  344m until Sagamino kindergarten
相模野幼稚園 まで344m
 Non-living room
リビング以外の居室
 Receipt
収納
Hospital病院  Yoshitake until the internal medicine clinic 411m
吉武内科医院 まで411m
Location
|