New Homes » Kanto » Kanagawa Prefecture » Sagamihara Minami-ku
 
| | Sagamihara City, Kanagawa Prefecture, Minami-ku, 神奈川県相模原市南区 |
| Odawara Line Odakyu "Odakyusagamihara" walk 9 minutes 小田急小田原線「小田急相模原」歩9分 |
| 4LDK that two cars parking can be 車2台駐車が出来る4LDK |
| Crane platform elementary school 700m Shinmachi junior high school 1600m Matsugae nursery 700m Ito-Yokado Sagamihara store 750m Benevolence clinic It corresponds to the 350m flat 35S, Pre-ground survey, Parking two Allowed, 2 along the line more accessible, It is close to the city, System kitchen, All room storage, Flat to the station, Shaping land, Washbasin with shower, Face-to-face kitchen, Wide balcony, Barrier-free, Toilet 2 places, Bathroom 1 tsubo or more, 2-story, Double-glazing, Nantei, Underfloor Storage, The window in the bathroom, TV monitor interphone, Ventilation good, All living room flooring, All room 6 tatami mats or more, All rooms are two-sided lighting, Flat terrain 鶴の台小学校 700m 新町中学校 1600m 松が枝保育園 700m イトーヨーカ堂相模原店 750m 博愛医院 350mフラット35Sに対応、地盤調査済、駐車2台可、2沿線以上利用可、市街地が近い、システムキッチン、全居室収納、駅まで平坦、整形地、シャワー付洗面台、対面式キッチン、ワイドバルコニー、バリアフリー、トイレ2ヶ所、浴室1坪以上、2階建、複層ガラス、南庭、床下収納、浴室に窓、TVモニタ付インターホン、通風良好、全居室フローリング、全居室6畳以上、全室2面採光、平坦地 |
Features pickup 特徴ピックアップ | | Corresponding to the flat-35S / Pre-ground survey / Parking two Allowed / 2 along the line more accessible / It is close to the city / System kitchen / All room storage / Flat to the station / Shaping land / Washbasin with shower / Face-to-face kitchen / Wide balcony / Barrier-free / Toilet 2 places / Bathroom 1 tsubo or more / 2-story / Double-glazing / Nantei / Underfloor Storage / The window in the bathroom / TV monitor interphone / Ventilation good / All living room flooring / All room 6 tatami mats or more / All rooms are two-sided lighting / Flat terrain フラット35Sに対応 /地盤調査済 /駐車2台可 /2沿線以上利用可 /市街地が近い /システムキッチン /全居室収納 /駅まで平坦 /整形地 /シャワー付洗面台 /対面式キッチン /ワイドバルコニー /バリアフリー /トイレ2ヶ所 /浴室1坪以上 /2階建 /複層ガラス /南庭 /床下収納 /浴室に窓 /TVモニタ付インターホン /通風良好 /全居室フローリング /全居室6畳以上 /全室2面採光 /平坦地 | Price 価格 | | 39,950,000 yen 3995万円 | Floor plan 間取り | | 4LDK 4LDK | Units sold 販売戸数 | | 1 units 1戸 | Land area 土地面積 | | 142.58 sq m (measured) 142.58m2(実測) | Building area 建物面積 | | 92.94 sq m (measured) 92.94m2(実測) | Driveway burden-road 私道負担・道路 | | Nothing, Northwest 4m width 無、北西4m幅 | Completion date 完成時期(築年月) | | February 2014 2014年2月 | Address 住所 | | Sagamihara City, Kanagawa Prefecture, Minami-ku, Minamidai 3 神奈川県相模原市南区南台3 | Traffic 交通 | | Odawara Line Odakyu "Odakyusagamihara" walk 9 minutes Enoshima Odakyu "Higashirinkan" walk 20 minutes JR Yokohama Line "Kobuchi" bus 21 minutes Ninomiya Jinja before walking 5 minutes 小田急小田原線「小田急相模原」歩9分 小田急江ノ島線「東林間」歩20分 JR横浜線「古淵」バス21分二宮神社前歩5分
| Person in charge 担当者より | | The person in charge Yamada TakeshiHaru Age: 40 Daigyokai experience: Although I was allowed to help a lot of customers of your house hunting to up to 20 years from now, There is also a will that has become a life consultation during. If so "in this salesman, We thought that if Kizukere the relationship, such as seems to be left is ". 担当者山田 岳晴年齢:40代業界経験:20年今までに沢山のお客様のお家探しのお手伝いをさせて頂きましたが、中には人生相談になってしまった事もあります。そのように「この営業マンになら、任せられる」と思われるような関係を築ければと思っております。 | Contact お問い合せ先 | | TEL: 0800-603-8480 [Toll free] mobile phone ・ Also available from PHS Caller ID is not notified Please contact the "saw SUUMO (Sumo)" If it does not lead, If the real estate company TEL:0800-603-8480【通話料無料】携帯電話・PHSからもご利用いただけます 発信者番号は通知されません 「SUUMO(スーモ)を見た」と問い合わせください つながらない方、不動産会社の方は
| Building coverage, floor area ratio 建ぺい率・容積率 | | 60% ・ 160% 60%・160% | Time residents 入居時期 | | Consultation 相談 | Land of the right form 土地の権利形態 | | Ownership 所有権 | Structure and method of construction 構造・工法 | | Wooden 2-story 木造2階建 | Use district 用途地域 | | One dwelling 1種住居 | Overview and notices その他概要・特記事項 | | Contact: Yamada TakeshiHaru, Facilities: Public Water Supply, This sewage, Individual LPG, Building confirmation number: 05846, Parking: car space 担当者:山田 岳晴、設備:公営水道、本下水、個別LPG、建築確認番号:05846、駐車場:カースペース | Company profile 会社概要 | | <Mediation> Kanagawa Governor (2) Article 026 475 issue (stock) residence of square HOMESyubinbango252-0231 Sagamihara, Kanagawa Prefecture, Chuo-ku, Sagamihara 5-1-2A <仲介>神奈川県知事(2)第026475号(株)住まいの広場HOMES〒252-0231 神奈川県相模原市中央区相模原5-1-2A |
Other localその他現地  It is also a good many living environment commercial facility within walking distance in a quiet residential area of Odakyusagamihara Station 9 minute walk.
小田急相模原駅徒歩9分の閑静な住宅街で徒歩圏に商業施設も多く生活環境も良好です。
Same specifications photos (living)同仕様写真(リビング)  All room pair glass, Shutters standard
全居室ペアガラス、雨戸標準
 Same specifications photo (kitchen)
同仕様写真(キッチン)
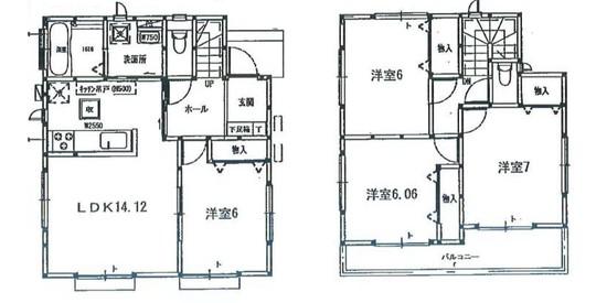
Floor plan間取り図  39,950,000 yen, 4LDK, Land area 142.58 sq m , Building area 92.94 sq m
3995万円、4LDK、土地面積142.58m2、建物面積92.94m2
 Same specifications photo (bathroom)
同仕様写真(浴室)
 Local photos, including front road
前面道路含む現地写真
Hospital病院  Benevolence clinic 350m to
博愛医院 まで350m
 Same specifications photos (Other introspection)
同仕様写真(その他内観)
 Other local
その他現地
 Other
その他
 Local photos, including front road
前面道路含む現地写真
 Same specifications photos (Other introspection)
同仕様写真(その他内観)
 Other local
その他現地
Otherその他  Matsugae nursery 700m
松が枝保育園 700m
 Local photos, including front road
前面道路含む現地写真
 Same specifications photos (Other introspection)
同仕様写真(その他内観)
 Other local
その他現地
 Local photos, including front road
前面道路含む現地写真
 Same specifications photos (Other introspection)
同仕様写真(その他内観)
 Same specifications photos (Other introspection)
同仕様写真(その他内観)
Location
|