New Homes » Kanto » Kanagawa Prefecture » Sagamihara Minami-ku
 
| | Sagamihara City, Kanagawa Prefecture, Minami-ku, 神奈川県相模原市南区 |
| JR Yokohama Line "Fuchinobe" walk 24 minutes JR横浜線「淵野辺」歩24分 |
| Flat 35S plan corresponding. New construction of fully equipped! Spacious 15 Pledge than of living is also attractive. フラット35Sプラン対応。設備充実の新築!広々した15帖超のリビングも魅力です。 |
| Onodai Central Elementary School 628m Yoshinodai junior high school 551m Endo Clinic 620m Fuchinobe park 665m Food one Onodai shop 859m Corresponding to the flat-35S, Pre-ground survey, Seismic fit, 2 along the line more accessible, Fiscal year Available, Super close, System kitchen, Bathroom Dryer, Yang per good, All room storage, Flat to the station, A quiet residential area, LDK15 tatami mats or more, Starting station, Shaping land, Washbasin with shower, Face-to-face kitchen, 3 face lighting, Toilet 2 places, Southeast direction, Otobasu, Warm water washing toilet seat, TV monitor interphone, Ventilation good, All living room flooring, Three-story or more, Living stairs, City gas, Flat terrain 大野台中央小学校628m 由野台中学校551m 遠藤クリニック620m 淵野辺公園665m フードワン大野台店859m フラット35Sに対応、地盤調査済、耐震適合、2沿線以上利用可、年度内入居可、スーパーが近い、システムキッチン、浴室乾燥機、陽当り良好、全居室収納、駅まで平坦、閑静な住宅地、LDK15畳以上、始発駅、整形地、シャワー付洗面台、対面式キッチン、3面採光、トイレ2ヶ所、東南向き、オートバス、温水洗浄便座、TVモニタ付インターホン、通風良好、全居室フローリング、3階建以上、リビング階段、都市ガス、平坦地 |
Features pickup 特徴ピックアップ | | Corresponding to the flat-35S / Pre-ground survey / Seismic fit / 2 along the line more accessible / Fiscal year Available / Super close / System kitchen / Bathroom Dryer / Yang per good / All room storage / Flat to the station / A quiet residential area / LDK15 tatami mats or more / Starting station / Shaping land / Washbasin with shower / Face-to-face kitchen / 3 face lighting / Toilet 2 places / Southeast direction / Otobasu / Warm water washing toilet seat / TV monitor interphone / Ventilation good / All living room flooring / Three-story or more / Living stairs / City gas / Flat terrain フラット35Sに対応 /地盤調査済 /耐震適合 /2沿線以上利用可 /年度内入居可 /スーパーが近い /システムキッチン /浴室乾燥機 /陽当り良好 /全居室収納 /駅まで平坦 /閑静な住宅地 /LDK15畳以上 /始発駅 /整形地 /シャワー付洗面台 /対面式キッチン /3面採光 /トイレ2ヶ所 /東南向き /オートバス /温水洗浄便座 /TVモニタ付インターホン /通風良好 /全居室フローリング /3階建以上 /リビング階段 /都市ガス /平坦地 | Price 価格 | | 28.8 million yen 2880万円 | Floor plan 間取り | | 4LDK 4LDK | Units sold 販売戸数 | | 1 units 1戸 | Land area 土地面積 | | 77.33 sq m (measured) 77.33m2(実測) | Building area 建物面積 | | 110.12 sq m (measured) 110.12m2(実測) | Driveway burden-road 私道負担・道路 | | Nothing, Southeast 4m width 無、南東4m幅 | Completion date 完成時期(築年月) | | December 2013 2013年12月 | Address 住所 | | Sagamihara City, Kanagawa Prefecture, Minami-ku, Onodai 1 神奈川県相模原市南区大野台1 | Traffic 交通 | | JR Yokohama Line "Fuchinobe" walk 24 minutes Odakyu line "Sagami" bus 16 minutes Matsugaoka walk 9 minutes Keio Sagamihara Line "Hashimoto" bus 28 minutes Matsugaoka walk 9 minutes JR横浜線「淵野辺」歩24分 小田急線「相模大野」バス16分松が丘歩9分 京王相模原線「橋本」バス28分松が丘歩9分
| Person in charge 担当者より | | Personnel Hitoshi Nakajima Age: 20 Daigyokai Experience: 5 years was born and raised is Sagamihara! Please leave if things local Kanagawa. price ・ place ・ loan ・ Future, etc., Until your delivery, And "good to wonder if?", I also have the same worry. Let's eliminate the anxiety together! 担当者中島均年齢:20代業界経験:5年生まれも育ちも相模原です!地元神奈川の事であればお任せください。価格・場所・ローン・将来等々、御引き渡しまでの間、「いいのかな?」と、私も同じ心配をしています。一緒に不安を解消しましょう! | Contact お問い合せ先 | | TEL: 0800-603-8480 [Toll free] mobile phone ・ Also available from PHS Caller ID is not notified Please contact the "saw SUUMO (Sumo)" If it does not lead, If the real estate company TEL:0800-603-8480【通話料無料】携帯電話・PHSからもご利用いただけます 発信者番号は通知されません 「SUUMO(スーモ)を見た」と問い合わせください つながらない方、不動産会社の方は
| Building coverage, floor area ratio 建ぺい率・容積率 | | 60% ・ 160% 60%・160% | Time residents 入居時期 | | Consultation 相談 | Land of the right form 土地の権利形態 | | Ownership 所有権 | Structure and method of construction 構造・工法 | | Wooden three-story 木造3階建 | Use district 用途地域 | | Two mid-high 2種中高 | Other limitations その他制限事項 | | Built-in garage 14.9 square meters including ビルトイン車庫14.9平米含 | Overview and notices その他概要・特記事項 | | Contact: Hitoshi Nakajima, Facilities: Public Water Supply, This sewage, City gas, Building confirmation number: 01952, Parking: No 担当者:中島均、設備:公営水道、本下水、都市ガス、建築確認番号:01952、駐車場:無 | Company profile 会社概要 | | <Mediation> Kanagawa Governor (2) Article 026 475 issue (stock) residence of square HOMESyubinbango252-0231 Sagamihara, Kanagawa Prefecture, Chuo-ku, Sagamihara 5-1-2A <仲介>神奈川県知事(2)第026475号(株)住まいの広場HOMES〒252-0231 神奈川県相模原市中央区相模原5-1-2A |
Local appearance photo現地外観写真  There are two car spaces, including good living and built-in garage per yang southeast. Living environment is also good in a quiet residential area.
南東向きの陽当たり良好なリビングとビルトイン車庫含むカースペース2台あります。閑静な住宅街で生活環境も良好です。
Same specifications photos (living)同仕様写真(リビング)  All room pair glass, Shutters standard
全居室ペアガラス、雨戸標準
Same specifications photo (kitchen)同仕様写真(キッチン)  Artificial marble counter ・ Pair type water purifier with system Kitchen
人造大理石カウンター・一対型浄水器付システムキッチン
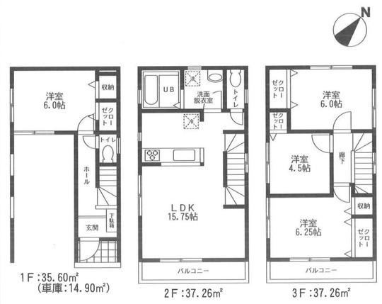
Floor plan間取り図  28.8 million yen, 4LDK, Land area 77.33 sq m , Building area 110.12 sq m
2880万円、4LDK、土地面積77.33m2、建物面積110.12m2
 Local appearance photo
現地外観写真
Same specifications photo (bathroom)同仕様写真(浴室)  1 tsubo size ・ Barrier-free type ・ With bathroom dryer
1坪サイズ・バリアフリータイプ・浴室乾燥機付
 Local photos, including front road
前面道路含む現地写真
Hospital病院  859m until the food one Onodai shop
フードワン大野台店まで859m
 Same specifications photos (Other introspection)
同仕様写真(その他内観)
 Other
その他
 Local appearance photo
現地外観写真
 Local photos, including front road
前面道路含む現地写真
 Same specifications photos (Other introspection)
同仕様写真(その他内観)
Otherその他  Endo Clinic 620m
遠藤クリニック 620m
 Local appearance photo
現地外観写真
 Local photos, including front road
前面道路含む現地写真
 Same specifications photos (Other introspection)
同仕様写真(その他内観)
 Local photos, including front road
前面道路含む現地写真
 Same specifications photos (Other introspection)
同仕様写真(その他内観)
 Same specifications photos (Other introspection)
同仕様写真(その他内観)
Location
|