New Homes » Kanto » Kanagawa Prefecture » Yamato City
 
| | Yamato-shi, Kanagawa 神奈川県大和市 |
| Enoshima Odakyu "Tsuruma" walk 13 minutes 小田急江ノ島線「鶴間」歩13分 |
| And now the Housing Performance Indication System object properties, It is a strong house in the earthquake that have acquired seismic highest grade! Floor plan of the easy-to-use 4LDK, It is a good newly built single-family balance of the flat 13-minute walk from the train station. 住宅性能表示制度対象物件になりまして、耐震最高等級を取得している地震に強い家です!使い勝手の良い4LDKの間取り、駅からは平坦徒歩13分のバランスの良い新築戸建です。 |
| Construction housing performance with evaluation, Design house performance with evaluation, Pre-ground survey, Year Available, Super close, Facing south, System kitchen, Yang per good, All room storage, Flat to the station, A quiet residential area, Around traffic fewerese-style room, Shaping land, Washbasin with shower, Face-to-face kitchen, Wide balcony, Toilet 2 places, Bathroom 1 tsubo or more, 2-story, South balcony, Double-glazing, Zenshitsuminami direction, Warm water washing toilet seat, Nantei, Underfloor Storage, The window in the bathroom, Mu front building, Ventilation good, Good view, All rooms are two-sided lighting, Flat terrain 建設住宅性能評価付、設計住宅性能評価付、地盤調査済、年内入居可、スーパーが近い、南向き、システムキッチン、陽当り良好、全居室収納、駅まで平坦、閑静な住宅地、周辺交通量少なめ、和室、整形地、シャワー付洗面台、対面式キッチン、ワイドバルコニー、トイレ2ヶ所、浴室1坪以上、2階建、南面バルコニー、複層ガラス、全室南向き、温水洗浄便座、南庭、床下収納、浴室に窓、前面棟無、通風良好、眺望良好、全室2面採光、平坦地 |
Features pickup 特徴ピックアップ | | Construction housing performance with evaluation / Design house performance with evaluation / Pre-ground survey / Year Available / Super close / Facing south / System kitchen / Yang per good / All room storage / Flat to the station / A quiet residential area / Around traffic fewer / Japanese-style room / Shaping land / Washbasin with shower / Face-to-face kitchen / Wide balcony / Toilet 2 places / Bathroom 1 tsubo or more / 2-story / South balcony / Double-glazing / Zenshitsuminami direction / Warm water washing toilet seat / Nantei / Underfloor Storage / The window in the bathroom / Mu front building / Ventilation good / Good view / All rooms are two-sided lighting / Flat terrain 建設住宅性能評価付 /設計住宅性能評価付 /地盤調査済 /年内入居可 /スーパーが近い /南向き /システムキッチン /陽当り良好 /全居室収納 /駅まで平坦 /閑静な住宅地 /周辺交通量少なめ /和室 /整形地 /シャワー付洗面台 /対面式キッチン /ワイドバルコニー /トイレ2ヶ所 /浴室1坪以上 /2階建 /南面バルコニー /複層ガラス /全室南向き /温水洗浄便座 /南庭 /床下収納 /浴室に窓 /前面棟無 /通風良好 /眺望良好 /全室2面採光 /平坦地 | Price 価格 | | 28.8 million yen ~ 31,800,000 yen 2880万円 ~ 3180万円 | Floor plan 間取り | | 4LDK 4LDK | Units sold 販売戸数 | | 3 units 3戸 | Total units 総戸数 | | 3 units 3戸 | Land area 土地面積 | | 93.59 sq m ~ 100.19 sq m 93.59m2 ~ 100.19m2 | Building area 建物面積 | | 89.64 sq m ~ 92.12 sq m 89.64m2 ~ 92.12m2 | Completion date 完成時期(築年月) | | 2013 in late November 2013年11月下旬 | Address 住所 | | Yamato-shi, Kanagawa Kamisoyagi 8 神奈川県大和市上草柳8 | Traffic 交通 | | Enoshima Odakyu "Tsuruma" walk 13 minutes Sagami Railway Main Line "Otsuka Sagami" walk 23 minutes Sagami Railway Main Line "Yamato" walk 27 minutes 小田急江ノ島線「鶴間」歩13分 相鉄本線「相模大塚」歩23分 相鉄本線「大和」歩27分
| Related links 関連リンク | | [Related Sites of this company] 【この会社の関連サイト】 | Contact お問い合せ先 | | TEL: 0800-603-2628 [Toll free] mobile phone ・ Also available from PHS Caller ID is not notified Please contact the "saw SUUMO (Sumo)" If it does not lead, If the real estate company TEL:0800-603-2628【通話料無料】携帯電話・PHSからもご利用いただけます 発信者番号は通知されません 「SUUMO(スーモ)を見た」と問い合わせください つながらない方、不動産会社の方は
| Building coverage, floor area ratio 建ぺい率・容積率 | | Building coverage: 50%, Volume ratio: 100% 建ぺい率:50%、容積率:100% | Time residents 入居時期 | | Consultation 相談 | Land of the right form 土地の権利形態 | | Ownership 所有権 | Structure and method of construction 構造・工法 | | Wooden 2-story 木造2階建 | Construction 施工 | | Idasangyo Ryokuentoshi 飯田産業 緑園都市 | Use district 用途地域 | | One low-rise 1種低層 | Overview and notices その他概要・特記事項 | | Building confirmation number: HPA-13-01414-1 建築確認番号:HPA-13-01414-1 | Company profile 会社概要 | | <Mediation> Governor of Kanagawa Prefecture (5) No. 021251 (Corporation) All Japan Real Estate Association (Corporation) metropolitan area real estate Fair Trade Council member Century 21 (Ltd.) stylish home business Lesson 3 Yubinbango242-0021 Yamato-shi, Kanagawa center 7-5-28 <仲介>神奈川県知事(5)第021251号(公社)全日本不動産協会会員 (公社)首都圏不動産公正取引協議会加盟センチュリー21(株)スタイリッシュホーム営業3課〒242-0021 神奈川県大和市中央7-5-28 |
Livingリビング  1 Building Introspection
1号棟 内観
The entire compartment Figure全体区画図  layout drawing
配置図
Non-living roomリビング以外の居室  Building 3 Japanese-style room
3号棟 和室
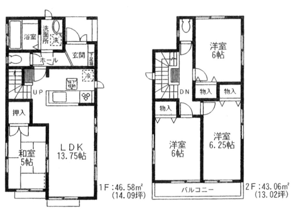
Floor plan間取り図  (1 Building), Price 31,800,000 yen, 4LDK, Land area 100.19 sq m , Building area 92.12 sq m
(1号棟)、価格3180万円、4LDK、土地面積100.19m2、建物面積92.12m2
Local appearance photo現地外観写真  Local (12 May 2013) Shooting
現地(2013年12月)撮影
Kitchenキッチン  Indoor (12 May 2013) Shooting
室内(2013年12月)撮影
Balconyバルコニー  Local (12 May 2013) Shooting
現地(2013年12月)撮影
Other introspectionその他内観  Building 3 Blow-by
3号棟 吹き抜け
Local photos, including front road前面道路含む現地写真  Local (12 May 2013) Shooting
現地(2013年12月)撮影
Bathroom浴室  Indoor (12 May 2013) Shooting
室内(2013年12月)撮影
Floor plan間取り図  (Building 2), Price 28.8 million yen, 4LDK, Land area 99.91 sq m , Building area 89.64 sq m
(2号棟)、価格2880万円、4LDK、土地面積99.91m2、建物面積89.64m2
Livingリビング  Indoor (12 May 2013) Shooting
室内(2013年12月)撮影
Kitchenキッチン  1 Building kitchen
1号棟 キッチン
Local appearance photo現地外観写真  Local (12 May 2013) Shooting
現地(2013年12月)撮影
Park公園  800m until the memorial park
慰霊塔公園まで800m
Station駅  1140m to Tsuruma Station
鶴間駅まで1140m
Supermarketスーパー  Maruetsu until Tsuruma shop 1140m
マルエツ鶴間店まで1140m
Shopping centreショッピングセンター  1719m to Muji Aeon Mall Yamato shop
無印良品イオンモール大和店まで1719m
Local appearance photo現地外観写真  Local (12 May 2013) Shooting
現地(2013年12月)撮影
Non-living roomリビング以外の居室  Indoor (12 May 2013) Shooting
室内(2013年12月)撮影
 Indoor (12 May 2013) Shooting
室内(2013年12月)撮影
Location
|