|
|
Yamato-shi, Kanagawa
神奈川県大和市
|
|
Enoshima Odakyu "Tsuruma" walk 15 minutes
小田急江ノ島線「鶴間」歩15分
|
|
Car space two possible ・ Front road spacious ・ Mato loose ・ Face-to-face kitchen ・ Spacious LDK ・ Yes each room storage
カースペース2台可能・前面道路広々・間取ゆったり・対面式キッチン・広々LDK・各居室収納あり
|
|
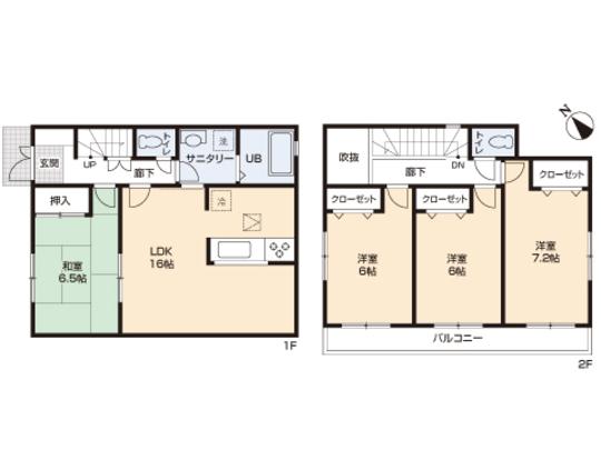
Parking spaces in the can park two car. It is encouraging even when the visitor. Effortlessly garage because the front road is about 4.5m! Mato is spacious 4LDK. In face-to-face kitchen conversation bouncing of the family, About 16 Pledge of LDK is open enough feeling. You can relax leisurely you aligned your family. A living room with a 6 Pledge or more come with all convenient storage. Please contact us by all means.
駐車スペースにはお車2台駐車可能。来客時にも心強いですね。前面道路は約4.5mですので車庫入れも楽々!間取はゆったり4LDK。家族の会話も弾む対面式キッチンに、約16帖のLDKは開放感たっぷり。ご家族揃ってゆったりとお寛ぎいただけます。6帖以上ある居室は全て便利な収納付きです。ぜひお問い合わせ下さいませ。
|
Price 価格 | | 34,800,000 yen 3480万円 |
Floor plan 間取り | | 4LDK 4LDK |
Units sold 販売戸数 | | 1 units 1戸 |
Land area 土地面積 | | 100.33 sq m (measured) 100.33m2(実測) |
Building area 建物面積 | | 96.05 sq m (measured) 96.05m2(実測) |
Driveway burden-road 私道負担・道路 | | Nothing 無 |
Completion date 完成時期(築年月) | | February 2014 2014年2月 |
Address 住所 | | Yamato-shi, Kanagawa Shimotsuruma 神奈川県大和市下鶴間 |
Traffic 交通 | | Enoshima Odakyu "Tsuruma" walk 15 minutes 小田急江ノ島線「鶴間」歩15分
|
Related links 関連リンク | | [Related Sites of this company] 【この会社の関連サイト】 |
Contact お問い合せ先 | | TEL: 0800-805-6230 [Toll free] mobile phone ・ Also available from PHS Caller ID is not notified Please contact the "saw SUUMO (Sumo)" If it does not lead, If the real estate company TEL:0800-805-6230【通話料無料】携帯電話・PHSからもご利用いただけます 発信者番号は通知されません 「SUUMO(スーモ)を見た」と問い合わせください つながらない方、不動産会社の方は
|
Building coverage, floor area ratio 建ぺい率・容積率 | | 60% ・ 180% 60%・180% |
Time residents 入居時期 | | Consultation 相談 |
Land of the right form 土地の権利形態 | | Ownership 所有権 |
Structure and method of construction 構造・工法 | | Wooden 2-story 木造2階建 |
Use district 用途地域 | | Quasi-residence 準住居 |
Other limitations その他制限事項 | | Other share land interests about 0.22m2 Yes 他共有土地持分約0.22m2有 |
Overview and notices その他概要・特記事項 | | Facilities: Public Water Supply, This sewage, City gas, Building confirmation number: No. 13-1234, Parking: No 設備:公営水道、本下水、都市ガス、建築確認番号:13-1234号、駐車場:無 |
Company profile 会社概要 | | <Mediation> Minister of Land, Infrastructure and Transport (3) The 006,183 No. housing information Museum Yamato shop Seongnam Construction (Ltd.) Yubinbango242-0012 Yamato-shi, Kanagawa Fukamihigashi 2-1-3 Jonan construction building <仲介>国土交通大臣(3)第006183号住宅情報館 大和店城南建設(株)〒242-0012 神奈川県大和市深見東2-1-3 城南建設ビル |