New Homes » Kanto » Kanagawa Prefecture » Yamato City
 
| | Yamato-shi, Kanagawa 神奈川県大和市 |
| Enoshima Odakyu "Sakuragaoka" walk 17 minutes 小田急江ノ島線「桜ヶ丘」歩17分 |
| Parking two Allowed, LDK20 tatami mats or more 駐車2台可、LDK20畳以上 |
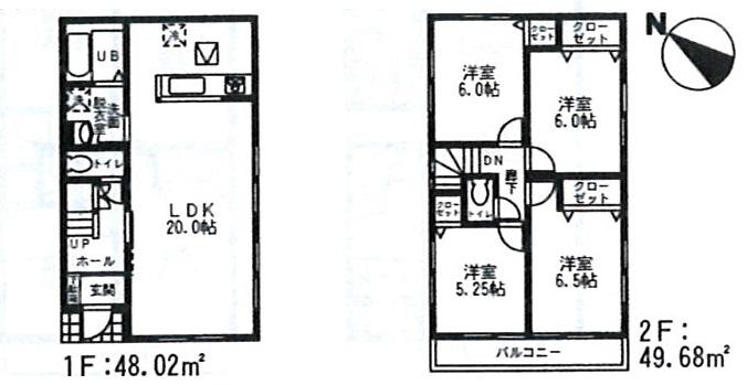
Features pickup 特徴ピックアップ | | Parking two Allowed / LDK20 tatami mats or more 駐車2台可 /LDK20畳以上 | Price 価格 | | 29,800,000 yen 2980万円 | Floor plan 間取り | | 4LDK 4LDK | Units sold 販売戸数 | | 1 units 1戸 | Total units 総戸数 | | 18 units 18戸 | Land area 土地面積 | | 100.47 sq m (30.39 tsubo) (measured) 100.47m2(30.39坪)(実測) | Building area 建物面積 | | 97.7 sq m (29.55 tsubo) (measured) 97.7m2(29.55坪)(実測) | Driveway burden-road 私道負担・道路 | | Nothing 無 | Completion date 完成時期(築年月) | | November 2013 2013年11月 | Address 住所 | | Yamato-shi, Kanagawa Fukami 神奈川県大和市深見 | Traffic 交通 | | Enoshima Odakyu "Sakuragaoka" walk 17 minutes 小田急江ノ島線「桜ヶ丘」歩17分
| Contact お問い合せ先 | | TEL: 0800-603-1280 [Toll free] mobile phone ・ Also available from PHS Caller ID is not notified Please contact the "saw SUUMO (Sumo)" If it does not lead, If the real estate company TEL:0800-603-1280【通話料無料】携帯電話・PHSからもご利用いただけます 発信者番号は通知されません 「SUUMO(スーモ)を見た」と問い合わせください つながらない方、不動産会社の方は
| Building coverage, floor area ratio 建ぺい率・容積率 | | 60% ・ 200% 60%・200% | Time residents 入居時期 | | Consultation 相談 | Land of the right form 土地の権利形態 | | Ownership 所有権 | Structure and method of construction 構造・工法 | | Wooden 2-story 木造2階建 | Use district 用途地域 | | Semi-industrial 準工業 | Overview and notices その他概要・特記事項 | | Facilities: Public Water Supply, This sewage, City gas, Building confirmation number: first H25SBC- Make 00070M No., Parking: car space 設備:公営水道、本下水、都市ガス、建築確認番号:第H25SBC-確00070M号、駐車場:カースペース | Company profile 会社概要 | | <Mediation> Governor of Kanagawa Prefecture (11) No. 009457 (the company), Kanagawa Prefecture Building Lots and Buildings Transaction Business Association (Corporation) metropolitan area real estate Fair Trade Council member Japan Housing Corporation real estate sales department Yubinbango243-0017 Atsugi City, Kanagawa Prefecture Sakae 1-17-10 <仲介>神奈川県知事(11)第009457号(社)神奈川県宅地建物取引業協会会員 (公社)首都圏不動産公正取引協議会加盟日本住宅(株)不動産営業部〒243-0017 神奈川県厚木市栄町1-17-10 |
Floor plan間取り図  29,800,000 yen, 4LDK, Land area 100.47 sq m , Building area 97.7 sq m
2980万円、4LDK、土地面積100.47m2、建物面積97.7m2
Supermarketスーパー  1072m to Sotetsu Rosen Yamato shop
そうてつローゼン大和店まで1072m
 1177m to Sotetsu Rosen Sakuragaoka shop
そうてつローゼン桜ケ丘店まで1177m
Junior high school中学校  939m until Yamato Municipal Hikarigaoka junior high school
大和市立光丘中学校まで939m
Primary school小学校  1156m to Yamato City Fukami Elementary School
大和市立深見小学校まで1156m
Kindergarten ・ Nursery幼稚園・保育園  White lily to kindergarten 996m
しらゆり幼稚園まで996m
 Yamato Kobato to kindergarten 1185m
大和小鳩幼稚園まで1185m
Location
|