2013November
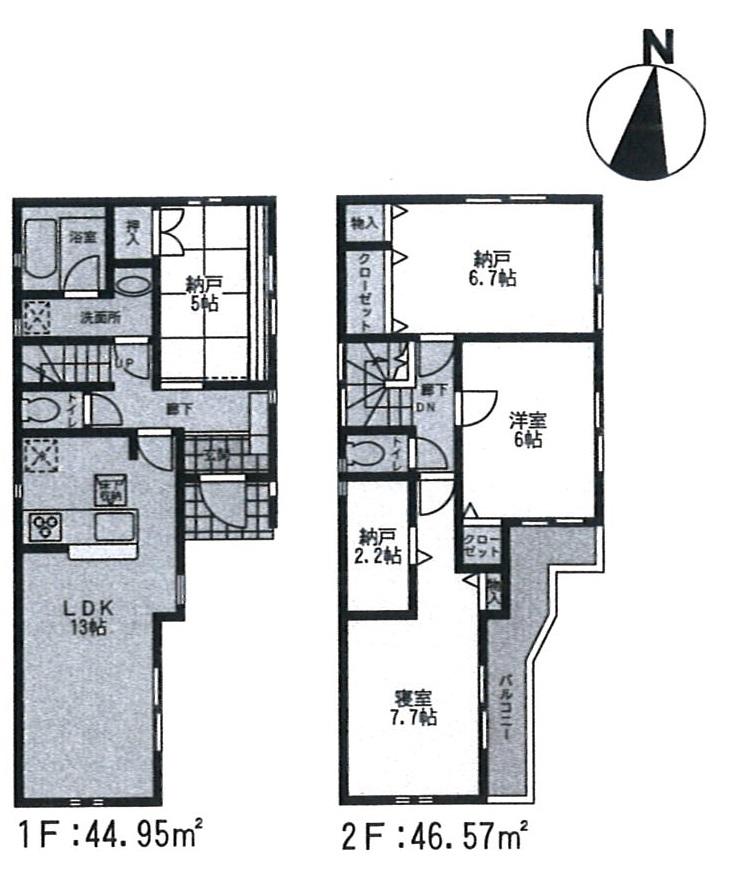
25,800,000 yen, 2LDK + 3S (storeroom), 91.52 sq m
New Homes » Kanto » Kanagawa Prefecture » Yamato City
 
| | Yamato-shi, Kanagawa 神奈川県大和市 |
| Enoshima Odakyu "Sakuragaoka" walk 20 minutes 小田急江ノ島線「桜ヶ丘」歩20分 |
| Siemens south road, Or more before road 6m, Storeroom 南側道路面す、前道6m以上、納戸 |
Features pickup 特徴ピックアップ | | Siemens south road / Or more before road 6m / Storeroom 南側道路面す /前道6m以上 /納戸 | Price 価格 | | 25,800,000 yen 2580万円 | Floor plan 間取り | | 2LDK + 3S (storeroom) 2LDK+3S(納戸) | Units sold 販売戸数 | | 1 units 1戸 | Total units 総戸数 | | 2 units 2戸 | Land area 土地面積 | | 86.06 sq m (26.03 tsubo) (measured) 86.06m2(26.03坪)(実測) | Building area 建物面積 | | 91.52 sq m (27.68 tsubo) (measured) 91.52m2(27.68坪)(実測) | Driveway burden-road 私道負担・道路 | | Nothing, South 6m width 無、南6m幅 | Completion date 完成時期(築年月) | | November 2013 2013年11月 | Address 住所 | | Yamato-shi, Kanagawa Kamiwada 神奈川県大和市上和田 | Traffic 交通 | | Enoshima Odakyu "Sakuragaoka" walk 20 minutes 小田急江ノ島線「桜ヶ丘」歩20分
| Contact お問い合せ先 | | TEL: 0800-603-1280 [Toll free] mobile phone ・ Also available from PHS Caller ID is not notified Please contact the "saw SUUMO (Sumo)" If it does not lead, If the real estate company TEL:0800-603-1280【通話料無料】携帯電話・PHSからもご利用いただけます 発信者番号は通知されません 「SUUMO(スーモ)を見た」と問い合わせください つながらない方、不動産会社の方は
| Building coverage, floor area ratio 建ぺい率・容積率 | | 60% ・ 200% 60%・200% | Time residents 入居時期 | | Consultation 相談 | Land of the right form 土地の権利形態 | | Ownership 所有権 | Structure and method of construction 構造・工法 | | Wooden 2-story 木造2階建 | Use district 用途地域 | | One middle and high 1種中高 | Overview and notices その他概要・特記事項 | | Facilities: Public Water Supply, This sewage, City gas, Parking: car space 設備:公営水道、本下水、都市ガス、駐車場:カースペース | Company profile 会社概要 | | <Mediation> Governor of Kanagawa Prefecture (11) No. 009457 (the company), Kanagawa Prefecture Building Lots and Buildings Transaction Business Association (Corporation) metropolitan area real estate Fair Trade Council member Japan Housing Corporation real estate sales department Yubinbango243-0017 Atsugi City, Kanagawa Prefecture Sakae 1-17-10 <仲介>神奈川県知事(11)第009457号(社)神奈川県宅地建物取引業協会会員 (公社)首都圏不動産公正取引協議会加盟日本住宅(株)不動産営業部〒243-0017 神奈川県厚木市栄町1-17-10 |
Floor plan間取り図  25,800,000 yen, 2LDK + 3S (storeroom), Land area 86.06 sq m , Building area 91.52 sq m
2580万円、2LDK+3S(納戸)、土地面積86.06m2、建物面積91.52m2
Supermarketスーパー  817m until Inageya Yamato Sakuragaoka shop
いなげや大和桜ケ丘店まで817m
 693m to Sotetsu Rosen Sakuragaoka shop
そうてつローゼン桜ケ丘店まで693m
Location
|