|
|
Yamato-shi, Kanagawa
神奈川県大和市
|
|
Enoshima Odakyu "Sakuragaoka" walk 17 minutes
小田急江ノ島線「桜ヶ丘」歩17分
|
|
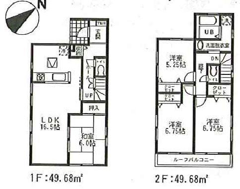
Because of the bright skyline new development within the subdivision of new construction in the green quiet residential area lined, Easy-to-use 4LDK floor plan in which a Japanese-style room in the familiar environment living next to immediately preview Allowed!
緑豊かな閑静な住宅街に新築が立ち並ぶ明るい街並み新規開発分譲地内のため、なじみやすい環境リビング横に和室を設けた使いやすい4LDK間取りです即内覧可!
|
|
~ Was building 30 square meters or more of the firm floor plan is attractive ~ ■ System kitchen ■ Water filter ■ Intercom with TV monitor ■ Shower toilet ■ Pair glass ■ Shower Dresser
~ 建物30坪以上のしっかりとした間取りが魅力です ~ ■システムキッチン■浄水器■TVモニター付インターホン■シャワートイレ■ペアガラス■シャワードレッサー
|
Features pickup 特徴ピックアップ | | Pre-ground survey / Parking two Allowed / Immediate Available / It is close to the city / System kitchen / Yang per good / All room storage / A quiet residential area / LDK15 tatami mats or more / Japanese-style room / Shaping land / Face-to-face kitchen / Bathroom 1 tsubo or more / 2-story / Double-glazing / Underfloor Storage / The window in the bathroom / TV monitor interphone / Leafy residential area / Mu front building / Ventilation good / Water filter / City gas / Flat terrain 地盤調査済 /駐車2台可 /即入居可 /市街地が近い /システムキッチン /陽当り良好 /全居室収納 /閑静な住宅地 /LDK15畳以上 /和室 /整形地 /対面式キッチン /浴室1坪以上 /2階建 /複層ガラス /床下収納 /浴室に窓 /TVモニタ付インターホン /緑豊かな住宅地 /前面棟無 /通風良好 /浄水器 /都市ガス /平坦地 |
Price 価格 | | 26,800,000 yen 2680万円 |
Floor plan 間取り | | 4LDK 4LDK |
Units sold 販売戸数 | | 1 units 1戸 |
Land area 土地面積 | | 102.63 sq m (registration) 102.63m2(登記) |
Building area 建物面積 | | 99.36 sq m (registration) 99.36m2(登記) |
Driveway burden-road 私道負担・道路 | | Nothing 無 |
Completion date 完成時期(築年月) | | November 2013 2013年11月 |
Address 住所 | | Yamato-shi, Kanagawa Fukami 神奈川県大和市深見 |
Traffic 交通 | | Enoshima Odakyu "Sakuragaoka" walk 17 minutes Sagami Railway Main Line "Yamato" walk 19 minutes 小田急江ノ島線「桜ヶ丘」歩17分 相鉄本線「大和」歩19分
|
Related links 関連リンク | | [Related Sites of this company] 【この会社の関連サイト】 |
Contact お問い合せ先 | | TEL: 0800-809-8850 [Toll free] mobile phone ・ Also available from PHS Caller ID is not notified Please contact the "saw SUUMO (Sumo)" If it does not lead, If the real estate company TEL:0800-809-8850【通話料無料】携帯電話・PHSからもご利用いただけます 発信者番号は通知されません 「SUUMO(スーモ)を見た」と問い合わせください つながらない方、不動産会社の方は
|
Building coverage, floor area ratio 建ぺい率・容積率 | | 60% ・ 200% 60%・200% |
Time residents 入居時期 | | Immediate available 即入居可 |
Land of the right form 土地の権利形態 | | Ownership 所有権 |
Structure and method of construction 構造・工法 | | Wooden 2-story 木造2階建 |
Overview and notices その他概要・特記事項 | | Facilities: Public Water Supply, This sewage, City gas, Building confirmation number: 00075, Parking: car space 設備:公営水道、本下水、都市ガス、建築確認番号:00075、駐車場:カースペース |
Company profile 会社概要 | | <Mediation> Governor of Kanagawa Prefecture (1) No. 028491 (Ltd.) Stableford Home Yubinbango252-0804 Fujisawa, Kanagawa Prefecture Shonandai 4-2-12 <仲介>神奈川県知事(1)第028491号(株)ステイブルホーム〒252-0804 神奈川県藤沢市湘南台4-2-12 |