New Homes » Kanto » Kanagawa Prefecture » Yamato City
 
| | Yamato-shi, Kanagawa 神奈川県大和市 |
| Denentoshi Tokyu "Tsukimino" walk 14 minutes 東急田園都市線「つきみ野」歩14分 |
| Southwest road Hito good Parking one LDK13 quires more Face-to-face kitchen Dishwasher Bathroom Dryer All rooms 6 quires more Card key With screen door City gas Flat 35S Available 南西道路 陽当良好 駐車1台 LDK13帖以上 対面キッチン 食洗器 浴室乾燥機 全室6帖以上 カードキー 網戸付 都市ガス フラット35S利用可 |
| ◆ [T point gift] In customer who Inquiry, If you visit us to our [600 Points] Presentation in! ◆【Tポイントプレゼント】お問い合わせ頂いたお客様で、当社までご来社頂くと【600ポイント】進呈中! |
Features pickup 特徴ピックアップ | | Corresponding to the flat-35S / System kitchen / Bathroom Dryer / Yang per good / All room storage / Siemens south road / A quiet residential area / Face-to-face kitchen / Toilet 2 places / 2-story / Warm water washing toilet seat / Underfloor Storage / Southwestward / Dish washing dryer / Water filter / City gas / Development subdivision in フラット35Sに対応 /システムキッチン /浴室乾燥機 /陽当り良好 /全居室収納 /南側道路面す /閑静な住宅地 /対面式キッチン /トイレ2ヶ所 /2階建 /温水洗浄便座 /床下収納 /南西向き /食器洗乾燥機 /浄水器 /都市ガス /開発分譲地内 | Price 価格 | | 36,800,000 yen 3680万円 | Floor plan 間取り | | 4LDK 4LDK | Units sold 販売戸数 | | 1 units 1戸 | Total units 総戸数 | | 8 units 8戸 | Land area 土地面積 | | 136.05 sq m (measured) 136.05m2(実測) | Building area 建物面積 | | 99.77 sq m (measured) 99.77m2(実測) | Driveway burden-road 私道負担・道路 | | Nothing, Southwest 5m width 無、南西5m幅 | Completion date 完成時期(築年月) | | May 2014 2014年5月 | Address 住所 | | Yamato-shi, Kanagawa Shimotsuruma 神奈川県大和市下鶴間 | Traffic 交通 | | Denentoshi Tokyu "Tsukimino" walk 14 minutes 東急田園都市線「つきみ野」歩14分
| Related links 関連リンク | | [Related Sites of this company] 【この会社の関連サイト】 | Contact お問い合せ先 | | TEL: 0800-809-8968 [Toll free] mobile phone ・ Also available from PHS Caller ID is not notified Please contact the "saw SUUMO (Sumo)" If it does not lead, If the real estate company TEL:0800-809-8968【通話料無料】携帯電話・PHSからもご利用いただけます 発信者番号は通知されません 「SUUMO(スーモ)を見た」と問い合わせください つながらない方、不動産会社の方は
| Building coverage, floor area ratio 建ぺい率・容積率 | | Fifty percent ・ 80% 50%・80% | Time residents 入居時期 | | Consultation 相談 | Land of the right form 土地の権利形態 | | Ownership 所有権 | Structure and method of construction 構造・工法 | | Wooden 2-story 木造2階建 | Use district 用途地域 | | One low-rise 1種低層 | Other limitations その他制限事項 | | You can color select. カラーセレクトできます。 | Overview and notices その他概要・特記事項 | | Facilities: Public Water Supply, This sewage, City gas, Building confirmation number: 6404, Parking: car space 設備:公営水道、本下水、都市ガス、建築確認番号:6404、駐車場:カースペース | Company profile 会社概要 | | <Mediation> Governor of Kanagawa Prefecture (1) No. 028034 (Corporation) Tokyo Metropolitan Government Building Lots and Buildings Transaction Business Association (Corporation) metropolitan area real estate Fair Trade Council member Universal Housing Sales Co., Ltd. Sales Division 2 Yubinbango252-0344 Sagamihara City, Kanagawa Prefecture, Minami-ku, Kobuchi 4-5-25 <仲介>神奈川県知事(1)第028034号(公社)東京都宅地建物取引業協会会員 (公社)首都圏不動産公正取引協議会加盟ユニバーサル住宅販売(株)営業2課〒252-0344 神奈川県相模原市南区古淵4-5-25 |
 Local appearance photo
現地外観写真
 Local appearance photo
現地外観写真
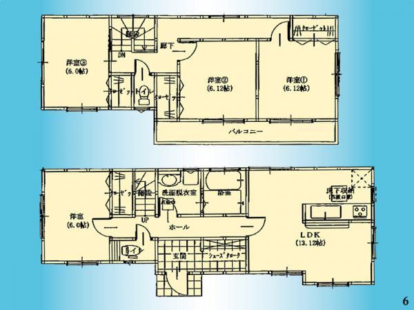
Floor plan間取り図  36,800,000 yen, 4LDK, Land area 136.05 sq m , Building area 99.77 sq m
3680万円、4LDK、土地面積136.05m2、建物面積99.77m2
 Local appearance photo
現地外観写真
 Local photos, including front road
前面道路含む現地写真
Primary school小学校  Kita Yamato until elementary school 650m
北大和小学校まで650m
Compartment figure区画図  36,800,000 yen, 4LDK, Land area 136.05 sq m , Building area 99.77 sq m
3680万円、4LDK、土地面積136.05m2、建物面積99.77m2
 Local appearance photo
現地外観写真
 Local photos, including front road
前面道路含む現地写真
Junior high school中学校  Tsukimino 1100m until junior high school
つきみ野中学校まで1100m
 Local appearance photo
現地外観写真
Shopping centreショッピングセンター  420m until ion
イオンまで420m
 Local appearance photo
現地外観写真
Location
|