New Homes » Kanto » Kanagawa Prefecture » Aoba-ku, Yokohama City
 
| | Yokohama City, Kanagawa Prefecture, Aoba-ku, 神奈川県横浜市青葉区 |
| Denentoshi Tokyu "Tana" walk 7 minutes 東急田園都市線「田奈」歩7分 |
Price 価格 | | 42,800,000 yen 4280万円 | Floor plan 間取り | | 4LDK 4LDK | Units sold 販売戸数 | | 1 units 1戸 | Land area 土地面積 | | 125.05 sq m (measured) 125.05m2(実測) | Building area 建物面積 | | 93.56 sq m (measured) 93.56m2(実測) | Driveway burden-road 私道負担・道路 | | Nothing, Southeast 2.5m width 無、南東2.5m幅 | Completion date 完成時期(築年月) | | April 2013 2013年4月 | Address 住所 | | Yokohama City, Kanagawa Prefecture, Aoba-ku, Tana-cho 神奈川県横浜市青葉区田奈町 | Traffic 交通 | | Denentoshi Tokyu "Tana" walk 7 minutes 東急田園都市線「田奈」歩7分
| Related links 関連リンク | | [Related Sites of this company] 【この会社の関連サイト】 | Contact お問い合せ先 | | TEL: 0800-602-6179 [Toll free] mobile phone ・ Also available from PHS Caller ID is not notified Please contact the "saw SUUMO (Sumo)" If it does not lead, If the real estate company TEL:0800-602-6179【通話料無料】携帯電話・PHSからもご利用いただけます 発信者番号は通知されません 「SUUMO(スーモ)を見た」と問い合わせください つながらない方、不動産会社の方は
| Building coverage, floor area ratio 建ぺい率・容積率 | | Fifty percent ・ 80% 50%・80% | Land of the right form 土地の権利形態 | | Ownership 所有権 | Structure and method of construction 構造・工法 | | Wooden 2-story 木造2階建 | Company profile 会社概要 | | <Mediation> Governor of Kanagawa Prefecture (1) No. 028042 (Corporation) All Japan Real Estate Association (Corporation) metropolitan area real estate Fair Trade Council member Idec Inc. Yubinbango224-0001 Yokohama City, Kanagawa Prefecture Tsuzuki-ku Nakagawa 1-21-20 <仲介>神奈川県知事(1)第028042号(公社)全日本不動産協会会員 (公社)首都圏不動産公正取引協議会加盟アイデック(株)〒224-0001 神奈川県横浜市都筑区中川1-21-20 |
Local appearance photo現地外観写真  Local (April 2013) Shooting
現地(2013年4月)撮影
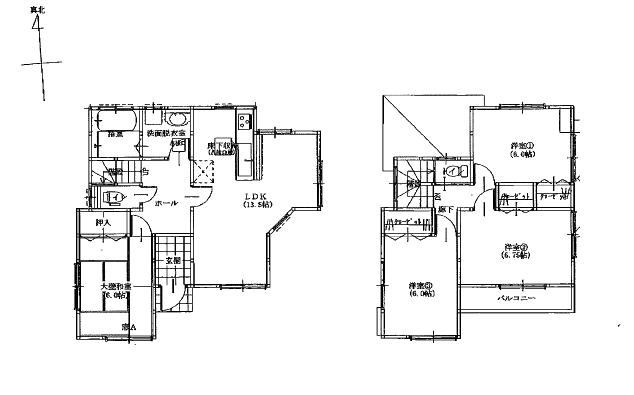
Floor plan間取り図  42,800,000 yen, 4LDK, Land area 125.05 sq m , Building area 93.56 sq m
4280万円、4LDK、土地面積125.05m2、建物面積93.56m2
Livingリビング  Indoor (April 2013) Shooting
室内(2013年4月)撮影
Bathroom浴室  Indoor (April 2013) Shooting
室内(2013年4月)撮影
Kitchenキッチン  Indoor (April 2013) Shooting
室内(2013年4月)撮影
Wash basin, toilet洗面台・洗面所  Indoor (April 2013) Shooting
室内(2013年4月)撮影
Location
|