New Homes » Kanto » Kanagawa Prefecture » Aoba-ku, Yokohama City
 
| | Yokohama City, Kanagawa Prefecture, Aoba-ku, 神奈川県横浜市青葉区 |
| Denentoshi Tokyu "Eda" walk 8 minutes 東急田園都市線「江田」歩8分 |
| New construction condominiums is born in a quiet residential area Eda-cho! Weekend, we have held a local sales meetings, Please feel free to visit! 閑静な住宅地荏田町に新築分譲住宅が誕生です!週末は現地販売会を開催しております、お気軽にご覧ください! |
| Well-equipped face-to-face system Kitchen, Water filter, Dishwasher standard pair glass, Monitor with intercom eco Jaws No. 20 (water heater) Shampoo dresser under-floor storage with a shower, There is each room storage building reference case. Come Please feel free to visitors! 充実の設備対面式システムキッチン、浄水器、食洗機標準装備ペアガラス、モニター付きインターホンエコジョーズ20号(給湯器)シャワー付シャンプードレッサー床下収納、各居室収納建物参考事例がございます。是非お気軽にご来場ください! |
Features pickup 特徴ピックアップ | | Pre-ground survey / Parking two Allowed / Energy-saving water heaters / Super close / It is close to the city / System kitchen / Bathroom Dryer / Yang per good / All room storage / A quiet residential area / LDK15 tatami mats or more / Around traffic fewer / Or more before road 6m / Japanese-style room / Shaping land / Washbasin with shower / Face-to-face kitchen / Toilet 2 places / Bathroom 1 tsubo or more / 2-story / South balcony / Double-glazing / Zenshitsuminami direction / Underfloor Storage / The window in the bathroom / Leafy residential area / Ventilation good / Dish washing dryer / Water filter / Living stairs / City gas / Located on a hill / Maintained sidewalk / Floor heating 地盤調査済 /駐車2台可 /省エネ給湯器 /スーパーが近い /市街地が近い /システムキッチン /浴室乾燥機 /陽当り良好 /全居室収納 /閑静な住宅地 /LDK15畳以上 /周辺交通量少なめ /前道6m以上 /和室 /整形地 /シャワー付洗面台 /対面式キッチン /トイレ2ヶ所 /浴室1坪以上 /2階建 /南面バルコニー /複層ガラス /全室南向き /床下収納 /浴室に窓 /緑豊かな住宅地 /通風良好 /食器洗乾燥機 /浄水器 /リビング階段 /都市ガス /高台に立地 /整備された歩道 /床暖房 | Event information イベント情報 | | Local sales meetings (please visitors to direct local) schedule / Every Saturday, Sunday and public holidays time / 10:00 ~ 18:00 現地販売会(直接現地へご来場ください)日程/毎週土日祝時間/10:00 ~ 18:00 | Price 価格 | | 51,800,000 yen 5180万円 | Floor plan 間取り | | 4LDK 4LDK | Units sold 販売戸数 | | 1 units 1戸 | Total units 総戸数 | | 1 units 1戸 | Land area 土地面積 | | 126.94 sq m (38.39 tsubo) (Registration) 126.94m2(38.39坪)(登記) | Building area 建物面積 | | 94.39 sq m (28.55 tsubo) (Registration) 94.39m2(28.55坪)(登記) | Driveway burden-road 私道負担・道路 | | Nothing 無 | Completion date 完成時期(築年月) | | January 2014 2014年1月 | Address 住所 | | Yokohama City, Kanagawa Prefecture, Aoba-ku, Eda-cho 神奈川県横浜市青葉区荏田町 | Traffic 交通 | | Denentoshi Tokyu "Eda" walk 8 minutes 東急田園都市線「江田」歩8分
| Person in charge 担当者より | | Person in charge of real-estate and building FP real estate consulting skills registrant KoRyo HiroTakashi Age: 20 Daigyokai experience: that are kept in mind during the four-year suggestions, Thing to think you want to live in any home is to your eyes. There various world, House hunting is we believe that if Ikere doing fun. Please consult anything is uneasy point! 担当者宅建FP不動産コンサルティング技能登録者江良 広貴年齢:20代業界経験:4年ご提案時に心掛けている事は、お客様の目線になってどんな家に住みたいか考えていく事です。世の中色々ありますが、家探しは楽しんでやっていければと考えております。ご不安点はなんでもご相談ください! | Contact お問い合せ先 | | TEL: 0800-603-2003 [Toll free] mobile phone ・ Also available from PHS Caller ID is not notified Please contact the "saw SUUMO (Sumo)" If it does not lead, If the real estate company TEL:0800-603-2003【通話料無料】携帯電話・PHSからもご利用いただけます 発信者番号は通知されません 「SUUMO(スーモ)を見た」と問い合わせください つながらない方、不動産会社の方は
| Building coverage, floor area ratio 建ぺい率・容積率 | | 40% ・ 80% 40%・80% | Time residents 入居時期 | | February 2014 schedule 2014年2月予定 | Land of the right form 土地の権利形態 | | Ownership 所有権 | Structure and method of construction 構造・工法 | | Wooden 2-story (framing method) 木造2階建(軸組工法) | Construction 施工 | | (Ltd.) Idasangyo (株)飯田産業 | Use district 用途地域 | | One low-rise 1種低層 | Overview and notices その他概要・特記事項 | | Contact: KoRyo HiroTakashi, Facilities: Public Water Supply, This sewage, City gas, Building confirmation number: HPA-13-04773-1 No., Parking: car space 担当者:江良 広貴、設備:公営水道、本下水、都市ガス、建築確認番号:HPA-13-04773-1号、駐車場:カースペース | Company profile 会社概要 | | <Mediation> Governor of Kanagawa Prefecture (5) No. 020631 (the company), Kanagawa Prefecture Building Lots and Buildings Transaction Business Association (Corporation) metropolitan area real estate Fair Trade Council member Meiji Group Co., Ltd., East housing Yubinbango225-0002 Yokohama City, Kanagawa Prefecture, Aoba-ku, Utsukushigaoka 5-12-10 <仲介>神奈川県知事(5)第020631号(社)神奈川県宅地建物取引業協会会員 (公社)首都圏不動産公正取引協議会加盟明治グループ(株)東日本ハウジング〒225-0002 神奈川県横浜市青葉区美しが丘5-12-10 |
Local appearance photo現地外観写真  Residential land development construction completed
宅地造成工事完了
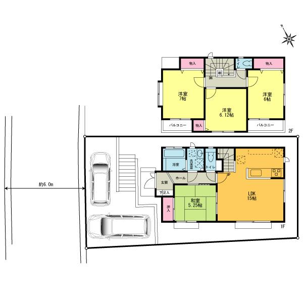
Floor plan間取り図  51,800,000 yen, 4LDK, Land area 126.94 sq m , Building area 94.39 sq m 4LDK car space two possible
5180万円、4LDK、土地面積126.94m2、建物面積94.39m2 4LDKカースペース2台可能
Local photos, including front road前面道路含む現地写真  Front has less car street, A quiet residential area
前面は車通りが少なく、閑静な住宅街
Rendering (appearance)完成予想図(外観)  Building construction case, Simple & modern appearance
建物施工事例、シンプル&モダンな外観
Same specifications photos (living)同仕様写真(リビング)  LDK construction case
LDK施工事例
Same specifications photo (bathroom)同仕様写真(浴室)  Bathroom construction case
浴室施工事例
Same specifications photo (kitchen)同仕様写真(キッチン)  Kitchen construction case, Face-to-face system Kitchen
キッチン施工事例、対面式システムキッチン
Station駅  Good location of an 8-minute walk from Eda Station to 640m Denentoshi Tokyu "Eda Station", Station is a good location conditions of access ran 246 and prefectural road.
江田駅まで640m 東急田園都市線「江田駅」まで徒歩8分の好立地、駅前は246や県道が走りアクセスの良い立地条件です。
Same specifications photos (Other introspection)同仕様写真(その他内観)  Vanity construction case
洗面化粧台施工事例
Streets around周辺の街並み  100m around until close to Eda the town is the road is wide quiet residential area
荏田町近隣まで100m 周辺は道が広く閑静な住宅街です
 Eda-cho is the wide streets of the 100m front side to close. Environment is good in the compartment maintenance areas
荏田町近隣まで100m 表側の広い通りです。区画整備地内で環境良好です
Supermarketスーパー  Eda is Tokyu store that is open until midnight 732m to Tokyu Store Chain
江田東急ストアまで732m 深夜まで営業している東急ストアです
Convenience storeコンビニ  529m until Lawson Aoba 246 shops is a short walk to the convenient convenience store is also a little shopping
ローソン青葉246店まで529m ちょっとした買い物にも便利なコンビニまで歩いてすぐです
Drug storeドラッグストア  Fit Care ・ 228m drugstore until the depot Eda 246 shops are also nearby
フィットケア・デポ荏田246店まで228m ドラッグストアも近くにあります
Primary school小学校  Yokohama is a stand Eda popular elementary school well is 823m environment up to elementary school
横浜市立荏田小学校まで823m 環境が良く人気の高い小学校です
Park公園  Akada East Park 919m park until Thank number
赤田東公園まで919m 公園は多数ございます
Streets around周辺の街並み  It is a beautiful cityscape that was equipped with 100m road to nearby streets
近隣の街並みまで100m 道路が整った奇麗な街並みです
Location
|