New Homes » Kanto » Kanagawa Prefecture » Aoba-ku, Yokohama City
 
| | Yokohama City, Kanagawa Prefecture, Aoba-ku, 神奈川県横浜市青葉区 |
| Denentoshi Tokyu "Fujigaoka" walk 15 minutes 東急田園都市線「藤が丘」歩15分 |
| □ Defect liability insurance ・ Flat 35S (interest rate type B) corresponding ■ Floor heating conditioning in the living dining □ Fast Tomei also movement of the inter-even near car is smooth! □瑕疵担保責任保険・フラット35S(金利タイプB)対応■リビングダイニングには床暖房完備□高速東名インターも近く車での移動もスムーズです! |
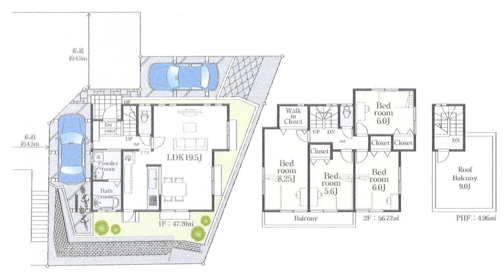
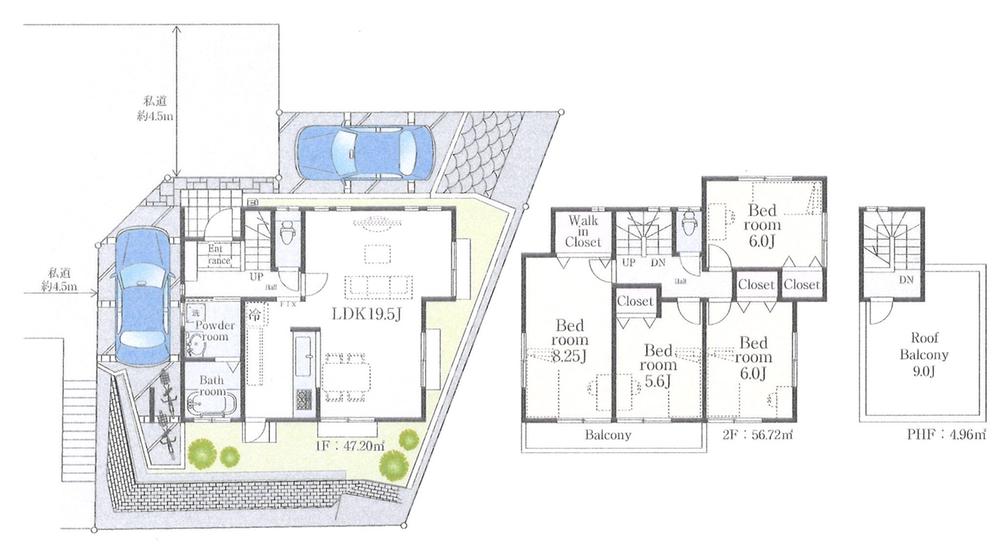
| ■ Denentoshi "Fujigaoka" station a 15-minute walk ■ 4LDK + walk-in closet + roof balcony ■ Land area: 132.91 2-story sq m ■ Two car space ■ Garden in south ■ Close to Chigusadai second park ■ LDK19.5 Pledge ■田園都市線「藤が丘」駅徒歩15分■4LDK+ウォークインクローゼット+ルーフバルコニー■土地面積:132.91m2の2階建■カースペース2台■南面にお庭■近隣には千草台第2公園があります■LDK19.5帖 |
Features pickup 特徴ピックアップ | | Corresponding to the flat-35S / Pre-ground survey / Parking two Allowed / LDK18 tatami mats or more / Bathroom Dryer / Yang per good / All room storage / A quiet residential area / Around traffic fewer / Corner lot / Face-to-face kitchen / Toilet 2 places / Bathroom 1 tsubo or more / 2-story / 2 or more sides balcony / South balcony / Double-glazing / Warm water washing toilet seat / Nantei / The window in the bathroom / TV monitor interphone / Leafy residential area / Ventilation good / All living room flooring / Dish washing dryer / Walk-in closet / Water filter / City gas / roof balcony / Floor heating フラット35Sに対応 /地盤調査済 /駐車2台可 /LDK18畳以上 /浴室乾燥機 /陽当り良好 /全居室収納 /閑静な住宅地 /周辺交通量少なめ /角地 /対面式キッチン /トイレ2ヶ所 /浴室1坪以上 /2階建 /2面以上バルコニー /南面バルコニー /複層ガラス /温水洗浄便座 /南庭 /浴室に窓 /TVモニタ付インターホン /緑豊かな住宅地 /通風良好 /全居室フローリング /食器洗乾燥機 /ウォークインクロゼット /浄水器 /都市ガス /ルーフバルコニー /床暖房 | Event information イベント情報 | | Local tours (Please be sure to ask in advance) schedule / Every Saturday, Sunday and public holidays time / 10:00 ~ 17:00 ■ Alone Inquiry Request, Please contact. ■ Property presentation during the reception 現地見学会(事前に必ずお問い合わせください)日程/毎週土日祝時間/10:00 ~ 17:00■資料請求のお問合せだけでも、ご連絡下さい。■物件プレゼンテーション受付中 | Price 価格 | | 52,800,000 yen 5280万円 | Floor plan 間取り | | 4LDK 4LDK | Units sold 販売戸数 | | 1 units 1戸 | Total units 総戸数 | | 1 units 1戸 | Land area 土地面積 | | 132.91 sq m (measured) 132.91m2(実測) | Building area 建物面積 | | 108.88 sq m (measured) 108.88m2(実測) | Driveway burden-road 私道負担・道路 | | Share equity 199.05 sq m × (0.1 / 7) 共有持分199.05m2×(0.1/7) | Completion date 完成時期(築年月) | | February 2014 2014年2月 | Address 住所 | | Yokohama City, Kanagawa Prefecture, Aoba-ku, Chigusadai 神奈川県横浜市青葉区千草台 | Traffic 交通 | | Denentoshi Tokyu "Fujigaoka" walk 15 minutes Tokyu Denentoshi "Aobadai" bus 9 minutes in Ayumi Yato 3 minutes 東急田園都市線「藤が丘」歩15分 東急田園都市線「青葉台」バス9分中谷戸歩3分
| Related links 関連リンク | | [Related Sites of this company] 【この会社の関連サイト】 | Person in charge 担当者より | | Rep Watanabe Kaoru Age: 30 Daigyokai Experience: 8 years sensibility to cherish, Until you find the most of the property for our customers, I will be dating thoroughly. Thank you. 担当者渡辺 薫年齢:30代業界経験:8年感性を大切にして、お客様にとって一番の物件が見つかるまで、とことんお付き合いさせていただきます。宜しくお願いいたします。 | Contact お問い合せ先 | | TEL: 0800-602-5816 [Toll free] mobile phone ・ Also available from PHS Caller ID is not notified Please contact the "saw SUUMO (Sumo)" If it does not lead, If the real estate company TEL:0800-602-5816【通話料無料】携帯電話・PHSからもご利用いただけます 発信者番号は通知されません 「SUUMO(スーモ)を見た」と問い合わせください つながらない方、不動産会社の方は
| Building coverage, floor area ratio 建ぺい率・容積率 | | 60% ・ 150% 60%・150% | Time residents 入居時期 | | Consultation 相談 | Land of the right form 土地の権利形態 | | Ownership 所有権 | Structure and method of construction 構造・工法 | | Wooden 2-story 木造2階建 | Use district 用途地域 | | One middle and high 1種中高 | Other limitations その他制限事項 | | Height district, Quasi-fire zones 高度地区、準防火地域 | Overview and notices その他概要・特記事項 | | Contact: Watanabe Kaoru, Facilities: Public Water Supply, This sewage, City gas, Building confirmation number: No. 13UDI1K Ken 00547, Parking: car space 担当者:渡辺 薫、設備:公営水道、本下水、都市ガス、建築確認番号:第13UDI1K建00547号、駐車場:カースペース | Company profile 会社概要 | | <Mediation> Minister of Land, Infrastructure and Transport (1) No. 008243 (Ltd.) USTRUST (Us Trust) Kawasaki Miyamaedaira shop Yubinbango216-0007 Kawasaki City, Kanagawa Prefecture Miyamae-ku, Kodai 2-4-5 MC Plaza 202 <仲介>国土交通大臣(1)第008243号(株)USTRUST(アストラスト)川崎宮前平店〒216-0007 神奈川県川崎市宮前区小台2-4-5 MCプラザ202 |
Floor plan間取り図  4LDK
4LDK
Rendering (appearance)完成予想図(外観)  Rendering about 9 Pledge of roof balcony with your laundry, Afternoon tea time! Tsukaimichi are endless!
完成予想図約9帖のルーフバルコニ付お洗濯もの、午後のティータイム!使い道は無限に広がります!
Floor plan間取り図  52,800,000 yen, 4LDK, Land area 132.91 sq m , Building area 108.88 sq m 4LDK + WIC + roof balcony 19.5 Pledge of living-dining kitchen!
5280万円、4LDK、土地面積132.91m2、建物面積108.88m2 4LDK+WIC+ルーフバルコニー 19.5帖のリビングダイニングキッチン!
Same specifications photos (living)同仕様写真(リビング)  Example of construction Water purification kitchen faucet! Dish washing washing machine!
施工例 浄水キッチン水栓! 食器洗洗浄機!
Same specifications photo (kitchen)同仕様写真(キッチン)  Example of construction
施工例
Local photos, including front road前面道路含む現地写真  In the address of Chigusadai, Two car spaces reserved.
千草台の住所で、カースペース2台確保。
Park公園  Chigusadai 300m to the second park
千草台第二公園まで300m
Other localその他現地  The first kind medium and high-rise exclusive residential area
第1種中高層住居専用地域
Otherその他  Neighborhood park
近隣公園
 Other local
その他現地
 Other local
その他現地
Location
|