New Homes » Kanto » Kanagawa Prefecture » Aoba-ku, Yokohama City
 
| | Yokohama City, Kanagawa Prefecture, Aoba-ku, 神奈川県横浜市青葉区 |
| Denentoshi Tokyu "Fujigaoka" walk 23 minutes 東急田園都市線「藤が丘」歩23分 |
| This is an introduction from the information net that want to live. Car space two or more spacious site is attractive. Jewels in a quiet residential area. 住みたい情報ネットからのご紹介です。カースペース2台以上の広々とした敷地が魅力です。閑静な住宅街に御座います。 |
| It is looking for a city of the house you want to live ・ ・ ・ Please leave the information net that want to live 住みたい街の家さがしは・・・住みたい情報ネットにお任せください |
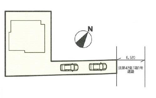
Features pickup 特徴ピックアップ | | Corresponding to the flat-35S / Parking two Allowed / LDK18 tatami mats or more / Facing south / System kitchen / Bathroom Dryer / Yang per good / All room storage / A quiet residential area / Japanese-style room / Washbasin with shower / Face-to-face kitchen / Toilet 2 places / Bathroom 1 tsubo or more / 2-story / South balcony / Warm water washing toilet seat / Underfloor Storage / The window in the bathroom / TV monitor interphone / Water filter / City gas フラット35Sに対応 /駐車2台可 /LDK18畳以上 /南向き /システムキッチン /浴室乾燥機 /陽当り良好 /全居室収納 /閑静な住宅地 /和室 /シャワー付洗面台 /対面式キッチン /トイレ2ヶ所 /浴室1坪以上 /2階建 /南面バルコニー /温水洗浄便座 /床下収納 /浴室に窓 /TVモニタ付インターホン /浄水器 /都市ガス | Price 価格 | | 49,800,000 yen 4980万円 | Floor plan 間取り | | 4LDK 4LDK | Units sold 販売戸数 | | 1 units 1戸 | Total units 総戸数 | | 1 units 1戸 | Land area 土地面積 | | 194.01 sq m (registration) 194.01m2(登記) | Building area 建物面積 | | 101.02 sq m (registration) 101.02m2(登記) | Driveway burden-road 私道負担・道路 | | Nothing, Northeast 6.5m width (contact the road width 3m) 無、北東6.5m幅(接道幅3m) | Completion date 完成時期(築年月) | | March 2014 2014年3月 | Address 住所 | | Yokohama City, Kanagawa Prefecture, Aoba-ku, Mitakedai 20-6 神奈川県横浜市青葉区みたけ台20-6 | Traffic 交通 | | Denentoshi Tokyu "Fujigaoka" walk 23 minutes Denentoshi Tokyu "Aobadai" walk 23 minutes Denentoshi Tokyu "Ichigao" walk 34 minutes 東急田園都市線「藤が丘」歩23分 東急田園都市線「青葉台」歩23分 東急田園都市線「市が尾」歩34分
| Related links 関連リンク | | [Related Sites of this company] 【この会社の関連サイト】 | Person in charge 担当者より | | The first distribution division personnel Kimura Yunenrei: 30 Daigyokai Experience: 3 years born in Chofu, Tokyo. But I grew up is around Tachikawa, Haunt area because the hobby is the drive is widely, Local information also recommended including let me introduce. It will help you find the customer's BEST1 together !! 担当者第1流通事業部 木村優年齢:30代業界経験:3年生まれは東京の調布市。育ちは立川周辺ですが、趣味がドライブですので出没エリアは幅広く、オススメの地域情報も含めてご紹介させて頂きます。お客様のBEST1を一緒に見つけましょう!! | Contact お問い合せ先 | | TEL: 0800-603-9093 [Toll free] mobile phone ・ Also available from PHS Caller ID is not notified Please contact the "saw SUUMO (Sumo)" If it does not lead, If the real estate company TEL:0800-603-9093【通話料無料】携帯電話・PHSからもご利用いただけます 発信者番号は通知されません 「SUUMO(スーモ)を見た」と問い合わせください つながらない方、不動産会社の方は
| Building coverage, floor area ratio 建ぺい率・容積率 | | 40% ・ 80% 40%・80% | Time residents 入居時期 | | Consultation 相談 | Land of the right form 土地の権利形態 | | Ownership 所有権 | Structure and method of construction 構造・工法 | | Wooden 2-story 木造2階建 | Use district 用途地域 | | One low-rise 1種低層 | Overview and notices その他概要・特記事項 | | The person in charge: first distribution business unit Yu Kimura, Facilities: Public Water Supply, This sewage, City gas, Building confirmation number: 05676, Parking: car space 担当者:第1流通事業部 木村優、設備:公営水道、本下水、都市ガス、建築確認番号:05676、駐車場:カースペース | Company profile 会社概要 | | <Mediation> Governor of Tokyo (1) the first 090,169 No. live want information net (Ltd.) Sumitai headquarters Yubinbango194-0013 Machida, Tokyo Haramachida 1-1-3 high stone building the fourth floor <仲介>東京都知事(1)第090169号住みたい情報ネット(株)スミタイ本社〒194-0013 東京都町田市原町田1-1-3 ハイストーンビル4階 |
 Local appearance photo
現地外観写真
 Local appearance photo
現地外観写真
Floor plan間取り図  49,800,000 yen, 4LDK, Land area 194.01 sq m , Building area 101.02 sq m
4980万円、4LDK、土地面積194.01m2、建物面積101.02m2
 Local appearance photo
現地外観写真
 Local photos, including front road
前面道路含む現地写真
Kindergarten ・ Nursery幼稚園・保育園  760m to Samyang kindergarten
三陽幼稚園まで760m
 Other
その他
 Local photos, including front road
前面道路含む現地写真
Primary school小学校  Mitakedai until elementary school 190m
みたけ台小学校まで190m
Junior high school中学校  Mitakedai 350m until junior high school
みたけ台中学校まで350m
Supermarketスーパー  650m to the Co-op Kanagawa
コープかながわまで650m
Other Environmental Photoその他環境写真  1840m to Fujigaoka Station
藤が丘駅まで1840m
 1840m to Fujigaoka Station
藤が丘駅まで1840m
 1840m to aobadai station
青葉台駅まで1840m
 1840m to aobadai station
青葉台駅まで1840m
Location
|