New Homes » Kanto » Kanagawa Prefecture » Aoba-ku, Yokohama City
 
| | Yokohama City, Kanagawa Prefecture, Aoba-ku, 神奈川県横浜市青葉区 |
| Denentoshi Tokyu "Tana" walk 4 minutes 東急田園都市線「田奈」歩4分 |
| ☆ Exposure to the sun ・ View ・ Living environment favorable ☆ [Standard specification] ● ground improvement and construction depending on the ground research status ● Hiroshi tiled ● outer wall soft ricin spraying ● about 2 Pledge of attic storage ● All rooms pair glass ● entrance card key ☆陽当り・眺望・住環境良好☆【標準仕様】●地盤調査状況に応じ地盤改良施工●洋瓦葺き ●外壁ソフトリシン吹付け ●約2帖の小屋裏収納 ●全室ペアガラス ●玄関カードキー |
| ● all the opening screen door standard ● 1 floor of the shutter and the surface lattice standard ● intercom with color monitor (hands-free base unit with one) ● system kitchen (dishwasher, Floor sliding door storage, Water filter, Soft closing with storage drawer function) ● unit bus 1616 (heating function with dryer, mist, Bathroom TV other) etc. ● Payment example Own resources 8 million yen, Borrowings In the case of 4,380 yen [Monthly 119,101 yen] ● introduce financial institutions / Sumitomo Mitsui Banking Corporation ● loan limit / 100 million yen ● percentage of the loan limit / Hundred percent ● repayment period / 35 years ● interest rate / -1.7% From variable interest rate 2.475% (real 0.775%) ※ annual income, Financing content depending on the conditions might be different. ●全開口部網戸標準 ●1階部分シャッター及び面格子標準 ●カラーモニター付インターホン(ハンズフリー親機1台付) ●システムキッチン(食器洗い乾燥機、フロアスライドドア収納、浄水器、ソフトクロージング収納引出機能付) ●ユニットバス1616(暖房機能付乾燥機、ミスト、浴室TV他) etc.●お支払例 自己資金 800万円、 借入金額 4,380万円の場合 【月々119,101円】●紹介金融機関/三井住友銀行 ●融資限度額/1億円 ●融資限度の割合/100% ●返済期間/35年 ●利率/変動金利2.475%から-1.7%(実質0.775%)※年収、諸条件により融資内容が異なる場合がございます。 |
Features pickup 特徴ピックアップ | | 2 along the line more accessible / Immediate delivery Allowed / Yang per good / Around traffic fewer / Or more before road 6m / Shaping land / Leafy residential area / Good view / City gas / Located on a hill / Building plan example there 2沿線以上利用可 /即引渡し可 /陽当り良好 /周辺交通量少なめ /前道6m以上 /整形地 /緑豊かな住宅地 /眺望良好 /都市ガス /高台に立地 /建物プラン例有り | Event information イベント情報 | | Local guide Board (please make a reservation beforehand) schedule / During the public time / 10:00 ~ 16:00 tour of the completed construction cases, Specification of the completed ・ Available upon reservation of facilities such as presentation. 現地案内会(事前に必ず予約してください)日程/公開中時間/10:00 ~ 16:00完成施工例の見学、完成後の仕様・設備等のプレゼンテーションのご予約を承ります。 | Price 価格 | | 37,800,000 yen 3780万円 | Building coverage, floor area ratio 建ぺい率・容積率 | | 60% ・ 200% 60%・200% | Sales compartment 販売区画数 | | 1 compartment 1区画 | Total number of compartments 総区画数 | | 2 compartment 2区画 | Land area 土地面積 | | 104.59 sq m (31.63 square meters) 104.59m2(31.63坪) | Driveway burden-road 私道負担・道路 | | Nothing, East 6.5m width (contact the road width 7.3m) 無、東6.5m幅(接道幅7.3m) | Land situation 土地状況 | | Vacant lot 更地 | Address 住所 | | Yokohama City, Kanagawa Prefecture, Aoba-ku, Tana-cho 神奈川県横浜市青葉区田奈町 | Traffic 交通 | | Denentoshi Tokyu "Tana" walk 4 minutes Denentoshi Tokyu "Aobadai" walk 10 minutes Denentoshi Tokyu "Nagatsuta" walk 20 minutes 東急田園都市線「田奈」歩4分 東急田園都市線「青葉台」歩10分 東急田園都市線「長津田」歩20分
| Related links 関連リンク | | [Related Sites of this company] 【この会社の関連サイト】 | Person in charge 担当者より | | Person in charge of real-estate and building Sekino Naoto Age: 50 Daigyokai experience: from the perspective of 24-year customer, So that managed an introduction of property, We strive every day. 担当者宅建関野 直人年齢:50代業界経験:24年お客様の立場に立って、物件のご紹介をいたすよう、日々努力しております。 | Contact お問い合せ先 | | TEL: 0800-603-1061 [Toll free] mobile phone ・ Also available from PHS Caller ID is not notified Please contact the "saw SUUMO (Sumo)" If it does not lead, If the real estate company TEL:0800-603-1061【通話料無料】携帯電話・PHSからもご利用いただけます 発信者番号は通知されません 「SUUMO(スーモ)を見た」と問い合わせください つながらない方、不動産会社の方は
| Land of the right form 土地の権利形態 | | Ownership 所有権 | Building condition 建築条件 | | With 付 | Time delivery 引き渡し時期 | | Immediate delivery allowed 即引渡し可 | Land category 地目 | | Residential land 宅地 | Use district 用途地域 | | One dwelling 1種住居 | Other limitations その他制限事項 | | Residential land development construction regulation area, Height district, Quasi-fire zones, Height ceiling Yes, Shade limit Yes 宅地造成工事規制区域、高度地区、準防火地域、高さ最高限度有、日影制限有 | Overview and notices その他概要・特記事項 | | Contact: Sekino Naoto, Facilities: Public Water Supply, This sewage, City gas 担当者:関野 直人、設備:公営水道、本下水、都市ガス | Company profile 会社概要 | | <Mediation> Governor of Kanagawa Prefecture (11) No. 008896 (the company), Kanagawa Prefecture Building Lots and Buildings Transaction Business Association (Corporation) metropolitan area real estate Fair Trade Council member Meiji Group Co., Ltd. Hauser Yubinbango216-0033 Kawasaki-shi, Kanagawa-ku, Miyamae Miyazaki 2-6-11 <仲介>神奈川県知事(11)第008896号(社)神奈川県宅地建物取引業協会会員 (公社)首都圏不動産公正取引協議会加盟明治グループ(株)日本ハウザー〒216-0033 神奈川県川崎市宮前区宮崎2-6-11 |
Local photos, including front road前面道路含む現地写真  Site (site (December 2013) Shooting
現地(現地(2013年12月)撮影
Local land photo現地土地写真  Local (12 May 2013) Shooting
現地(2013年12月)撮影
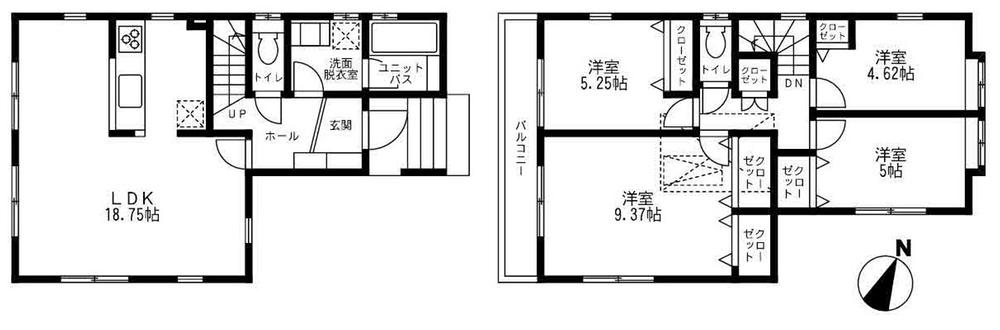
Building plan example (floor plan)建物プラン例(間取り図)  Building plan example Building price 14 million yen Building area 101.02 sq m
建物プラン例 建物価格 1400万円 建物面積 101.02m2
Compartment figure区画図  Land price 37,800,000 yen, Land area 104.59 sq m
土地価格3780万円、土地面積104.59m2
Local land photo現地土地写真  Site (site (December 2013) Shooting
現地(現地(2013年12月)撮影
View photos from the local現地からの眺望写真  View from the site (site (December 2013) Shooting
現地からの眺望(現地(2013年12月)撮影
Local land photo現地土地写真  Site (site (December 2013) Shooting
現地(現地(2013年12月)撮影
Location
|