New Homes » Kanto » Kanagawa Prefecture » Yokohama Asahi-ku
 
| | Yokohama-shi, Kanagawa-ku, Asahi 神奈川県横浜市旭区 |
| Sagami Railway Main Line "Mitsuzakai" walk 10 minutes 相鉄本線「三ツ境」歩10分 |
| Stylish residential split-level home. There is also shopping is convenient large supermarket close to. Air conditioning in all room, Dishwasher, Cupboard, And equipped with a fully equipped, such as lighting equipment. スキップフロアのおしゃれな住宅です。近隣に大型スーパーもあり買い物が便利です。全居室にはエアコン、食洗機、カップボード、照明器具など充実の設備を搭載します。 |
| LDK18 tatami mats or more, Super close, Yang per good, A quiet residential area, It is close to the city, Year Available, Parking two Allowed, 2 along the line more accessible, System kitchen, Bathroom Dryer, All room storage, Around traffic fewerese-style room, garden, Washbasin with shower, Face-to-face kitchen, Barrier-free, Toilet 2 places, Bathroom 1 tsubo or more, 2-story, Southeast direction, Double-glazing, Warm water washing toilet seat, The window in the bathroom, Leafy residential area, Dish washing dryer, Water filter, Living stairs, City gas LDK18畳以上、スーパーが近い、陽当り良好、閑静な住宅地、市街地が近い、年内入居可、駐車2台可、2沿線以上利用可、システムキッチン、浴室乾燥機、全居室収納、周辺交通量少なめ、和室、庭、シャワー付洗面台、対面式キッチン、バリアフリー、トイレ2ヶ所、浴室1坪以上、2階建、東南向き、複層ガラス、温水洗浄便座、浴室に窓、緑豊かな住宅地、食器洗乾燥機、浄水器、リビング階段、都市ガス |
Features pickup 特徴ピックアップ | | Parking two Allowed / 2 along the line more accessible / LDK18 tatami mats or more / Super close / It is close to the city / System kitchen / Bathroom Dryer / Yang per good / All room storage / A quiet residential area / Around traffic fewer / Japanese-style room / garden / Washbasin with shower / Face-to-face kitchen / Barrier-free / Toilet 2 places / Bathroom 1 tsubo or more / 2-story / Southeast direction / Double-glazing / Warm water washing toilet seat / The window in the bathroom / Leafy residential area / Dish washing dryer / Water filter / Living stairs / City gas 駐車2台可 /2沿線以上利用可 /LDK18畳以上 /スーパーが近い /市街地が近い /システムキッチン /浴室乾燥機 /陽当り良好 /全居室収納 /閑静な住宅地 /周辺交通量少なめ /和室 /庭 /シャワー付洗面台 /対面式キッチン /バリアフリー /トイレ2ヶ所 /浴室1坪以上 /2階建 /東南向き /複層ガラス /温水洗浄便座 /浴室に窓 /緑豊かな住宅地 /食器洗乾燥機 /浄水器 /リビング階段 /都市ガス | Event information イベント情報 | | Local guide Board (please make a reservation beforehand) schedule / Now open 現地案内会(事前に必ず予約してください)日程/公開中 | Price 価格 | | 37,800,000 yen ~ 38,800,000 yen 3780万円 ~ 3880万円 | Floor plan 間取り | | 4LDK 4LDK | Units sold 販売戸数 | | 2 units 2戸 | Total units 総戸数 | | 2 units 2戸 | Land area 土地面積 | | 107.5 sq m ~ 110.5 sq m (registration) 107.5m2 ~ 110.5m2(登記) | Building area 建物面積 | | 97.3 sq m ~ 97.5 sq m (registration) 97.3m2 ~ 97.5m2(登記) | Driveway burden-road 私道負担・道路 | | Road width: 4m, Asphaltic pavement 道路幅:4m、アスファルト舗装 | Completion date 完成時期(築年月) | | 2013 end of October 2013年10月末 | Address 住所 | | Yokohama-shi, Kanagawa-ku, Asahi Nakakibogaoka 226-7 神奈川県横浜市旭区中希望が丘226-7 | Traffic 交通 | | Sagami Railway Main Line "Mitsuzakai" walk 10 minutes Sagami Railway Main Line "Kibogaoka" walk 11 minutes 相鉄本線「三ツ境」歩10分 相鉄本線「希望ヶ丘」歩11分
| Related links 関連リンク | | [Related Sites of this company] 【この会社の関連サイト】 | Contact お問い合せ先 | | YuAi Home (Ltd.) TEL: 045-954-1311 Please inquire as "saw SUUMO (Sumo)" 優愛ホーム(株)TEL:045-954-1311「SUUMO(スーモ)を見た」と問い合わせください | Building coverage, floor area ratio 建ぺい率・容積率 | | Kenpei rate: 50%, Volume ratio: 100% 建ペい率:50%、容積率:100% | Time residents 入居時期 | | Consultation 相談 | Land of the right form 土地の権利形態 | | Ownership 所有権 | Structure and method of construction 構造・工法 | | Wooden 2-story (framing method) 木造2階建(軸組工法) | Use district 用途地域 | | One low-rise 1種低層 | Land category 地目 | | Residential land 宅地 | Other limitations その他制限事項 | | Residential land development construction regulation area 宅地造成工事規制区域 | Overview and notices その他概要・特記事項 | | Building confirmation number: 01418 other 建築確認番号:01418他 | Company profile 会社概要 | | <Mediation> Governor of Kanagawa Prefecture (4) The 021,774 GoYuAi Home Co., Ltd. Yubinbango241-0022 Yokohama-shi, Kanagawa-ku, Asahi Tsurugamine 1-1-6 <仲介>神奈川県知事(4)第021774号優愛ホーム(株)〒241-0022 神奈川県横浜市旭区鶴ケ峰1-1-6 |
Local appearance photo現地外観写真  Local (2013 early December) Shooting
現地(2013年12月上旬)撮影
Same specifications photos (living)同仕様写真(リビング)  Same specifications
同仕様
Same specifications photos (appearance)同仕様写真(外観)  Same specifications
同仕様
Same specifications photo (kitchen)同仕様写真(キッチン)  Same specifications
同仕様
Same specifications photos (appearance)同仕様写真(外観)  Same specifications (solar power generation system)
同仕様(太陽光発電システム)
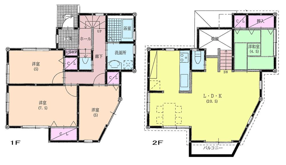
Otherその他  A Building floor plan
A号棟間取り図
 B Building floor plan
B号棟間取り図
Same specifications photo (kitchen)同仕様写真(キッチン)  Same specifications
同仕様
Local appearance photo現地外観写真  Local (late October 2013) Shooting
現地(2013年10月下旬)撮影
Same specifications photo (bathroom)同仕様写真(浴室)  Same specifications
同仕様
Local appearance photo現地外観写真  Local (late July 2013) Shooting
現地(2013年7月下旬)撮影
 Local (mid-September 2013) Shooting
現地(2013年9月中旬)撮影
 Local (early October 2013) Shooting
現地(2013年10月上旬)撮影
 Local (mid-October 2013) Shooting
現地(2013年10月中旬)撮影
 Local (late October 2013) Shooting
現地(2013年10月下旬)撮影
 Local (early November 2013) Shooting
現地(2013年11月上旬)撮影
Location
|