New Homes » Kanto » Kanagawa Prefecture » Yokohama Asahi-ku
 
| | Yokohama-shi, Kanagawa-ku, Asahi 神奈川県横浜市旭区 |
| Sagami Railway Main Line "Mitsuzakai" bus 7 minutes Harabun walk 1 minute 相鉄本線「三ツ境」バス7分原分歩1分 |
Price 価格 | | 32,800,000 yen 3280万円 | Floor plan 間取り | | 4LDK 4LDK | Units sold 販売戸数 | | 1 units 1戸 | Land area 土地面積 | | 136.69 sq m (measured) 136.69m2(実測) | Building area 建物面積 | | 100.19 sq m (measured) 100.19m2(実測) | Driveway burden-road 私道負担・道路 | | Nothing 無 | Completion date 完成時期(築年月) | | March 2013 2013年3月 | Address 住所 | | Yokohama-shi, Kanagawa-ku, Asahi Kamikawai cho 神奈川県横浜市旭区上川井町 | Traffic 交通 | | Sagami Railway Main Line "Mitsuzakai" bus 7 minutes Harabun walk 1 minute 相鉄本線「三ツ境」バス7分原分歩1分
| Contact お問い合せ先 | | TEL: 0800-805-6249 [Toll free] mobile phone ・ Also available from PHS Caller ID is not notified Please contact the "saw SUUMO (Sumo)" If it does not lead, If the real estate company TEL:0800-805-6249【通話料無料】携帯電話・PHSからもご利用いただけます 発信者番号は通知されません 「SUUMO(スーモ)を見た」と問い合わせください つながらない方、不動産会社の方は
| Building coverage, floor area ratio 建ぺい率・容積率 | | 60% ・ 200% 60%・200% | Time residents 入居時期 | | Consultation 相談 | Land of the right form 土地の権利形態 | | Ownership 所有権 | Structure and method of construction 構造・工法 | | Wooden 2-story 木造2階建 | Use district 用途地域 | | Semi-industrial 準工業 | Other limitations その他制限事項 | | Other share land interests about 0.5m2 Yes Irregular land 他共有土地持分約0.5m2有 不整形地 | Overview and notices その他概要・特記事項 | | Facilities: Public Water Supply, This sewage, Individual LPG, Parking: No 設備:公営水道、本下水、個別LPG、駐車場:無 | Company profile 会社概要 | | <Mediation> Minister of Land, Infrastructure and Transport (3) The 006,183 No. housing Information Center Futamatagawa shop Seongnam Construction (Ltd.) Yubinbango241-0822 Yokohama-shi, Kanagawa-ku, Asahi Sachigaoka 46-10 <仲介>国土交通大臣(3)第006183号住宅情報館 二俣川店城南建設(株)〒241-0822 神奈川県横浜市旭区さちが丘46-10 |
 Kitchen
キッチン
Kitchenキッチン  Kitchen storage
キッチン収納
Livingリビング  Living-dining
リビングダイニング
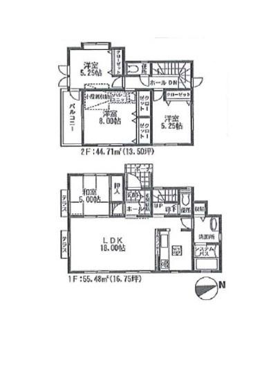
Floor plan間取り図  32,800,000 yen, 4LDK, Land area 136.69 sq m , Building area 100.19 sq m floor plan
3280万円、4LDK、土地面積136.69m2、建物面積100.19m2 間取り図
Livingリビング  Living-dining
リビングダイニング
 Bathroom
浴室
Non-living roomリビング以外の居室  Western style room
洋室
Wash basin, toilet洗面台・洗面所  Washroom
洗面所
Receipt収納  closet
クローゼット
 Toilet
トイレ
Other introspectionその他内観  Indoor photo
室内写真
Livingリビング  Living-dining
リビングダイニング
Wash basin, toilet洗面台・洗面所  Washroom
洗面所
Other introspectionその他内観  hole
ホール
Livingリビング  living ・ Japanese-style room
リビング・和室
Location
|