New Homes » Kanto » Kanagawa Prefecture » Yokohama Hodogaya-ku


Yokohama, Kanagawa Prefecture Hodogaya-ku,
Sagami Railway Main Line "Nishitani" walk 6 minutes
Day in the popular Nishitani Station walk 6 minutes 3 direction land, Ventilation good. It will be built your favorite building in the building free plan.
Pre-ground survey, Yang per good, Flat to the station, A quiet residential area, Around traffic fewer, Or more before road 6m, Corner lot, Leafy residential area, Mu front building, Good view, City gas, Located on a hill, Flat terrain, Building plan example there
Features pickup
Pre-ground survey / Yang per good / Flat to the station / A quiet residential area / Around traffic fewer / Or more before road 6m / Corner lot / Leafy residential area / Mu front building / Good view / City gas / Located on a hill / Flat terrain / Building plan example there
Price
30,200,000 yen
Building coverage, floor area ratio
Fifty percent ・ 80%
Sales compartment
1 compartment
Total number of compartments
1 compartment
Land area
166.39 sq m (50.33 tsubo) (Registration)
Driveway burden-road
Nothing, Southeast 6m width (contact the road width 13.1m), East 6m width (contact the road width 6.7m), Southwest 2.3m width (contact the road width 2.3m)
Land situation
Furuya There
Address
Yokohama, Kanagawa Prefecture Hodogaya-ku, Kamisugeda cho
Traffic
Sagami Railway Main Line "Nishitani" walk 6 minutes
Sagami Railway Main Line "Tsurugamine" walk 28 minutes
Sagami Railway Main Line "Kamihoshikawa" walk 25 minutes
Person in charge
[Regarding this property.] To the Corporation Republic of home sales if the properties of that. It owns unlisted property number. Please tell us your desired conditions. We offer the property to suit you.
Contact
TEL: 0800-602-5414 [Toll free] mobile phone ・ Also available from PHS
Caller ID is not notified
Please contact the "saw SUUMO (Sumo)"
If it does not lead, If the real estate company
Land of the right form
Ownership
Building condition
With
Time delivery
Consultation
Land category
Residential land
Use district
One low-rise
Overview and notices
Facilities: Public Water Supply, This sewage, City gas
Company profile
<Mediation> Governor of Kanagawa Prefecture (1) No. 027655 (Ltd.) Republic of home sales Yubinbango221-0014 Kanagawa Prefecture, Kanagawa-ku, Yokohama-shi Irie 1-33-28


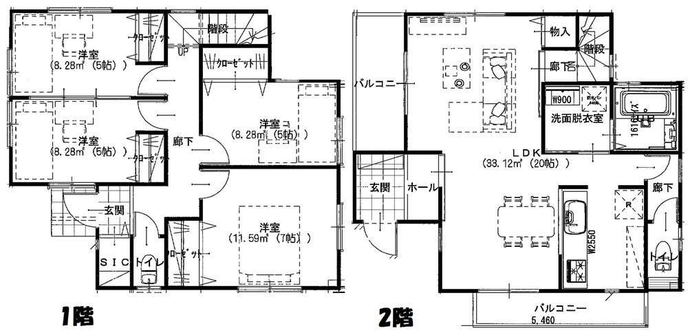
Building plan example (floor plan)

Building plan example (floor plan). Building plan example
Building plan example

Building plan example (Perth ・ appearance)

Building plan example (Perth ・ appearance). Building plan example
Building plan example

Building plan example (Perth ・ Introspection)

Building plan example (Perth ・ Introspection). Building plan example
Building plan example

Building plan example (Perth ・ Introspection). Building plan example
Building plan example

Supermarket

Supermarket. Maruetsu Nishitani to the store 404m
Maruetsu Nishitani to the store 404m

Building plan example (Perth ・ Introspection)

Building plan example (Perth ・ Introspection). Building plan example
Building plan example

Drug store

Drug store. 2121m to hack drag Tsurugamine shop
2121m to hack drag Tsurugamine shop

Building plan example (introspection photo)

Building plan example (introspection photo). Building plan example
Building plan example

Junior high school

Junior high school. 1149m to Yokohama Municipal Nishitani junior high school
1149m to Yokohama Municipal Nishitani junior high school

Primary school

Primary school. 683m to Yokohama Municipal Kamisugeda Elementary School
683m to Yokohama Municipal Kamisugeda Elementary School



Location