2014March
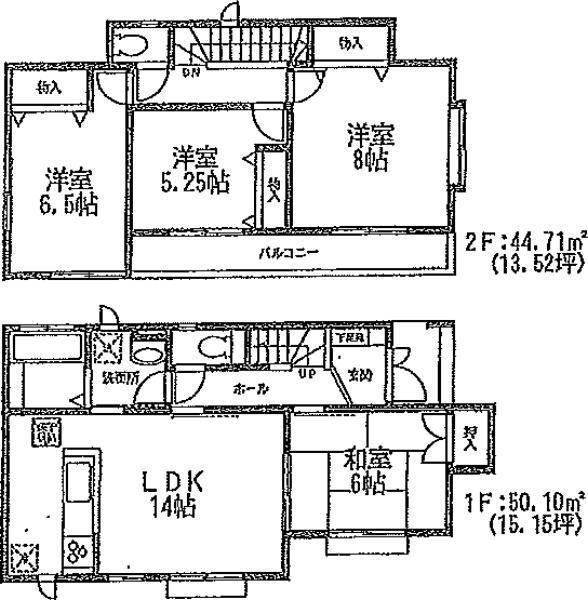
38,300,000 yen, 4LDK, 94.81 sq m
New Homes » Kanto » Kanagawa Prefecture » Yokohama Hodogaya-ku

| | Yokohama, Kanagawa Prefecture Hodogaya-ku, 神奈川県横浜市保土ケ谷区 |
| Sagami Railway Main Line "Nishitani" walk 19 minutes 相鉄本線「西谷」歩19分 |
Features pickup 特徴ピックアップ | | Parking two Allowed 駐車2台可 | Price 価格 | | 38,300,000 yen 3830万円 | Floor plan 間取り | | 4LDK 4LDK | Units sold 販売戸数 | | 1 units 1戸 | Land area 土地面積 | | 132.05 sq m (registration) 132.05m2(登記) | Building area 建物面積 | | 94.81 sq m (registration) 94.81m2(登記) | Driveway burden-road 私道負担・道路 | | Nothing, East 3.8m width, South 4.5m width 無、東3.8m幅、南4.5m幅 | Completion date 完成時期(築年月) | | March 2014 2014年3月 | Address 住所 | | Yokohama, Kanagawa Prefecture Hodogaya-ku, Unogawato cho 神奈川県横浜市保土ケ谷区東川島町 | Traffic 交通 | | Sagami Railway Main Line "Nishitani" walk 19 minutes 相鉄本線「西谷」歩19分
| Related links 関連リンク | | [Related Sites of this company] 【この会社の関連サイト】 | Contact お問い合せ先 | | TEL: 0800-603-2855 [Toll free] mobile phone ・ Also available from PHS Caller ID is not notified Please contact the "saw SUUMO (Sumo)" If it does not lead, If the real estate company TEL:0800-603-2855【通話料無料】携帯電話・PHSからもご利用いただけます 発信者番号は通知されません 「SUUMO(スーモ)を見た」と問い合わせください つながらない方、不動産会社の方は
| Building coverage, floor area ratio 建ぺい率・容積率 | | Fifty percent ・ 80% 50%・80% | Time residents 入居時期 | | Consultation 相談 | Land of the right form 土地の権利形態 | | Ownership 所有権 | Structure and method of construction 構造・工法 | | Wooden 2-story 木造2階建 | Use district 用途地域 | | One low-rise 1種低層 | Other limitations その他制限事項 | | Setback: upon 6.04 sq m セットバック:要6.04m2 | Overview and notices その他概要・特記事項 | | Building confirmation number: No. HPA-13-06442-1, Parking: Garage 建築確認番号:第HPA-13-06442-1号、駐車場:車庫 | Company profile 会社概要 | | <Mediation> Minister of Land, Infrastructure and Transport (2) No. 006840 (Ltd.) City net Yokohama headquarters brokerage sales department Yubinbango220-0003 Kanagawa Prefecture, Nishi-ku, Yokohama-shi Kusu, Mie 14-5 <仲介>国土交通大臣(2)第006840号(株)シティネット横浜本社仲介営業部〒220-0003 神奈川県横浜市西区楠町14-5 |
Floor plan間取り図  38,300,000 yen, 4LDK, Land area 132.05 sq m , Building area 94.81 sq m
3830万円、4LDK、土地面積132.05m2、建物面積94.81m2
Location
|