New Homes » Kanto » Kanagawa Prefecture » Yokohama Isogo-ku
 
| | Yokohama, Kanagawa Prefecture Isogo-ku, 神奈川県横浜市磯子区 |
| JR Negishi Line "Yokodai" walk 12 minutes JR根岸線「洋光台」歩12分 |
| And preview start accepting! ! You can see feel free to! ! 内覧受付開始します!!お気軽にご覧頂けます!! |
| Yang per good, garden, A quiet residential area, Face-to-face kitchen, LDK15 tatami mats or more, 2 or more sides balcony, Facing south, Bathroom Dryer, Around traffic fewer, Shaping land, Washbasin with shower, 2-story 陽当り良好、庭、閑静な住宅地、対面式キッチン、LDK15畳以上、2面以上バルコニー、南向き、浴室乾燥機、周辺交通量少なめ、整形地、シャワー付洗面台、2階建 |
Features pickup 特徴ピックアップ | | Facing south / Bathroom Dryer / Yang per good / A quiet residential area / LDK15 tatami mats or more / Around traffic fewer / Shaping land / garden / Washbasin with shower / Face-to-face kitchen / 2-story / 2 or more sides balcony 南向き /浴室乾燥機 /陽当り良好 /閑静な住宅地 /LDK15畳以上 /周辺交通量少なめ /整形地 /庭 /シャワー付洗面台 /対面式キッチン /2階建 /2面以上バルコニー | Price 価格 | | 38,800,000 yen ・ 39,500,000 yen 3880万円・3950万円 | Floor plan 間取り | | 4LDK 4LDK | Units sold 販売戸数 | | 2 units 2戸 | Total units 総戸数 | | 3 units 3戸 | Land area 土地面積 | | 125.13 sq m ・ 125.15 sq m (measured) 125.13m2・125.15m2(実測) | Building area 建物面積 | | 98.73 sq m ・ 99.55 sq m (measured) 98.73m2・99.55m2(実測) | Driveway burden-road 私道負担・道路 | | East 4.5m West 4.5m 東4.5m 西4.5m | Completion date 完成時期(築年月) | | 2013 mid-July 2013年7月中旬 | Address 住所 | | Yokohama, Kanagawa Prefecture Isogo-ku, Kuriki 2 神奈川県横浜市磯子区栗木2 | Traffic 交通 | | JR Negishi Line "Yokodai" walk 12 minutes Keikyu main line "Sugita" walk 19 minutes JR根岸線「洋光台」歩12分 京急本線「杉田」歩19分
| Person in charge 担当者より | | Rep Noguchi Living horse more than anything in the customer first, Cheerful well we try to move in for the customers. Please tell that was worrisome because even good at trifles. Thank you. 担当者野口 生馬何よりもお客様第一で、明るく元気良くお客様の為に動けるよう心掛けています。些細な事でも良いので気になった事をお話し下さい。宜しくお願い致します。 | Contact お問い合せ先 | | TEL: 0800-603-1841 [Toll free] mobile phone ・ Also available from PHS Caller ID is not notified Please contact the "saw SUUMO (Sumo)" If it does not lead, If the real estate company TEL:0800-603-1841【通話料無料】携帯電話・PHSからもご利用いただけます 発信者番号は通知されません 「SUUMO(スーモ)を見た」と問い合わせください つながらない方、不動産会社の方は
| Building coverage, floor area ratio 建ぺい率・容積率 | | Building coverage 50% Volume of 80% 建ぺい率50% 容積率80% | Time residents 入居時期 | | Consultation 相談 | Land of the right form 土地の権利形態 | | Ownership 所有権 | Structure and method of construction 構造・工法 | | Wooden 2-story 木造2階建 | Use district 用途地域 | | One low-rise 1種低層 | Land category 地目 | | Residential land 宅地 | Overview and notices その他概要・特記事項 | | Contact: Noguchi Living horse, Building confirmation number: 5228 担当者:野口 生馬、建築確認番号:5228 | Company profile 会社概要 | | <Mediation> Kanagawa Governor (6) Article 018811 No. Century 21 (stock) Star Life business three Division Yubinbango220-0005 Kanagawa Prefecture, Nishi-ku, Yokohama-shi Nanko 2-11-1 Yokohama Em ・ Es ・ Building second floor <仲介>神奈川県知事(6)第018811号センチュリー21(株)スターライフ営業三課〒220-0005 神奈川県横浜市西区南幸2-11-1 横浜エム・エス・ビル2階 |
 Rendering (appearance)
完成予想図(外観)
 Same specifications photo (bathroom)
同仕様写真(浴室)
 Same specifications photo (kitchen)
同仕様写真(キッチン)
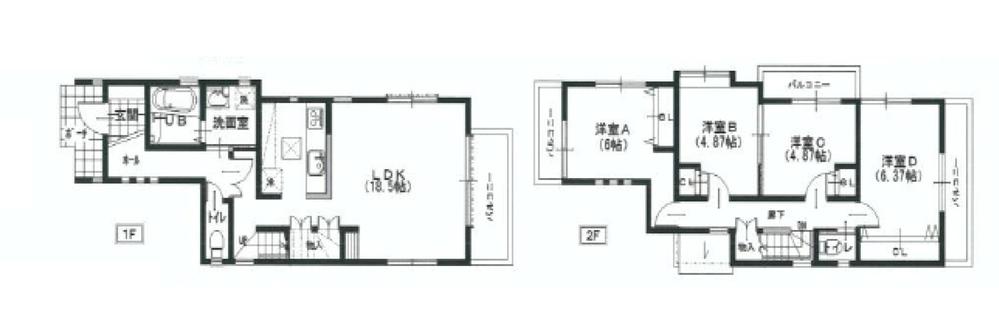
Floor plan間取り図  (A), Price 39,500,000 yen, 4LDK, Land area 125.13 sq m , Building area 98.73 sq m
(A)、価格3950万円、4LDK、土地面積125.13m2、建物面積98.73m2
 Local appearance photo
現地外観写真
Convenience storeコンビニ  500m to SHOPP99
SHOPP99まで500m
 Same specifications photos (Other introspection)
同仕様写真(その他内観)
 View photos from the dwelling unit
住戸からの眺望写真
Floor plan間取り図  (B), Price 38,800,000 yen, 4LDK, Land area 125.15 sq m , Building area 99.55 sq m
(B)、価格3880万円、4LDK、土地面積125.15m2、建物面積99.55m2
 Local appearance photo
現地外観写真
 Local photos, including front road
前面道路含む現地写真
Supermarketスーパー  Until Gluck A 500m
グルックAまで500m
 Local appearance photo
現地外観写真
Hospital病院  500m to Endo internal medicine
遠藤内科まで500m
 Local appearance photo
現地外観写真
Park公園  Kuriki Nakamurakoen up to 100m
栗木中村公園まで100m
Location
|