New Homes » Kanto » Kanagawa Prefecture » Yokohama Isogo-ku
 
| | Yokohama, Kanagawa Prefecture Isogo-ku, 神奈川県横浜市磯子区 |
| JR Negishi Line "Yokodai" walk 10 minutes JR根岸線「洋光台」歩10分 |
| Design Detached nestled in a quiet residential area. Floor heating and bathroom drying, etc., Enhancement of equipment and specifications content. "Yokodai" station a 10-minute walk of the good location. 閑静な住宅街に佇むデザイナーズ戸建。床暖房や浴室乾燥など、充実の設備と仕様内容。「洋光台」駅徒歩10分の好立地。 |
| Over Recommended point-to ● "Yokodai" a 10-minute walk ● enhancement of equipment and specification content ● sunny ・ In the case of our alliance mortgage available, The entire period up to -1.7 preferential treatment ・ The application, Conditions, there is a review ・ Weekdays, Saturday and Sunday, will guide you regardless of holiday ・ It can come to pick you up in the car ーオススメポイントー●「洋光台」徒歩10分●充実の設備と仕様内容●日当たり良好・弊社の提携住宅ローン利用の場合、全期間最大-1.7優遇・適用には、条件,審査がございます・平日,土日,祝日問わずご案内致します・車でお迎えに伺います |
Features pickup 特徴ピックアップ | | Corresponding to the flat-35S / Vibration Control ・ Seismic isolation ・ Earthquake resistant / Seismic fit / Immediate Available / 2 along the line more accessible / It is close to golf course / It is close to Tennis Court / Super close / Facing south / System kitchen / Bathroom Dryer / Yang per good / All room storage / A quiet residential area / LDK15 tatami mats or more / Around traffic fewer / Corner lot / Japanese-style room / Shaping land / Washbasin with shower / Face-to-face kitchen / Security enhancement / Wide balcony / 3 face lighting / Barrier-free / Toilet 2 places / Natural materials / Bathroom 1 tsubo or more / 2-story / 2 or more sides balcony / South balcony / Otobasu / High speed Internet correspondence / Warm water washing toilet seat / Underfloor Storage / The window in the bathroom / TV monitor interphone / High-function toilet / Ventilation good / All living room flooring / Walk-in closet / Water filter / City gas / All rooms are two-sided lighting / BS ・ CS ・ CATV / A large gap between the neighboring house / Maintained sidewalk フラット35Sに対応 /制震・免震・耐震 /耐震適合 /即入居可 /2沿線以上利用可 /ゴルフ場が近い /テニスコートが近い /スーパーが近い /南向き /システムキッチン /浴室乾燥機 /陽当り良好 /全居室収納 /閑静な住宅地 /LDK15畳以上 /周辺交通量少なめ /角地 /和室 /整形地 /シャワー付洗面台 /対面式キッチン /セキュリティ充実 /ワイドバルコニー /3面採光 /バリアフリー /トイレ2ヶ所 /自然素材 /浴室1坪以上 /2階建 /2面以上バルコニー /南面バルコニー /オートバス /高速ネット対応 /温水洗浄便座 /床下収納 /浴室に窓 /TVモニタ付インターホン /高機能トイレ /通風良好 /全居室フローリング /ウォークインクロゼット /浄水器 /都市ガス /全室2面採光 /BS・CS・CATV /隣家との間隔が大きい /整備された歩道 | Price 価格 | | 45,800,000 yen ~ 51,800,000 yen 4580万円 ~ 5180万円 | Floor plan 間取り | | 4LDK 4LDK | Units sold 販売戸数 | | 6 units 6戸 | Total units 総戸数 | | 6 units 6戸 | Land area 土地面積 | | 131.7 sq m ~ 141.59 sq m 131.7m2 ~ 141.59m2 | Building area 建物面積 | | 99.36 sq m ~ 104.33 sq m 99.36m2 ~ 104.33m2 | Completion date 完成時期(築年月) | | September 2013 2013年9月 | Address 住所 | | Yokohama, Kanagawa Prefecture Isogo-ku, Yokodai 4 神奈川県横浜市磯子区洋光台4 | Traffic 交通 | | JR Negishi Line "Yokodai" walk 10 minutes Keikyu main line "Sugita" walk 22 minutes JR Negishi Line "Shinsugita" walk 29 minutes JR根岸線「洋光台」歩10分 京急本線「杉田」歩22分 JR根岸線「新杉田」歩29分
| Related links 関連リンク | | [Related Sites of this company] 【この会社の関連サイト】 | Person in charge 担当者より | | Rep Kimura 担当者木村 | Contact お問い合せ先 | | TEL: 0800-603-7122 [Toll free] mobile phone ・ Also available from PHS Caller ID is not notified Please contact the "saw SUUMO (Sumo)" If it does not lead, If the real estate company TEL:0800-603-7122【通話料無料】携帯電話・PHSからもご利用いただけます 発信者番号は通知されません 「SUUMO(スーモ)を見た」と問い合わせください つながらない方、不動産会社の方は
| Building coverage, floor area ratio 建ぺい率・容積率 | | Kenpei rate: 40%, Volume ratio: 80% 建ペい率:40%、容積率:80% | Time residents 入居時期 | | Immediate available 即入居可 | Land of the right form 土地の権利形態 | | Ownership 所有権 | Use district 用途地域 | | One low-rise 1種低層 | Overview and notices その他概要・特記事項 | | Contact: Kimura 担当者:木村 | Company profile 会社概要 | | <Mediation> Minister of Land, Infrastructure and Transport (2) the first 007,684 No. + HOUSE Yokohama Office (Ltd.) propoxycarbonyl life Yubinbango230-0062 Kanagawa Prefecture Tsurumi-ku, Yokohama City Toyooka-cho, 8-24 first floor <仲介>国土交通大臣(2)第007684号+HOUSE横浜Office(株)プロポライフ〒230-0062 神奈川県横浜市鶴見区豊岡町8-24 1階 |
Rendering (appearance)完成予想図(外観)  Same construction company construction cases
同施工会社施工例
Same specifications photos (living)同仕様写真(リビング)  Same construction company construction cases
同施工会社施工例
Same specifications photo (bathroom)同仕様写真(浴室)  Same construction company construction cases
同施工会社施工例
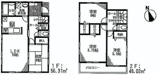
Floor plan間取り図  (1 Building), Price 49,800,000 yen, 4LDK, Land area 131.7 sq m , Building area 99.36 sq m
(1号棟)、価格4980万円、4LDK、土地面積131.7m2、建物面積99.36m2
 Other
その他
 (3 Building), Price 48,800,000 yen, 4LDK, Land area 134.66 sq m , Building area 101.01 sq m
(3号棟)、価格4880万円、4LDK、土地面積134.66m2、建物面積101.01m2
 (4 Building), Price 45,800,000 yen, 4LDK, Land area 141.59 sq m , Building area 104.33 sq m
(4号棟)、価格4580万円、4LDK、土地面積141.59m2、建物面積104.33m2
Location
|