New Homes » Kanto » Kanagawa Prefecture » Yokohama Isogo-ku
 
| | Yokohama, Kanagawa Prefecture Isogo-ku, 神奈川県横浜市磯子区 |
| Blue Line "Yoshino-cho" walk 17 minutes ブルーライン「吉野町」歩17分 |
| Living spacious about 19 Pledge of 4LDK. A balcony in two places, It pours the bright sunshine in the room because it can enter and exit from each room. Certainly once please see the local. リビング広々約19帖の4LDK。バルコニーを2ヶ所に設置、各部屋から出入り可能なため室内には明るい日差しがふりそそぎます。是非現地を一度ご覧下さい。 |
| LDK18 tatami mats or more, It is close to the city, Facing south, Bathroom Dryer, Yang per good, Or more before road 6m, Face-to-face kitchen, Toilet 2 places, 2 or more sides balcony, Urban neighborhood, Dish washing dryer, Water filter, Three-story or more, City gas LDK18畳以上、市街地が近い、南向き、浴室乾燥機、陽当り良好、前道6m以上、対面式キッチン、トイレ2ヶ所、2面以上バルコニー、都市近郊、食器洗乾燥機、浄水器、3階建以上、都市ガス |
Features pickup 特徴ピックアップ | | LDK18 tatami mats or more / It is close to the city / Facing south / Bathroom Dryer / Yang per good / Or more before road 6m / Face-to-face kitchen / Toilet 2 places / 2 or more sides balcony / Urban neighborhood / Dish washing dryer / Water filter / Three-story or more / City gas LDK18畳以上 /市街地が近い /南向き /浴室乾燥機 /陽当り良好 /前道6m以上 /対面式キッチン /トイレ2ヶ所 /2面以上バルコニー /都市近郊 /食器洗乾燥機 /浄水器 /3階建以上 /都市ガス | Price 価格 | | 33,800,000 yen 3380万円 | Floor plan 間取り | | 4LDK 4LDK | Units sold 販売戸数 | | 1 units 1戸 | Total units 総戸数 | | 1 units 1戸 | Land area 土地面積 | | 60.2 sq m (registration) 60.2m2(登記) | Building area 建物面積 | | 109.44 sq m (registration), Among the first floor garage 13.57 sq m 109.44m2(登記)、うち1階車庫13.57m2 | Driveway burden-road 私道負担・道路 | | Nothing 無 | Completion date 完成時期(築年月) | | December 2013 2013年12月 | Address 住所 | | Maruyama, Yokohama, Kanagawa Prefecture Isogo-ku 1 神奈川県横浜市磯子区丸山1 | Traffic 交通 | | Blue Line "Yoshino-cho" walk 17 minutes Blue Line "Makita" walk 20 minutes JR Negishi Line "Negishi" walk 24 minutes ブルーライン「吉野町」歩17分 ブルーライン「蒔田」歩20分 JR根岸線「根岸」歩24分
| Related links 関連リンク | | [Related Sites of this company] 【この会社の関連サイト】 | Person in charge 担当者より | | Rep Yamashita As you find the hope of properties that can Masanori consent, I will my best to help as much as possible to your. 担当者山下 将典ご納得頂けるご希望の物件が見つかるように、自分に出来る限り精一杯お手伝いさせて頂きます。 | Contact お問い合せ先 | | TEL: 0800-602-5836 [Toll free] mobile phone ・ Also available from PHS Caller ID is not notified Please contact the "saw SUUMO (Sumo)" If it does not lead, If the real estate company TEL:0800-602-5836【通話料無料】携帯電話・PHSからもご利用いただけます 発信者番号は通知されません 「SUUMO(スーモ)を見た」と問い合わせください つながらない方、不動産会社の方は
| Building coverage, floor area ratio 建ぺい率・容積率 | | 60% ・ 200% 60%・200% | Time residents 入居時期 | | Consultation 相談 | Land of the right form 土地の権利形態 | | Ownership 所有権 | Structure and method of construction 構造・工法 | | Wooden three-story 木造3階建 | Use district 用途地域 | | Semi-industrial 準工業 | Overview and notices その他概要・特記事項 | | Contact: Yamashita Masanori, Facilities: Public Water Supply, This sewage, City gas, Building confirmation number: No. 13KAK Ken確 04025, Parking: car space 担当者:山下 将典、設備:公営水道、本下水、都市ガス、建築確認番号:第13KAK建確04025号、駐車場:カースペース | Company profile 会社概要 | | <Mediation> Governor of Kanagawa Prefecture (1) the first 027,887 No. living space Real Estate Sales Co., Ltd. Yubinbango231-0011 Yokohama-shi, Kanagawa, Naka-ku, Ota-cho, 1-1 Kanagawa living space building <仲介>神奈川県知事(1)第027887号住空間不動産販売(株)〒231-0011 神奈川県横浜市中区太田町1-1 神奈川住空間ビル |
Local photos, including front road前面道路含む現地写真  Please do not hesitate to contact us. (Local photo)
どうぞお気軽にお問い合わせ下さい。(現地写真)
Other localその他現地  Local Photos
現地写真
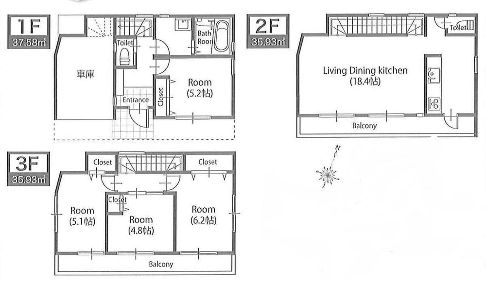
Floor plan間取り図  33,800,000 yen, 4LDK, Land area 60.2 sq m , Building area 109.44 sq m floor plan
3380万円、4LDK、土地面積60.2m2、建物面積109.44m2 間取り図
Supermarketスーパー  Until Fuji Negishi Hashiten 224m
Fuji根岸橋店まで224m
Junior high school中学校  1147m to Yokohama City Tachioka village junior high school
横浜市立岡村中学校まで1147m
Primary school小学校  339m to Yokohama Municipal Takigashira Elementary School
横浜市立滝頭小学校まで339m
Kindergarten ・ Nursery幼稚園・保育園  634m to Yokohama City Takigashira nursery
横浜市滝頭保育園まで634m
Hospital病院  1314m until the medical corporation Kanto hospital
医療法人関東病院まで1314m
Location
|