New Homes » Kanto » Kanagawa Prefecture » Yokohama Isogo-ku
 
| | Yokohama, Kanagawa Prefecture Isogo-ku, 神奈川県横浜市磯子区 |
| Keikyu main line "Sugita" walk 18 minutes 京急本線「杉田」歩18分 |
| A quiet residential area of two-wire 2 Station Available ・ Good day per southwestward dwelling unit ・ Home Assistance Services Available ・ Livable 2-story ・ Local will guide you, Please feel free to contact us. 2線2駅利用可の閑静な住宅街・南西向き住戸につき日当たり良好・ホームアシスタンスサービス有・暮らしやすい2階建・現地ご案内いたします、お気軽にお問い合わせください。 |
| Ground guarantee 10 years, Building guaranteed 20 years ・ LDK16 Pledge, Face-to-face kitchen adopt bouncing of conversation ・ Shutter shutters which is excellent on the first floor some crime prevention ・ Solid base specification with excellent earthquake resistance ・ 24-hour ventilation system adopted all the living room 地盤保証10年、建物保証20年付・LDK16帖、会話の弾む対面キッチン採用・1階一部防犯に優れるシャッター雨戸・耐震性に優れたベタ基礎仕様・全居室24時間換気システム採用 |
Features pickup 特徴ピックアップ | | Corresponding to the flat-35S / Year Available / 2 along the line more accessible / All room storage / A quiet residential area / LDK15 tatami mats or more / Face-to-face kitchen / Toilet 2 places / 2-story / Double-glazing / Warm water washing toilet seat / Underfloor Storage / The window in the bathroom / TV monitor interphone / All living room flooring / Southwestward / Dish washing dryer / Water filter / City gas / All rooms southwestward フラット35Sに対応 /年内入居可 /2沿線以上利用可 /全居室収納 /閑静な住宅地 /LDK15畳以上 /対面式キッチン /トイレ2ヶ所 /2階建 /複層ガラス /温水洗浄便座 /床下収納 /浴室に窓 /TVモニタ付インターホン /全居室フローリング /南西向き /食器洗乾燥機 /浄水器 /都市ガス /全室南西向き | Price 価格 | | 36,800,000 yen ~ 37,800,000 yen 3680万円 ~ 3780万円 | Floor plan 間取り | | 4LDK 4LDK | Units sold 販売戸数 | | 2 units 2戸 | Land area 土地面積 | | 126.32 sq m ~ 136.07 sq m (38.21 tsubo ~ 41.16 tsubo) (Registration) 126.32m2 ~ 136.07m2(38.21坪 ~ 41.16坪)(登記) | Building area 建物面積 | | 96.46 sq m ~ 99.29 sq m (29.17 tsubo ~ 30.03 tsubo) (Registration) 96.46m2 ~ 99.29m2(29.17坪 ~ 30.03坪)(登記) | Driveway burden-road 私道負担・道路 | | Setback: upon 0.46 sq m ~ 1.14 sq m セットバック:要0.46m2 ~ 1.14m2 | Completion date 完成時期(築年月) | | 2014 end of January schedule 2014年1月末予定 | Address 住所 | | Yokohama, Kanagawa Prefecture Isogo-ku, Kami Nakazato-cho 神奈川県横浜市磯子区上中里町 | Traffic 交通 | | Keikyu main line "Sugita" walk 18 minutes JR Keihin Tohoku Line "Yokodai" walk 20 minutes 京急本線「杉田」歩18分 JR京浜東北線「洋光台」歩20分
| Person in charge 担当者より | | We are dedicating personnel system for each person in charge customers. [Your tour of the day is also possible! ] Inquiry of the Property Century 21 Global Home "residence of the Information Center" sales staff to please feel free to! 0800-603-7494 担当者お客様毎に専属担当者制です。【当日のご見学も可能です!】本物件のお問い合わせはセンチュリー21グローバルホーム「住まいの情報館」営業スタッフまでお気軽にどうぞ!0800-603-7494 | Contact お問い合せ先 | | TEL: 0800-603-7494 [Toll free] mobile phone ・ Also available from PHS Caller ID is not notified Please contact the "saw SUUMO (Sumo)" If it does not lead, If the real estate company TEL:0800-603-7494【通話料無料】携帯電話・PHSからもご利用いただけます 発信者番号は通知されません 「SUUMO(スーモ)を見た」と問い合わせください つながらない方、不動産会社の方は
| Building coverage, floor area ratio 建ぺい率・容積率 | | Building coverage: 50%, Volume ratio: 80% 建ぺい率:50%、容積率:80% | Time residents 入居時期 | | 2014 end of January schedule 2014年1月末予定 | Land of the right form 土地の権利形態 | | Ownership 所有権 | Use district 用途地域 | | One low-rise, Quasi-residence 1種低層、準住居 | Other limitations その他制限事項 | | Slope A Building about 15.7 sq m , Including B Building about 4.6 sq m. 法面A号棟約15.7m2、B号棟約4.6m2含む。 | Overview and notices その他概要・特記事項 | | The person in charge: is dedicating personnel system for each customer. , Building confirmation number: No. 13UDI3T Ken 01134 other 担当者:お客様毎に専属担当者制です。、建築確認番号:第13UDI3T建01134号他 | Company profile 会社概要 | | <Mediation> Kanagawa Governor (2) the first 026,326 No. Century 21 Global Home Co., Ltd. Yubinbango221-0825 Yokohama-shi, Kanagawa, Kanagawa-ku, Sorimachi 4-37-3 Nissin building Yokohama Sorimachi first floor ・ Second floor <仲介>神奈川県知事(2)第026326号センチュリー21グローバルホーム(株)〒221-0825 神奈川県横浜市神奈川区反町4-37-3 日伸ビル横浜反町1階・2階 |
Local photos, including front road前面道路含む現地写真  2013 November 22, shooting
2013年11月22日撮影
Local appearance photo現地外観写真  2013 November 22, shooting A Building
2013年11月22日撮影 A号棟
 2013 November 22, shooting B Building
2013年11月22日撮影 B号棟
Floor plan間取り図  (A Building), Price 37,800,000 yen, 4LDK, Land area 136.07 sq m , Building area 99.29 sq m
(A号棟)、価格3780万円、4LDK、土地面積136.07m2、建物面積99.29m2
Local appearance photo現地外観写真  2013 November 22, shooting A Building
2013年11月22日撮影 A号棟
Station駅  Keikyu lines, "Sugita" 1440m to the station
京浜急行線「杉田」駅まで1440m
 The entire compartment Figure
全体区画図
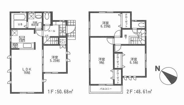
Floor plan間取り図  (B Building), Price 36,800,000 yen, 4LDK, Land area 126.32 sq m , Building area 96.46 sq m
(B号棟)、価格3680万円、4LDK、土地面積126.32m2、建物面積96.46m2
Local appearance photo現地外観写真  2013 November 22, shooting B Building
2013年11月22日撮影 B号棟
Station駅  1600m until the JR Negishi Line "Yokodai" station
JR根岸線「洋光台」駅まで1600m
Primary school小学校  810m to Yokohama Municipal Sawa of the village primary school
横浜市立さわの里小学校まで810m
Junior high school中学校  600m to Yokohama City Tachihama junior high school
横浜市立浜中学校まで600m
Hospital病院  Saiseikai 3210m to Yokohama-shi southern hospital
済生会横浜市南部病院まで3210m
Location
|